Loading...
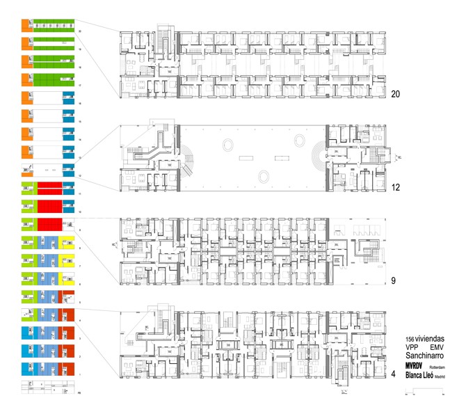
El volumen desarrollado en 21 plantas emerge como referente en un entorno excesivamente homogéneo, encuadrando el paisaje por medio de su mirador de 40 x 15 x 15 m situado en la planta 12. Este vacío abierto a la ciudad, al territorio y también al contexto mediático, es el patio vecinal. Al elevarse, la construcción libera un espacio público que la ciudad contemporánea demanda. Los 20.000 m2 construidos contienen una gran variedad de situaciones y 36 tipos de viviendas. Se organizan en nueve agrupaciones, representadas por nueve materiales de fachada: tres tipos de GRC, granito, caliza y pizarra, y tres tipos de materiales cerámicos de pequeño formato.
La diversidad de fachadas se materializa en un despiece variable, una organización de huecos cambiante, así como texturas y colores diversos; entre las nueve tipologías de cerramiento discurren los cuatro núcleos de circulación y los miradores intermedios que surgen con el cambio de dirección de las escaleras. Las circulaciones en el edificio son como pequeñas calles verticales. Sus transformaciones a lo largo de cada recorrido enlazan un compendio de tipologías estructuradas a modo de pequeños barrios.
El gran vacío central aglutina la diversidad y da identidad al conjunto edificado. Contra la seriación y repetición racionalista de la unidad familiar tipo se plantea la variación razonable como respuesta a los nuevos modos contemporáneos de habitar. Se proponen múltiples unidades o alojamientos con organizaciones, flexibles y adaptables, ya que la estructura y las instalaciones se localizan en el perímetro de cada propiedad. Se trata de propiciar la identidad que cada habitante proyecta en su casa, la adecuación a un funcionamiento requerido y la incorporación a los cambios acelerados de la demanda.
General information
156 viviendas de protección pública en Sanchinarro
YEAR
Option to visit
Address
c/ Princesa de Éboli, 21
28050 Madrid - Madrid
Latitude: 40.487755664
Longitude: -3.654752827
Classification
Construction system
porticos de H.A y cercha estructural de acero.
Built area
Involved architects
Involved architectural firms
Information provided by
Blanca Lleó estudio
-
VIII BEAU
Location
Itineraries
https://content.gnoss.ws/carq/https://content.gnoss.ws/carq//imagenes/Documentos/imgsem/72/7226/72269731-061a-48f1-abcf-7b7238c66bab/9c0caf80-65c3-443a-8491-ecc0d1107a78.jpg, 0000001671/sanchinarro 1.jpg
https://content.gnoss.ws/carq/https://content.gnoss.ws/carq//imagenes/Documentos/imgsem/72/7226/72269731-061a-48f1-abcf-7b7238c66bab/eca306b0-0803-4978-8237-aeeb0685fff4.jpg, 0000001671/sanchinarro 3.jpg
https://content.gnoss.ws/carq/https://content.gnoss.ws/carq//imagenes/Documentos/imgsem/72/7226/72269731-061a-48f1-abcf-7b7238c66bab/0f49f044-9f09-4de3-965c-9169e393ade8.jpg, 0000001671/sanchinarro 2.jpg
https://content.gnoss.ws/carq//imagenes/Documentos/imgsem/72/7226/72269731-061a-48f1-abcf-7b7238c66bab/1287e513-7d23-4732-a0f5-d0c63a56e55a.jpg, 0000001671/156 Viviendas plantas .jpg
https://content.gnoss.ws/carq//imagenes/Documentos/imgsem/72/7226/72269731-061a-48f1-abcf-7b7238c66bab/b10e8c1f-ef2c-4a42-80ab-5c0863e02b60.jpg, 0000001671/156 Viviendas plantas_1 .jpg
https://content.gnoss.ws/carq//imagenes/Documentos/imgsem/72/7226/72269731-061a-48f1-abcf-7b7238c66bab/3b4d4746-d783-416f-ba9c-bff351f81591.jpg, 0000001671/156 Viviendas seccion.jpg
https://content.gnoss.ws/carq//imagenes/Documentos/imgsem/72/7226/72269731-061a-48f1-abcf-7b7238c66bab/f1619c94-0891-4d48-88c7-fe88d8563370.jpg, 0000001671/156 Viviendas _1 .jpg
https://content.gnoss.ws/carq//imagenes/Documentos/imgsem/72/7226/72269731-061a-48f1-abcf-7b7238c66bab/278f25ae-5af8-442f-ba96-41aa067a3d2e.jpg, 0000001671/156 Viviendas planos .jpg




