Loading...
Finalizada en 1941, la Facultad de Filosofía y Letras fue la primera construida en el Campus San Francisco, proyectada por Regino Borobio y José Beltrán. Presentaba un prolongado desarrollo longitudinal y una disposición simétrica. Las posteriores ampliaciones —dos alas simétricas en los extremos y dos plantas alzadas sobre el cuerpo longitudinal— conformaron la volumetría final del edificio, actualmente protegido y catalogado. En 2016, la Universidad de Zaragoza convocó un concurso para su rehabilitación integral, con una reorganización de los usos que incluía su ampliación con un nuevo edificio departamental anexo y la adecuación de los espacios exteriores del conjunto. La propuesta de Magén Arquitectos resultó ganadora del concurso.
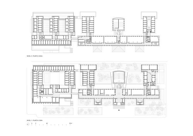
El objetivo principal de la intervención era integrar dos cuestiones: la continuidad con el edificio histórico, y la máxima eficiencia energética para obtener un consumo de energía casi nulo (ECCN). En el edificio existente, la reforma destaca los valores patrimoniales, mejora su eficiencia energética y activa los patios exteriores. El proyecto elimina las modificaciones interiores para recuperar la disposición original de las plantas, refuerza la estructura y la cimentación, mejora las prestaciones de la envolvente, restaura las fachadas, y completa la redistribución de las plantas. Además, se han realizado operaciones puntuales que mejoran la funcionalidad, la relación y la accesibilidad entre las diferentes partes. La operación de mayor calado se produce en el vestíbulo principal. La demolición de un volumen interior adosado al Aula Magna genera un vacío a triple altura, que incluye una nueva escultura helicoidal. Esta actuación posibilita la apertura del vestíbulo hacia los dos patios posteriores. El corredor longitudinal de circulación recupera su sección original. Un banco corrido integrado, unido a la anchura del corredor, generan espacios de relación entre las aulas.
El nuevo edificio departamental anexo prolonga la facultad por el noreste, hasta el pórtico de acceso principal al campus. Su volumetría dialoga con las alturas del contexto y responde a la continuidad con el cuerpo longitudinal del edificio histórico. La sección hacia la calle genera una terraza-mirador. La disposición en planta, que varía de la forma de anillo de las plantas inferiores a la organización en peine de las superiores, genera en el interior una plaza cubierta, atravesada entre los lucernarios por el cuerpo central de despachos. La luz cenital que procede de las cubiertas vidriadas y la vegetación que se descuelga desde las plantas superiores caracterizan este espacio colectivo. La fachada exterior está compuesta por una sucesión de pilastras de ladrillo, entre losas horizontales de hormigón blanco. La tectónica adintelada de las fachadas evoca la construcción como apilamiento de elementos simples. La posición de las carpinterías tras las pilastras otorga espesor, profundidad y sombra a las fachadas. En las cámaras, las fachadas interiores son de placas de corcho, como aislamiento térmico visto.
General information
Ampliación y Rehabilitación de la Facultad de Filosofía y Letras de la Universidad de Zaragoza
YEAR
Option to visit
Address
C/ de Pedro Cerbuna, 12
50009 Zaragoza - Zaragoza -Zaragoza
Classification
Built area
Collaborators
Involved architectural firms
Information provided by
Magén Arquitectos
-
Rubén P. Bescós -
Magén Arquitectos -
Rubén P. Bescós -
Rubén P. Bescós
https://content.gnoss.ws/carq/https://content.gnoss.ws/carq//imagenes/Documentos/imgsem/3c/3c76/3c768f27-c0f7-446e-b168-8c1969266d5a/bc0a67bc-0102-411a-9307-a419e43deba0.jpg, 0000102477/1.jpg
https://content.gnoss.ws/carq/https://content.gnoss.ws/carq//imagenes/Documentos/imgsem/3c/3c76/3c768f27-c0f7-446e-b168-8c1969266d5a/5063ad24-0126-444c-89e2-c725cc50fc08.jpg, 0000102477/2.jpg
https://content.gnoss.ws/carq/https://content.gnoss.ws/carq//imagenes/Documentos/imgsem/3c/3c76/3c768f27-c0f7-446e-b168-8c1969266d5a/3d48c61e-06d8-4069-8ed0-162d54b46240.jpg, 0000102477/3.jpg
https://content.gnoss.ws/carq/https://content.gnoss.ws/carq//imagenes/Documentos/imgsem/3c/3c76/3c768f27-c0f7-446e-b168-8c1969266d5a/4b42a517-5378-4c2e-bd5a-7fdccaae733b.jpg, 0000102477/4.jpg
https://content.gnoss.ws/carq/https://content.gnoss.ws/carq//imagenes/Documentos/imgsem/3c/3c76/3c768f27-c0f7-446e-b168-8c1969266d5a/9f0f7ec1-1f7e-4b46-990b-87f4b9aa7bd9.jpg, 0000102477/5.jpg
https://content.gnoss.ws/carq/https://content.gnoss.ws/carq//imagenes/Documentos/imgsem/3c/3c76/3c768f27-c0f7-446e-b168-8c1969266d5a/34e362b1-4edc-439a-9f55-181585d3db12.jpg, 0000102477/6.jpg
https://content.gnoss.ws/carq/https://content.gnoss.ws/carq//imagenes/Documentos/imgsem/3c/3c76/3c768f27-c0f7-446e-b168-8c1969266d5a/ff254bbf-d6db-47b0-82cf-569e1aa6ec2b.jpg, 0000102477/7.jpg
https://content.gnoss.ws/carq//imagenes/Documentos/imgsem/3c/3c76/3c768f27-c0f7-446e-b168-8c1969266d5a/d86eceb3-eb23-4f24-8066-d4c58d4a7e20.jpg, 0000102477/3__PLANTAS - ESP-A3.jpg






