Loading...
El proyecto recupera un almacén de aperos de pesca, un único espacio de más de cien años. Solamente dos cuestiones lo cualifican: la disposición de los objetos y la luz natural.
La técnica empleada por sus constructores y habitantes fue sencilla: cerrar un espacio y colgar y arrimar objetos en él. Los de uso más frecuente, cerca de la entrada y próximos a la luz; los de uso menos frecuente, siempre detrás de algo.
La humedad es frecuente y por eso el pavimento se matiza en una franja delante de la entrada: piedra u hormigón y, más allá, madera.
Los objetos se cuelgan de uno en uno, mediante bolsas de red o dispuestos en plataformas de madera. Así es como se puede colocar algo seco flotando sobre una superficie más húmeda.
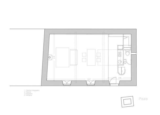
Nosotros seguimos esas pautas como nuevos habitantes y como arquitectos. Posamos en el pavimento de piedra un objeto multifunción que se va separando y arrimando contra la pared del primer testero. Es la cocina-despensa-almacén-ducha-lavabo-inodoro-escalera y dormitorio. El dormitorio es un suelo colgado, que a su vez hace de techo del aseo. La escalera es un andamio que se separa como objeto y permite acceder a limpiar tanto el interior como el exterior.
Ante la ausencia de electricidad abrimos un lucernario en la cumbrera. Necesitábamos más luz natural, pues sólo teníamos aberturas en una fachada orientada al oeste. Es un tema recurrente en la historia de la arquitectura, nosotros literalmente rompimos la cumbrera en dos, y con ella los pares.
Otra decisión fue colocar la fuente de calor en el extremo opuesto a lo húmedo: una chimenea. A partir de ahí dispusimos los objetos por el medio para otras alternativas de uso menos estables: la mesa para comer, la de trabajar, las sillas, los sofás...
También quitamos de las ventanas cualquier división para hacerlas como cuadros que enmarcan las vistas. Junto con la puerta y el lucernario, constituyen referencias a contraluz de un interior por el que se deslizan con la misma intensidad luminosidad y penumbra. Un espacio que descansa sobre la roca, separado y ventilado.
General information
Caseta de Quilmas
YEAR
Option to visit
Address
Quilmas - A Coruña -Quilmas
Classification
Construction system
Rehabilitación. Muros de carga existentes. Estructura de madera nueva. Lucernario acero Inoxidable.
Built area
Involved architectural firms
Information provided by
CREUSeCARRASCO
https://content.gnoss.ws/carq/https://content.gnoss.ws/carq//imagenes/Documentos/imgsem/ea/eab6/eab6a0ba-6866-4ffe-9002-e498a57855e3/cf458d66-e43e-4246-aa9e-930f4fb1643b.jpg, 0000100043/0.jpg
https://content.gnoss.ws/carq/https://content.gnoss.ws/carq//imagenes/Documentos/imgsem/ea/eab6/eab6a0ba-6866-4ffe-9002-e498a57855e3/8b808e09-f4ac-47eb-84a3-23c86134f469.jpg, 0000100043/4.jpg
https://content.gnoss.ws/carq/https://content.gnoss.ws/carq//imagenes/Documentos/imgsem/ea/eab6/eab6a0ba-6866-4ffe-9002-e498a57855e3/e1ed8da0-e00b-4e34-a826-c9dac8b380cd.jpg, 0000100043/Quilmas_52.jpg
https://content.gnoss.ws/carq/https://content.gnoss.ws/carq//imagenes/Documentos/imgsem/ea/eab6/eab6a0ba-6866-4ffe-9002-e498a57855e3/2af46b24-f861-45d8-ab08-82c170864543.jpg, 0000100043/Quilmas (5).jpg
https://content.gnoss.ws/carq/https://content.gnoss.ws/carq//imagenes/Documentos/imgsem/ea/eab6/eab6a0ba-6866-4ffe-9002-e498a57855e3/c19b4429-5416-44cb-83cc-468a714fde16.jpg, 0000100043/Quilmas (10).jpg
https://content.gnoss.ws/carq/https://content.gnoss.ws/carq//imagenes/Documentos/imgsem/ea/eab6/eab6a0ba-6866-4ffe-9002-e498a57855e3/2a50cc25-b599-43ac-a304-40bf43fabb51.jpg, 0000100043/paxar1.jpg
https://content.gnoss.ws/carq/https://content.gnoss.ws/carq//imagenes/Documentos/imgsem/ea/eab6/eab6a0ba-6866-4ffe-9002-e498a57855e3/bf2e97f4-4c10-49df-882f-bba0f159d307.jpg, 0000100043/Quilmas_040.jpg
https://content.gnoss.ws/carq/https://content.gnoss.ws/carq//imagenes/Documentos/imgsem/ea/eab6/eab6a0ba-6866-4ffe-9002-e498a57855e3/1f3fb9f0-33bd-44c4-98b7-0a989a8cffec.jpg, 0000100043/L1030406.jpg
https://content.gnoss.ws/carq//imagenes/Documentos/imgsem/ea/eab6/eab6a0ba-6866-4ffe-9002-e498a57855e3/23afd149-b798-45c5-b79c-49abac43e658.jpg, 0000100043/14.jpg
https://content.gnoss.ws/carq//imagenes/Documentos/imgsem/ea/eab6/eab6a0ba-6866-4ffe-9002-e498a57855e3/391b9a18-169f-40f3-8c4e-89b4029d62c3.png, 0000100043/6-12.png
https://content.gnoss.ws/carq//imagenes/Documentos/imgsem/ea/eab6/eab6a0ba-6866-4ffe-9002-e498a57855e3/30b7668e-e664-45d7-98b2-7678a84dfd01.jpg, 0000100043/15.jpg
https://content.gnoss.ws/carq//imagenes/Documentos/imgsem/ea/eab6/eab6a0ba-6866-4ffe-9002-e498a57855e3/5a79c48a-273a-4246-b5bf-ce7fbeca755c.jpg, 0000100043/16.jpg



