Loading...
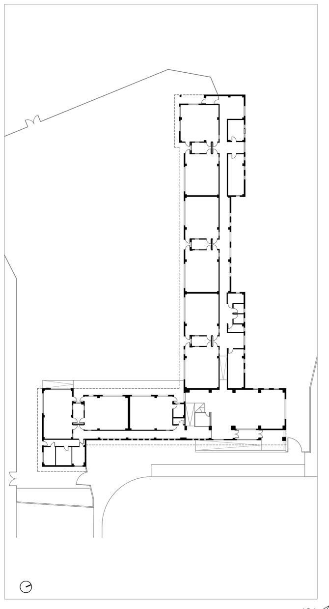
El C.E.I.P. San Pedro Apóstol requería ser ampliado, optando por plantear la construcción de un nuevo pabellón dentro del amplio recinto escolar, de manera que las enseñanzas correspondientes a la educación primaria se mantuvieran en el edificio original –Avenida de Venezuela, 11– y las de educación infantil se trasladasen al nuevo edificio –Calle Panal, 19–, obra de la arquitecta. Se halla en el límite este del casco urbano de Guadalajara, próximo a la autovía A-2, y su configuración en T girada 90º orienta en dirección norte-sur el travesaño, alineado con la calle, y en el sentido este-oeste el asta.
La entrada al edificio se produce desde una rampa que conduce a un porche en la esquina norte, en la que asimismo está situada la sala de psicomotricidad. En el resto del travesaño de la T se hallan tres aulas y espacios de servicios al sur que avanzan en fachada. En el asta de la T discurren seis aulas recayentes al sur a las que se accede desde un pasillo al otro lado del cual se insertan servicios que asimismo forman paquetes sobresalientes en fachada. Las parejas de aulas comparten un espacio de servicios y todas ellas tienen salida directa al patio.
La delicada y elegante materialidad de este edificio es, junto a su aparentemente sencilla pero matizada composición, una de sus señas de identidad. Se caracteriza por el ladrillo caravista de color claro y todas las carpinterías y cerrajerías en gris, a las que se suma la chapa metálica con la que se forra el canto y el vuelo de las cubiertas. Su juego protagoniza la imagen de esta obra: el travesaño de la T tiene una cubierta en V cuya limahoya se produce en el encuentro con el asta, elevándose hacia los extremos. El asta se cubre con un solo plano inclinado.
Nos encontramos ante una obra de arquitectura sumamente delicada. En primer lugar, con su entorno, ante cuyo desorden trata de construir y cualificar la ciudad alineando la pieza de la entrada con la calle, cediendo al espacio público de la acera la rampa de acceso y orientando la mayoría de las aulas al sur (protegidas con la sombra del vuelo de la cubierta) y a un parque. Consciente de su condición institucional, el edificio concentra su expresividad en el gesto de la cubierta. Finalmente, se despliega una gran sensibilidad ante la infancia: protegida hacia el exterior y abierta hacia la zona de juegos.
General information
CEIP San Pedro Apóstol
YEAR
Option to visit
Address
C/ Panal, 19
19005 Guadalajara - Guadalajara -Guadalajara
Latitude: 40.633458349
Longitude: -3.150035211
Classification
Building materials
Built area
Involved architects
Collaborators
Information provided by
Miradas Situadas Arquitectura de Mujer en España desde Perspectivas Periféricas, 1978-2008 (NAM)
Location
Itineraries
https://content.gnoss.ws/carq/https://content.gnoss.ws/carq//imagenes/Documentos/imgsem/9e/9e56/9e56a4c8-f5d6-4f09-a86e-68404b549c87/94146664-81ff-4a58-b098-07acbce0af7e.jpg, 0000109093/i00.jpg
https://content.gnoss.ws/carq/https://content.gnoss.ws/carq//imagenes/Documentos/imgsem/9e/9e56/9e56a4c8-f5d6-4f09-a86e-68404b549c87/a7396110-97aa-47e8-b089-08d398df4345.jpg, 0000109093/i01.jpg
https://content.gnoss.ws/carq/https://content.gnoss.ws/carq//imagenes/Documentos/imgsem/9e/9e56/9e56a4c8-f5d6-4f09-a86e-68404b549c87/eef4fd30-1aff-4d2d-8402-10963b3b0406.jpg, 0000109093/i02.jpg
https://content.gnoss.ws/carq//imagenes/Documentos/imgsem/9e/9e56/9e56a4c8-f5d6-4f09-a86e-68404b549c87/d56a618d-2927-4a6b-9854-62c86373b8c4.jpg, 0000109093/p00.jpg



