Loading...
Construir una prisión es construir un mundo cerrado, como lo eran las abadías, los monasterios o las antiguas acrópolis. Una prisión es un pequeño mundo abstracto, ubicado en un entorno rural donde viven y trabajan 1.500 personas. Surgen relaciones humanas, interacciones personales y colectivas y, en definitiva, una fuerte relación entre el hombre y el espacio. Había que construir un mundo diferente pero de forma coherente, que tuviera en cuenta los mismos elementos de la ciudad familiar, pero con diferentes usos.
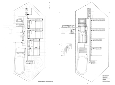
En cuanto a sus características y dimensiones, aparecen los mismos espacios urbanos: plazas, calles, fachadas, etc. Pero, en este caso, los protagonistas de los espacios son los muros cerrados, los pasillos, los desniveles, las escaleras y las rampas, las distancias y las sombras. Todo para brindar una variedad de espacios en los que la repetición no se convierta en monotonía. Hay gestos y cambios de alineación que pueden enriquecer y dar más sentido a una calle que no tiene los atributos habituales.
La prisión tiene una primera formalización que parte de la pared de cierre que determina y defiende sus límites. La disposición de la pared es clara, regular, geométrica y precisa a fin de definir sus tres características fundamentales: un medio de protección y cierre, la primera definición del límite entre el terreno y las edificaciones y su papel como muro de contención. La pared define los límites de la prisión, pero no influye en su disposición interior.
Se remodeló el terreno, rebajándose la parte más alta para aumentar el funcionamiento y la comunicación entre las diferentes partes. Al hacerlo, se logró una mejor integración de todo el conjunto en el paisaje. La entrada principal nos lleva al patio de distribución, que organiza un espacio mixto y nos traslada a los niveles del espacio interior.
General information
Centro penitenciario Brians
YEAR
Option to visit
Address
08635 San Esteban Sesrovires - Barcelona
Latitude: 41.467373796
Longitude: 1.8841551489
Classification
Built area
Awards
Involved architects
Involved architectural firms
Information provided by
Francesc Rius Camps
Bonell i Gil Arquitectes
EUMies Award
Website links
-
Bonell i Gil -
Bonell i Gil -
EUMies Award
Location
https://content.gnoss.ws/carq/https://content.gnoss.ws/carq//imagenes/Documentos/imgsem/db/dbe4/dbe4d898-d044-47e7-a494-c3b2789d6f7f/a04ff983-c76c-4045-827c-35504ed496b2.jpg, 0000004135/1.jpg
https://content.gnoss.ws/carq/https://content.gnoss.ws/carq//imagenes/Documentos/imgsem/db/dbe4/dbe4d898-d044-47e7-a494-c3b2789d6f7f/89105a2d-13f4-40b9-a68a-291eafd4aeba.jpg, 0000004135/2.jpg
https://content.gnoss.ws/carq/https://content.gnoss.ws/carq//imagenes/Documentos/imgsem/db/dbe4/dbe4d898-d044-47e7-a494-c3b2789d6f7f/e869f562-bb2f-499e-ab49-f2a5f44229ba.jpg, 0000004135/3.jpg
https://content.gnoss.ws/carq/https://content.gnoss.ws/carq//imagenes/Documentos/imgsem/db/dbe4/dbe4d898-d044-47e7-a494-c3b2789d6f7f/0001d088-f5ef-478d-8f6d-c83c6f0ee4ef.jpg, 0000004135/1089-11945.jpg
https://content.gnoss.ws/carq/https://content.gnoss.ws/carq//imagenes/Documentos/imgsem/db/dbe4/dbe4d898-d044-47e7-a494-c3b2789d6f7f/165b42ed-167d-482f-a87d-9d72364246dd.jpg, 0000004135/1089-11946.jpg
https://content.gnoss.ws/carq/https://content.gnoss.ws/carq//imagenes/Documentos/imgsem/db/dbe4/dbe4d898-d044-47e7-a494-c3b2789d6f7f/ae4ff352-f92c-4201-9d65-2f7256c389bf.jpg, 0000004135/1089-11948.jpg
https://content.gnoss.ws/carq//imagenes/Documentos/imgsem/db/dbe4/dbe4d898-d044-47e7-a494-c3b2789d6f7f/e46bafed-27b3-4e7d-8511-34bbcf0a4ba0.jpg, 0000004135/bonell_gil__brians_situacio.jpg
https://content.gnoss.ws/carq//imagenes/Documentos/imgsem/db/dbe4/dbe4d898-d044-47e7-a494-c3b2789d6f7f/3459aab5-c403-4b56-a0c7-2f66fd28ffef.jpg, 0000004135/bonell_gil__brians_plantes.jpg
https://content.gnoss.ws/carq//imagenes/Documentos/imgsem/db/dbe4/dbe4d898-d044-47e7-a494-c3b2789d6f7f/0a330539-3369-4c25-91c0-5fc95c0735a5.jpg, 0000004135/bonell_gil__brians_seccions.jpg
https://content.gnoss.ws/carq//imagenes/Documentos/imgsem/db/dbe4/dbe4d898-d044-47e7-a494-c3b2789d6f7f/30b9b60c-a9f0-478d-b80b-5856bcf8b6dd.jpg, 0000004135/bonelligil_brians_corquis (3).jpg




