Loading...
Lo más importante era crear un ambiente austero pero confortable. Una “morada”, en lenguaje teresiano, con todas las dependencias funcionales, así como con los lugares de esparcimiento necesarios para un permanente retiro. El lugar es privilegiado por su aislamiento y las vistas a la bahía de San Sebastián.
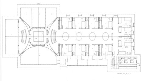
Existía un problema estructural al situarse la mayor parte de las dependencias del convento sobre la iglesia, aprovechando el vacío de un antiguo desván. Se proyectaron unos arcos parabólicos de madera laminada, apoyados en los muros perimetrales, de los que colgaban las dos plantas de celdas que luego fueron revestidas, buscando un ambiente definido solo por luz difusa.
La biblioteca ocupa el centro y recibe luz cenital. El resto de las dependencias reutiliza en parte las del antiguo convento, creándose un nuevo atrio de acceso intramuros. Exteriormente, solo la nueva galería acristalada de las celdas, con vistas a la Concha, permite reconocer la intervención.
General information
Convento de Santa Teresa en San Sebastián
YEAR
Option to visit
Address
c/ Andere.E.Zipitria, 3
20003 Donostia-San Sebastián - Gipuzkoa
Latitude: 43.324140608
Longitude: -1.987317131
Classification
Building materials
Construction system
Madera laminada
Built area
Involved architects
Involved architectural firms
Website links
-
Linazasoro & Sánchez -
Linazasoro & Sánchez -
Linazasoro & Sánchez -
Linazasoro & Sánchez
Location
https://content.gnoss.ws/carq/https://content.gnoss.ws/carq//imagenes/Documentos/imgsem/40/407f/407f2dcd-8763-45b1-94f8-98aa1bf47e7e/f47797c9-8d4c-42eb-ae10-bba68f3d0fd9.jpg, 0000005008/SANTA TERESA 027.jpg
https://content.gnoss.ws/carq/https://content.gnoss.ws/carq//imagenes/Documentos/imgsem/40/407f/407f2dcd-8763-45b1-94f8-98aa1bf47e7e/aaf0c443-fad8-4bb6-9dd6-b5e4bd19a6fb.jpg, 0000005008/SANTA TERESA 032.jpg
https://content.gnoss.ws/carq/https://content.gnoss.ws/carq//imagenes/Documentos/imgsem/40/407f/407f2dcd-8763-45b1-94f8-98aa1bf47e7e/b149ca00-04a4-49e1-bc6e-7e54a96105d2.jpg, 0000005008/SANTA TERESA7.jpg
https://content.gnoss.ws/carq/https://content.gnoss.ws/carq//imagenes/Documentos/imgsem/40/407f/407f2dcd-8763-45b1-94f8-98aa1bf47e7e/5585611c-2b75-45b8-932c-f9aacb928c1a.jpg, 0000005008/SANTA TERESA 029.jpg
https://content.gnoss.ws/carq/https://content.gnoss.ws/carq//imagenes/Documentos/imgsem/40/407f/407f2dcd-8763-45b1-94f8-98aa1bf47e7e/e6026e46-5848-48c8-b4f5-a8f63406282e.jpg, 0000005008/SANTA TERESA 028.jpg
https://content.gnoss.ws/carq/https://content.gnoss.ws/carq//imagenes/Documentos/imgsem/40/407f/407f2dcd-8763-45b1-94f8-98aa1bf47e7e/6c016174-5cca-48ae-987f-0f077cecdbfd.jpg, 0000005008/SANTA TERESA 030.jpg
https://content.gnoss.ws/carq/https://content.gnoss.ws/carq//imagenes/Documentos/imgsem/40/407f/407f2dcd-8763-45b1-94f8-98aa1bf47e7e/8067c135-3706-4c19-b907-16059b116eb6.jpg, 0000005008/SANTA TERESA 031.jpg
https://content.gnoss.ws/carq//imagenes/Documentos/imgsem/40/407f/407f2dcd-8763-45b1-94f8-98aa1bf47e7e/2c6b21c6-bded-4caa-948b-b3b9745add8b.jpg, 0000005008/SANTA TERESA 4.jpg
https://content.gnoss.ws/carq//imagenes/Documentos/imgsem/40/407f/407f2dcd-8763-45b1-94f8-98aa1bf47e7e/91d0fa21-2af2-42e7-947c-3950bc5486b0.jpg, 0000005008/SANTA TERESA 6.jpg
https://content.gnoss.ws/carq//imagenes/Documentos/imgsem/40/407f/407f2dcd-8763-45b1-94f8-98aa1bf47e7e/92b68ad9-5b05-4925-af93-6d3f42905e4b.jpg, 0000005008/SANTA TERESA 1.jpg
https://content.gnoss.ws/carq//imagenes/Documentos/imgsem/40/407f/407f2dcd-8763-45b1-94f8-98aa1bf47e7e/27f47387-d12b-4b82-b81e-86310c1dfca3.jpg, 0000005008/SANTA TERESA 2.jpg
https://content.gnoss.ws/carq//imagenes/Documentos/imgsem/40/407f/407f2dcd-8763-45b1-94f8-98aa1bf47e7e/3cf9c4fb-8d4e-4a0e-a2bb-1b2b6bdae3db.jpg, 0000005008/SANTA TERESA 5.jpg
https://content.gnoss.ws/carq//imagenes/Documentos/imgsem/40/407f/407f2dcd-8763-45b1-94f8-98aa1bf47e7e/2ecc2b86-2418-441e-95c4-c63d8ecb0fa8.jpg, 0000005008/SANTA TERESA 3.jpg





