Loading...
l cortijo Boquera Morilla es una cortijo de principios del siglo XX, año 1889. El encargo surge de un cliente privado. Está situado en el cabo de Gata, cerca de Níjar pueblo.
Es un cortijo construido en su origen siguiendo las tradiciones constructivas de la zona. Arcos, muros de piedra, cubiertas de barro. Antes de la reforma estaba en estado ruinoso. La rehabilitación que se ha llevado a cabo a potenciando la estructura tradicional y revisándola desde una mirada contemporánea.
Ideas de proyecto:
- VIVIENDA COLECTIVA HORIZONTAL:
Uno. El conjunto que se rehabilita, con trece habitaciones, forma parte de una gran estructura de habitaciones, veinticuatro, que se empezó a construir en el 1889 y se ha ido extendiendo en sucesivas ampliaciones (hasta principios del siglo XX). En él viven diferentes generaciones familiares: primos, tías, hermanos y madre del cliente.
Dos. La piezas que se rehabilitan, fruto de una herencia, son un pajar, un palomar, un gallinero, un corral abierto, un troje, un corral cubierto. Todas piezas destinadas a la antigua actividad agrícola del cortijo.
Tres. La unión familiar es monoparental, con 3 miembros, que tienen claro que quieren compartir los veranos de los próximos años en cabo de Gata, a la vez que el cabeza de familia tiene claro que su jubilación y sus últimos días serán en esta casa. De Madrid capital a Níjar.
- HABITAR UNA ESTRUCTURA DE PIEDRA
Uno. Jugar pero sin modificar las lógicas estructurales existentes, en planta y sección. Muros perimetrales de piedra que construyen volúmenes rectangulares de diferentes alturas.
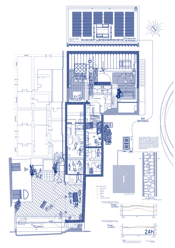
Dos. Mantener la circulación tradicional de este tipo de construcciones: de habitación en habitación. Para ello se derriban tres muros existentes, ampliando los volúmenes donde habitaban animales para que los habiten humanos así como volver a construir la entreplanta del pajar. Antiguamente de madera de pita (pitraco) y actualmente con estructura mixta (metal/hormigón) que acoge el suelo radiante de la vivienda.
Tres. Reconvertir el corral a cielo abierto en un patio donde unos de los volúmenes se abre a este con una arquería, pudiendo recuperar la tradición de sacar la silla al fresco de la tarde tal y como hacen los demás familiares en el resto de las orientaciones sur. Introducir una alberca de las dimensiones de un carril de nado para dar frescos al patio y mantenerse en forma durante la vejez.
- NUEVAS NECESIDADES
- INVIERNO-VERANO
- EL ESPACIO Y EL PLACER
Uno. Los nuevos elementos de la vivienda (baños) no tocan el techo con muro opacos. Solo lo hacen cerramientos móviles y puertas de madera que se adaptan a las dimensiones de los huecos existentes sin tocar las paredes con marcos.
Dos. Introducir luz a través de linternas en cubierta, haciendo que desde el exterior no se pueda ver el interior de la vivienda. En el pajar, solo se abre un hueco (4 m de altura) a norte con la intención de ver el volcán de la Granatilla en cuando se está sentado.
Tres. Dar protagonismo a objetos singulares de piedra como el único arco del antiguo pajar, o la pilastra de piedra que hay en mitad de la entrada, el hueco de paso, de suelo a techo, de los trojes, los antiguos pesebres, haciéndolos participes de la vida cotidiana de la casa.
Cuatro. Generar acontecimientos estéticos en los planos horizontales de suelo a través de las colocación de piedras de gran formato. De forma que ayuden a ubicarte y de inicio de conversaciones sobre el cortijo.
“La habitación de la piedra blanca”. “La textura de la piedra cuadrarda”. Todo ello ideado en colaboración con el artista Ernesto Artillo. Así como un mural que ha realizado Ernesto Artillo en el patio de la vivienda con las pizas cerámicas que se usan en los hornos cerámicos de Níjar. Estas placas, con más de 30 años de uso, recogen toda la herencia de los colores cerámicos de esta comarca.
La vida en el cortijo se relocaliza en dos de las habitaciones que responden a situaciones diferentes de inverno y verano, como en la planta alta del pajar, donde estar resguardado del frio con chimenea y vistas; y la habitación a cielo abierto, donde se disfruta del sol desde la sombra y sin vistas a las detestadas estructuras de los invernadero. Ambos espacios articulados por la cocina.
Para comunicar el proyecto de arquitectura el trabajo fotográfico lo ha desarrollado Ernesto Artillo, con una mirada venida de un mundo ajeno al tradicional de fotografía de arquitectura. Para ello ha desarrollado una narrativa fotográfica –el espacio y el placer– donde, a través de cuerpos desnudos situados en los diferentes espacios de la vivienda, muestra el espacio desde una perspectiva hedonista y placentera.
General information
Cortijo Boquera Morilla
YEAR
Status
Protected architecture
Option to visit
Address
c/ Cañada de los Almendros,
04116 Nijar - Almería
Latitude: 36.892397667
Longitude: -2.10561599
Classification
Construction system
Muro de carga, hormigón armado y estructura de acero.
Built area
Involved architects
Involved architectural firms
Information provided by
Álvaro Carrillo Estudio
Website links
Location
Itineraries
https://content.gnoss.ws/carq/https://content.gnoss.ws/carq//imagenes/Documentos/imgsem/15/15f1/15f17ce4-4c1c-4a9a-a353-30977ac23c5e/a4af1fa7-2c1f-4f46-86e5-d68b0f1d3b7e.jpg, 0000000114/1.jpg
https://content.gnoss.ws/carq/https://content.gnoss.ws/carq//imagenes/Documentos/imgsem/15/15f1/15f17ce4-4c1c-4a9a-a353-30977ac23c5e/3a54807c-0b5b-430b-bcc6-7d1c9c2da3ae.jpg, 0000000114/2.jpg
https://content.gnoss.ws/carq//imagenes/Documentos/imgsem/15/15f1/15f17ce4-4c1c-4a9a-a353-30977ac23c5e/6f86117d-970e-498d-9171-935231f91b59.jpg, 0000000114/PERPECTIVA.jpg



