Loading...
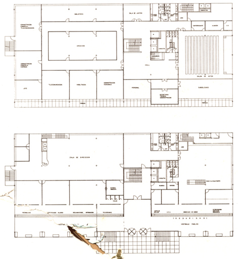
La nueva sede de Comunicaciones de León es un edificio funcional y realizado con medios actuales. Posiblemente no más. Se trató de hacer un cubo que funcione y que permita cambiar este funcionamiento en el transcurso del tiempo; contribuirá a ello la simplificación estructural y la claridad interior.
¡La claridad! ¡Luz y más luz! Dos touches de sabida y conocida representatividad añadirán al muy tranquilo paralelepípedo el prestigio que a un edificio público le corresponde. El intento de situar nuevos materiales en nuevas construcciones existirá siempre. En León se usó la chapa Robertson, que aquí en España se emplea para hipermercados, en un edificio singular, importante, y el resultado es admisible. Exteriormente, por haber pintado la chapa de color León, y en el interior, porque la delicadeza humaniza lo que la sensibilidad, en principio, parece rechazar o exigir.
General information
Edificio de Correos y Telecomunicaciones
YEAR
Option to visit
Address
Plza. Jardin de San Francisco, 2
24004 Leon - León
Latitude: 42.594856033
Longitude: -5.570996239
Classification
Built area
Involved architects
Information provided by
Alejandro de la Sota Foundation
-
Fundación Alejandro de la Sota -
I BEAU -
Fundación Alejandro de la Sota -
Fundación Alejandro de la Sota -
Fundación Alejandro de la Sota -
Fundación Alejandro de la Sota
Location
https://content.gnoss.ws/carq/https://content.gnoss.ws/carq//imagenes/Documentos/imgsem/a4/a4ff/a4ffa25c-7d63-4e79-b0a8-bb45c0d137d6/71675f9b-f373-442a-88a8-f9af88652850.jpg, 0000005485/81_Z_FO_D_205_lg.jpg
https://content.gnoss.ws/carq/https://content.gnoss.ws/carq//imagenes/Documentos/imgsem/a4/a4ff/a4ffa25c-7d63-4e79-b0a8-bb45c0d137d6/d4b8d30e-530e-4dcd-9454-1136fa6c43ab.jpg, 0000005485/81_Z_FO_D_117_lg.jpg
https://content.gnoss.ws/carq/https://content.gnoss.ws/carq//imagenes/Documentos/imgsem/a4/a4ff/a4ffa25c-7d63-4e79-b0a8-bb45c0d137d6/3727bced-2e86-4a3b-bd54-9ee499b25787.jpg, 0000005485/81_Z_FO_D_227_lg.jpg
https://content.gnoss.ws/carq/https://content.gnoss.ws/carq//imagenes/Documentos/imgsem/a4/a4ff/a4ffa25c-7d63-4e79-b0a8-bb45c0d137d6/fa89e838-877a-48f9-a45d-53cb06d927a0.jpg, 0000005485/81_Z_FO_D_243_lg.jpg
https://content.gnoss.ws/carq/https://content.gnoss.ws/carq//imagenes/Documentos/imgsem/a4/a4ff/a4ffa25c-7d63-4e79-b0a8-bb45c0d137d6/fa2b7d06-e14c-4ca3-bb05-f4a3b1c5b5b1.jpg, 0000005485/81_Z_FO_D_247_lg.jpg
https://content.gnoss.ws/carq/https://content.gnoss.ws/carq//imagenes/Documentos/imgsem/a4/a4ff/a4ffa25c-7d63-4e79-b0a8-bb45c0d137d6/bd64563d-288f-4b5e-86ab-2493e700955b.jpg, 0000005485/81_Z_FO_FI_20_lg.jpg
https://content.gnoss.ws/carq//imagenes/Documentos/imgsem/a4/a4ff/a4ffa25c-7d63-4e79-b0a8-bb45c0d137d6/08d2b914-739b-4820-b2b7-8f2bb8ea1e8e.jpg, 0000005485/81_z_cq_3_lg.jpg
https://content.gnoss.ws/carq//imagenes/Documentos/imgsem/a4/a4ff/a4ffa25c-7d63-4e79-b0a8-bb45c0d137d6/255481fc-928b-4a94-8827-f31be43a7f0a.jpg, 0000005485/EDIFICIO DE CORREOS Y TELECOMUNICACIONES P1.jpg







