Loading...
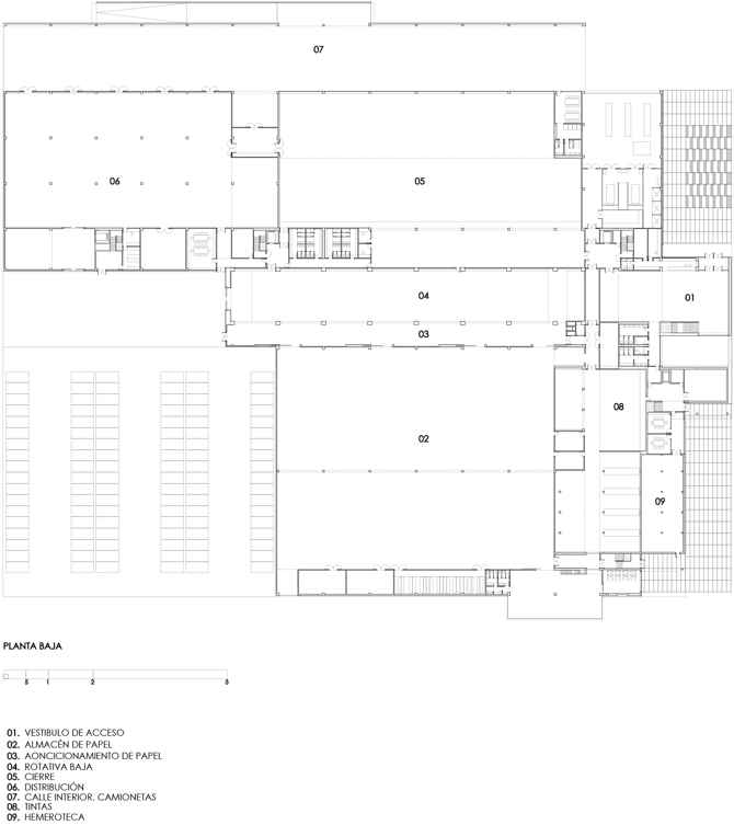
En el proyecto para la nueva sede de la rotativa del Heraldo hubo que trabajar desde el principio con dos cuestiones dadas: la existencia de una nave y unas oficinas que había que conservar y las propias características técnicas de la maquinaria que debía alojar.
La situación del solar respecto a la autovía Zaragoza-Huesca propiciaba que el edificio pudiera convertirse en un punto de atención para los usuarios de este acceso a la ciudad: su visibilidad desde un vehículo en movimiento invitaba a explorar las posibilidades del edificio como icono publicitario, al mismo tiempo que como objeto en el paisaje.
El gran volumen longitudinal de la rotativa se dispone por ello de forma perpendicular a esta autovía. Así, la antigua distribuidora pasa a ser el almacén de papel y el resto del programa se organiza longitudinalmente, dejando libre el eje de crecimiento de la rotativa, que estructura todo el conjunto y se convierte en la pieza destacada que puede apreciarse desde una gran distancia. Este volumen acristalado de la rotativa está protegido de la radiación solar en sus fachadas sur, este y oeste, mediante una malla de metal estirado que no le resta transparencia.
Teniendo en cuenta que el proceso productivo de un periódico implica la utilización del espacio de la rotativa en horario nocturno, se estudió la iluminación adecuada para aumentar su visibilidad y destacar su altura en la oscuridad de la noche.
El edificio puede entenderse, por tanto, como un gran zócalo de altura constante, del que emerge tan solo el volumen de la rotativa. En el vestíbulo de acceso, la piedra de Calatorao y el mármol Tasos marcan la alternancia del “negro sobre blanco” que define este espacio de acogida.
La palabra heraldo, impresa en la marquesina de entrada, aparece de nuevo en el vestíbulo, esta vez en forma de enormes tipos de imprenta. Desde ahí, un recorrido independiente permite al público visitar el edificio, desde la sala de conferencias que dispone de un lado acristalado enfrentado a la maquinaria de la rotativa, hasta la zona de preimpresión o de cierre, sin entorpecer en ningún momento el proceso industrial.
Para la construcción de este extenso zócalo, mayoritariamente sin requerimientos de luz natural, se ha empleado un sistema de fachada ventilada formada por piezas de naturvex o vidrio serigrafiado (de 60 x 2,40 m). Tanto unas como otras pueden ser colocadas de forma vertical o inclinada, de manera que los grandes paños de fachada se descomponen en zonas menores donde la colocación es homogénea. Esta decisión de extender una piel uniforme pero diferenciada permite que las construcciones existentes queden unificadas con el nuevo edificio.
General information
Edificio de rotativa y centro de distribución del Heraldo de Aragón
YEAR
Option to visit
Address
pl. San Miguel, Sector, 4
50830 Villanueva de Gallego - Zaragoza
Latitude: 41.745729976
Longitude: -0.843531378
Construction system
Fachada ventilada de vidrio y tableros de cemento-madera sobre estructura y paneles prefabricados de hormigón.
Built area
Involved architects
Involved architectural firms
Information provided by
Colegio Oficial de Arquitectos de Aragón (COAA)
Website links
Location
Itineraries
https://content.gnoss.ws/carq/https://content.gnoss.ws/carq//imagenes/Documentos/imgsem/c0/c049/c04948e2-43e6-4c07-901e-17d116f8b9d8/256c0250-c616-4a09-a4b6-a1fe550d5097.jpg, 0000028568/Heraldo_Detalle fachada.jpg
https://content.gnoss.ws/carq/https://content.gnoss.ws/carq//imagenes/Documentos/imgsem/c0/c049/c04948e2-43e6-4c07-901e-17d116f8b9d8/e580f10b-7314-4635-9c0f-887b97d4f14a.jpg, 0000028568/Heraldo_Conjunto.jpg
https://content.gnoss.ws/carq/https://content.gnoss.ws/carq//imagenes/Documentos/imgsem/c0/c049/c04948e2-43e6-4c07-901e-17d116f8b9d8/b7e63b66-b60d-4ab3-a25c-ee2b5f90a898.jpg, 0000028568/Heraldo_Patio.jpg
https://content.gnoss.ws/carq/https://content.gnoss.ws/carq//imagenes/Documentos/imgsem/c0/c049/c04948e2-43e6-4c07-901e-17d116f8b9d8/c0c8028d-7a62-4709-8c38-076f39d4e87e.jpg, 0000028568/Heraldo_Fachada lejos.jpg
https://content.gnoss.ws/carq/https://content.gnoss.ws/carq//imagenes/Documentos/imgsem/c0/c049/c04948e2-43e6-4c07-901e-17d116f8b9d8/d5f4c653-be50-4988-b54e-9c5cc3a10b5b.jpg, 0000028568/Heraldo_Rotativa.jpg
https://content.gnoss.ws/carq//imagenes/Documentos/imgsem/c0/c049/c04948e2-43e6-4c07-901e-17d116f8b9d8/f506b479-e954-43b5-b3ed-98b4f59e6560.jpg, 0000028568/Heraldo_situacion.jpg
https://content.gnoss.ws/carq//imagenes/Documentos/imgsem/c0/c049/c04948e2-43e6-4c07-901e-17d116f8b9d8/bafdee42-c1dc-42be-8868-6eecbf72c722.jpg, 0000028568/Heraldo_planta baja.jpg
https://content.gnoss.ws/carq//imagenes/Documentos/imgsem/c0/c049/c04948e2-43e6-4c07-901e-17d116f8b9d8/cb22d574-d197-484b-a6f4-a0fb667e8cc6.jpg, 0000028568/Heraldo_detalle constructivo fachada.jpg



