Loading...
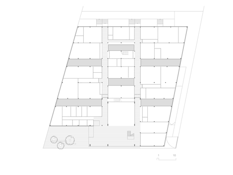
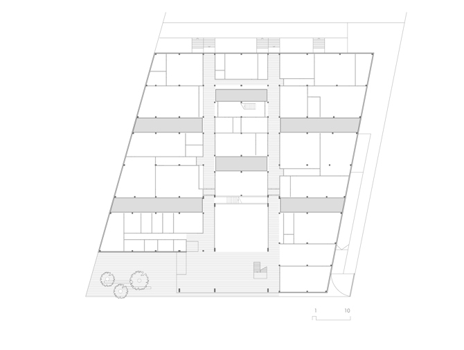
El edificio se organiza en dos piezas superpuestas, la planta baja sigue la geometría de la parcela, mientras que el volumen superior se singulariza mediante el color azul y la geometría ortogonal, convirtiéndose en una pieza singular. El conjunto se dibuja sobre una trama modular, alternando espacios docentes y patios, articulados en un esquema de circulación en anillo que permite una óptima relación entre espacios.
Al entrar se percibe una gran amplitud visual, el vestíbulo se duplica eventualmente con el salón de actos mediante una pared móvil, y una doble altura genera una relación fluida entre plantas. Los distintos talleres dejan ver la actividad que en ellos se realiza mediante mamparas acristaladas, de tal manera que los alumnos conozcan lo que sucede en todos ellos, y no solo en su especialidad. Como en el taller de un artista, se advierte una atmósfera especial. Todo el edificio está impregnado del carácter propio de los espacios de creación. La escuela será lo que su “comunidad” de usuarios quiera que sea. Es un papel “en blanco”, abierto a la creatividad de los alumnos y profesores.
General information
Escuela de Arte de Burgos
YEAR
Option to visit
Address
c/ Sahagún, 2
09001 Burgos - Burgos
Latitude: 42.341754183
Longitude: -3.733141422
Classification
Built area
Awards
Involved architects
Collaborators
Ara González (Elementos gráficos)
Paisajes Españoles (Fotografía aérea)
Juan Carlos Alonso - Pejarbo SL (Estructura)
Noa González (Elementos gráficos y fotografía)
Pilar Santamaría (Arquitectura)
REUQAV Ingeniería (Instalaciones)
Information provided by
González Arquitectos
Website links
-
Escuela Arte Burgos - Sala polivalente - Fernando Guerra -
Estudio primitivo González | eGa -
Estudio primitivo González | eGa -
Fernando Guerra -
Escuela Arte Burgos - Imagen exterior principal - Fernando Guerra -
Escuela Arte Burgos - Vestíbulo pasarela - Fernando Guerra
Location
https://content.gnoss.ws/carq/https://content.gnoss.ws/carq//imagenes/Documentos/imgsem/83/8385/83855fa3-26a5-4b09-9fc1-5dc0d056d035/653a61bf-629a-4971-993b-b9b7934088f8.jpg, 0000001741/02.jpg
https://content.gnoss.ws/carq/https://content.gnoss.ws/carq//imagenes/Documentos/imgsem/83/8385/83855fa3-26a5-4b09-9fc1-5dc0d056d035/970a3f19-25a7-441d-8f8b-fcc29211db2f.jpg, 0000001741/ACUE2013_19_ARTE BURGOS_Guerra_02.jpg
https://content.gnoss.ws/carq/https://content.gnoss.ws/carq//imagenes/Documentos/imgsem/83/8385/83855fa3-26a5-4b09-9fc1-5dc0d056d035/55932d8d-e1bf-42ba-8e5b-ac0c8c80bbab.jpg, 0000001741/06.jpg
https://content.gnoss.ws/carq/https://content.gnoss.ws/carq//imagenes/Documentos/imgsem/83/8385/83855fa3-26a5-4b09-9fc1-5dc0d056d035/eb38c0b4-018b-4826-ad86-e4cf2adb9804.jpg, 0000001741/05.jpg
https://content.gnoss.ws/carq/https://content.gnoss.ws/carq//imagenes/Documentos/imgsem/83/8385/83855fa3-26a5-4b09-9fc1-5dc0d056d035/5c4dfb4a-63ee-4fee-a6db-13057937d987.jpg, 0000001741/08.jpg
https://content.gnoss.ws/carq/https://content.gnoss.ws/carq//imagenes/Documentos/imgsem/83/8385/83855fa3-26a5-4b09-9fc1-5dc0d056d035/614cfcc1-5cb7-4da0-955c-c80f441d4040.jpg, 0000001741/09.jpg
https://content.gnoss.ws/carq/https://content.gnoss.ws/carq//imagenes/Documentos/imgsem/83/8385/83855fa3-26a5-4b09-9fc1-5dc0d056d035/9865df7e-28d1-4501-959c-7e1f464e3c6f.jpg, 0000001741/01.jpg
https://content.gnoss.ws/carq/https://content.gnoss.ws/carq//imagenes/Documentos/imgsem/83/8385/83855fa3-26a5-4b09-9fc1-5dc0d056d035/bfd41a0f-3684-4426-8458-5b01ec878030.jpg, 0000001741/ACUE2013_19_ARTE BURGOS_Guerra_01.jpg
https://content.gnoss.ws/carq/https://content.gnoss.ws/carq//imagenes/Documentos/imgsem/83/8385/83855fa3-26a5-4b09-9fc1-5dc0d056d035/2929380b-8760-4888-957e-4d2d0eafda71.jpg, 0000001741/03.jpg
https://content.gnoss.ws/carq/https://content.gnoss.ws/carq//imagenes/Documentos/imgsem/83/8385/83855fa3-26a5-4b09-9fc1-5dc0d056d035/8f63b9c8-f4eb-48a5-8735-793c2e2115bb.jpg, 0000001741/04.jpg
https://content.gnoss.ws/carq//imagenes/Documentos/imgsem/83/8385/83855fa3-26a5-4b09-9fc1-5dc0d056d035/5cebb4f9-fe41-4560-a41d-8f4acaa11bcf.jpg, 0000001741/Planta 0.jpg
https://content.gnoss.ws/carq//imagenes/Documentos/imgsem/83/8385/83855fa3-26a5-4b09-9fc1-5dc0d056d035/0a3123c2-d308-48f1-8226-1c878c2d0011.jpg, 0000001741/emplazamiento.jpg
https://content.gnoss.ws/carq//imagenes/Documentos/imgsem/83/8385/83855fa3-26a5-4b09-9fc1-5dc0d056d035/fbd7fc97-6a34-461a-9279-dcd465b0f9b6.jpg, 0000001741/Secciones 02.jpg
https://content.gnoss.ws/carq//imagenes/Documentos/imgsem/83/8385/83855fa3-26a5-4b09-9fc1-5dc0d056d035/fdbbf624-eade-4a46-b2bd-155337981688.jpg, 0000001741/situacion.jpg
https://content.gnoss.ws/carq//imagenes/Documentos/imgsem/83/8385/83855fa3-26a5-4b09-9fc1-5dc0d056d035/c450c9e0-e604-48b1-b967-7e5b0a11f1a8.jpg, 0000001741/Secciones.jpg
https://content.gnoss.ws/carq//imagenes/Documentos/imgsem/83/8385/83855fa3-26a5-4b09-9fc1-5dc0d056d035/35c205d3-c0fb-4473-9d9a-00f47400ae1d.jpg, 0000001741/Planta 1.jpg







