Loading...
El proyecto resultante es más una manera de construir el lugar, que una respuesta definitiva.
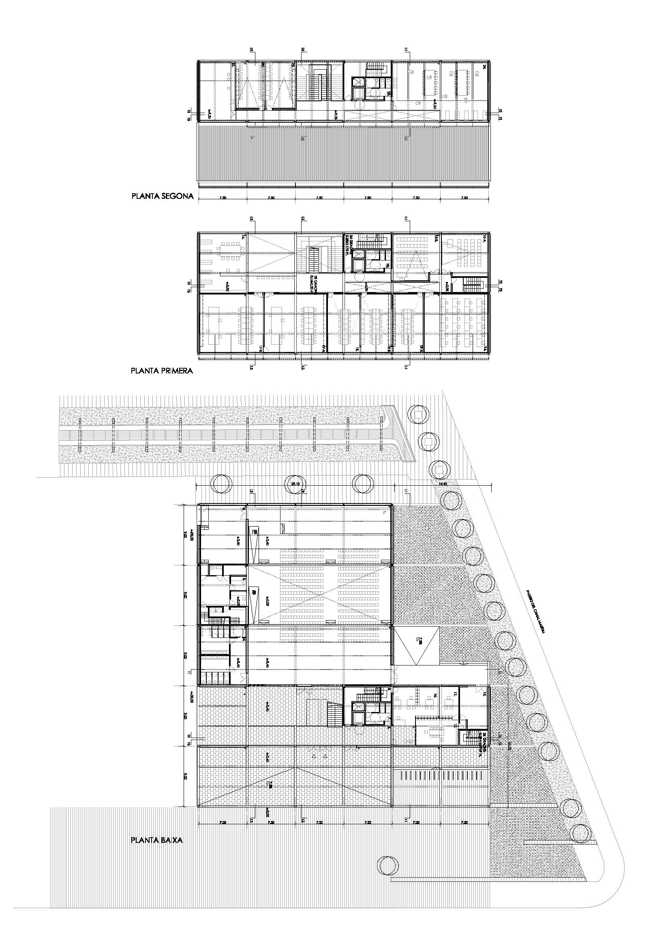
- Primera fase: ha comprendido la construcción del primer edificio, el de la Escuela de Arte y Diseño. Este incluye en planta baja una sala polivalente que forma parte del programa del segundo edificio a construir, el pabellón de ferias, actualmente en fase de proyecto.
- Contaminación: no entendemos el proyecto como dos edificios aislados. Proponemos una intervención que favorezca una lectura conjunta. Adoptamos el verbo “contaminar” para explicar lo que buscamos; mezclar el uno en el otro, encontrar un lenguaje común. En planta y en sección. En la forma y en el fondo. Las dimensiones del auditorio fijan las luces de la feria. Los espacios más pequeños de la feria toman las dimensiones de las aulas de la escuela, y viceversa.
- Franjas: los edificios se organizan por franjas de 9 m de anchura, y de alturas variables [+4 m/+8 m/+12 m]. Estas franjas se agrupan y deslizan en función del programa, del entorno y de los límites edificables. La nueva topografía alcanza desde la escala más humana de los porches y las piezas bajas, hasta la escala de los tragaluces y la edificación en altura.
- Sistema: el proyecto resultante es más una manera de construir el lugar que una respuesta definitiva. Unas reglas de juego que permiten sistematizar los posibles cambios de programa o la construcción por fases. Parámetros fijos que otorgan flexibilidad al resultado final.
- Programa: el acceso, a través de un gran porche, comunica con la zona destinada a exposiciones y la sala polivalente de manera secuencial. En planta baja colocamos despachos y la sala de profesorado, que junto con el núcleo de comunicación y de servicios agotan la ocupación permitida para el solar. El resto del equipamiento se organiza en altura. Plantas alargadas con sus dos caras principales orientadas norte-sur. La orientación del edificio nos permite colocar las aulas de forma que todas reciban luz natural de norte.
- En proceso: el viento de mistral, la geología del delta y la carencia de financiación, entre otros, son ahora los factores determinantes para continuar. Nuevos datos que nos hacen redibujar una y otra vez el proyecto, con la certeza de que continúa siendo el mismo.
General information
Escuela de Arte y Diseño de Amposta
YEAR
Option to visit
Address
c/ Sebastià Juan Arbó, 2
43870 Amposta - Tarragona
Latitude: 40.706026464
Longitude: 0.5852169357
Classification
Construction system
Estructura metalica vista, y fahada ventilada
Built area
Collaborators
Involved architectural firms
Information provided by
david sebastian arquitectes
Location
https://content.gnoss.ws/carq/https://content.gnoss.ws/carq//imagenes/Documentos/imgsem/ba/baf9/baf91e18-d3f7-4809-ab79-b29a92ec6e77/887f545c-90ba-4a9f-892b-24a6967cb6fc.jpg, 0000001726/representativa escuela amposta.jpg
https://content.gnoss.ws/carq/https://content.gnoss.ws/carq//imagenes/Documentos/imgsem/ba/baf9/baf91e18-d3f7-4809-ab79-b29a92ec6e77/5fadfecb-2184-428b-bd3c-753b3548abea.jpg, 0000001726/ACUE2013_14_ARTE_Goula_02.jpg
https://content.gnoss.ws/carq/https://content.gnoss.ws/carq//imagenes/Documentos/imgsem/ba/baf9/baf91e18-d3f7-4809-ab79-b29a92ec6e77/a3dab482-ae54-4cbb-9340-bbea100ceece.jpg, 0000001726/_N7X2732+33.jpg
https://content.gnoss.ws/carq/https://content.gnoss.ws/carq//imagenes/Documentos/imgsem/ba/baf9/baf91e18-d3f7-4809-ab79-b29a92ec6e77/f9b52d1c-79ac-410c-b0f4-8333b8af53fa.jpg, 0000001726/_N7X2488.jpg
https://content.gnoss.ws/carq/https://content.gnoss.ws/carq//imagenes/Documentos/imgsem/ba/baf9/baf91e18-d3f7-4809-ab79-b29a92ec6e77/2be98d4e-a3c0-480b-9e37-76a50bc62ca2.jpg, 0000001726/_N7X2495.jpg
https://content.gnoss.ws/carq/https://content.gnoss.ws/carq//imagenes/Documentos/imgsem/ba/baf9/baf91e18-d3f7-4809-ab79-b29a92ec6e77/13ae81e1-29ed-4a01-8600-09bef320e913.jpg, 0000001726/_N7X2512.jpg
https://content.gnoss.ws/carq/https://content.gnoss.ws/carq//imagenes/Documentos/imgsem/ba/baf9/baf91e18-d3f7-4809-ab79-b29a92ec6e77/abf37c39-6b04-4d20-a15a-f8e5ea8f2079.jpg, 0000001726/_N7X2692.jpg
https://content.gnoss.ws/carq/https://content.gnoss.ws/carq//imagenes/Documentos/imgsem/ba/baf9/baf91e18-d3f7-4809-ab79-b29a92ec6e77/044ba55c-40b2-4a88-a66c-1ec308a2138e.jpg, 0000001726/_MG_0274+75.jpg
https://content.gnoss.ws/carq/https://content.gnoss.ws/carq//imagenes/Documentos/imgsem/ba/baf9/baf91e18-d3f7-4809-ab79-b29a92ec6e77/d30fd728-866d-4004-891f-563ce022e4fe.jpg, 0000001726/_MG_0346.jpg
https://content.gnoss.ws/carq/https://content.gnoss.ws/carq//imagenes/Documentos/imgsem/ba/baf9/baf91e18-d3f7-4809-ab79-b29a92ec6e77/73153b3b-3fc5-4141-bf5d-c94b128819b0.jpg, 0000001726/_MG_0409+10.jpg
https://content.gnoss.ws/carq/https://content.gnoss.ws/carq//imagenes/Documentos/imgsem/ba/baf9/baf91e18-d3f7-4809-ab79-b29a92ec6e77/2e9756a2-e8bb-4bff-b3a5-c6d692d2ad4d.jpg, 0000001726/_MG_0437+38.jpg
https://content.gnoss.ws/carq/https://content.gnoss.ws/carq//imagenes/Documentos/imgsem/ba/baf9/baf91e18-d3f7-4809-ab79-b29a92ec6e77/78ead588-e128-4aa3-a343-e39697664dfe.jpg, 0000001726/_MG_0519.jpg
https://content.gnoss.ws/carq/https://content.gnoss.ws/carq//imagenes/Documentos/imgsem/ba/baf9/baf91e18-d3f7-4809-ab79-b29a92ec6e77/e223c1cb-cc1c-4642-bd67-70871c0991d1.jpg, 0000001726/_MG_0651+52.jpg
https://content.gnoss.ws/carq/https://content.gnoss.ws/carq//imagenes/Documentos/imgsem/ba/baf9/baf91e18-d3f7-4809-ab79-b29a92ec6e77/72048406-abbf-429f-ae16-d5de483a3117.jpg, 0000001726/_MG_0678.jpg
https://content.gnoss.ws/carq/https://content.gnoss.ws/carq//imagenes/Documentos/imgsem/ba/baf9/baf91e18-d3f7-4809-ab79-b29a92ec6e77/322adffb-c03f-48d5-8f6c-73f1e72de266.jpg, 0000001726/_MG_0681.jpg
https://content.gnoss.ws/carq//imagenes/Documentos/imgsem/ba/baf9/baf91e18-d3f7-4809-ab79-b29a92ec6e77/1db78019-190f-4ff5-9028-39e0dbb161b2.jpg, 0000001726/axonometria constructiva.jpg
https://content.gnoss.ws/carq//imagenes/Documentos/imgsem/ba/baf9/baf91e18-d3f7-4809-ab79-b29a92ec6e77/b094a377-e036-4505-a36d-d31b17b3df1b.jpg, 0000001726/03_plantes.jpg
https://content.gnoss.ws/carq//imagenes/Documentos/imgsem/ba/baf9/baf91e18-d3f7-4809-ab79-b29a92ec6e77/d4710702-0c4f-4d8e-baf7-abb870895d30.jpg, 0000001726/04_seccions 1a50_Pagina_2.jpg
https://content.gnoss.ws/carq//imagenes/Documentos/imgsem/ba/baf9/baf91e18-d3f7-4809-ab79-b29a92ec6e77/7705f89d-1733-4d64-919f-e9949e42e600.jpg, 0000001726/02_axonometria estructura general.jpg
https://content.gnoss.ws/carq//imagenes/Documentos/imgsem/ba/baf9/baf91e18-d3f7-4809-ab79-b29a92ec6e77/18cf40be-f6f2-4e20-94f8-c20197f65b83.jpg, 0000001726/01_emplacament.jpg
https://content.gnoss.ws/carq//imagenes/Documentos/imgsem/ba/baf9/baf91e18-d3f7-4809-ab79-b29a92ec6e77/15918676-e681-49e6-ad16-803cd3d8aca8.jpg, 0000001726/planta baixa conjunt.jpg



