Loading...
Yoglar es una nueva escuela de educación musical temprana y piano que se ubica en el Ensanche de Burgos, donde la propietaria nos solicitó crear «una casa para la música». Se pretende que sea un lugar simultáneamente singular y pragmático, que fomente la creatividad de los niños y obtenga unos resultados eficaces en su formación musical entre los 0 y 12 años.
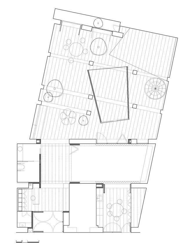
El local, un antiguo garaje situado en los bajos de un viejo edificio de viviendas, tiene una configuración singular, fruto de dos proyectos de comienzos de la década de 1950. El primero, en la parte delantera de la parcela, se corresponde con el edificio de viviendas y el local originales, según proyecto de 1947; posee una ordenada estructura de dos crujías de muros de carga paralelos a la fachada. El segundo, en la parte posterior, es fruto de la ampliación de 1952, cuando se colmató casi por completo el antiguo patio trasero a nivel de planta baja y se añadió una entreplanta para su uso como almacén; la estructura de esta parte es mucho más desordenada, y se configura mediante pilares puntuales.
El proyecto pretende aprovechar los valores de este peculiar contenedor en que se inserta, para lo que conserva su envolvente sin apenas modificaciones. El suelo, las paredes y los techos se unifican mediante una continuidad material y cromática que dejan casi todo a la vista y aprovechan las buenas propiedades acústicas de dicha envolvente, un tanto informe. Dentro de este contenedor irregular, en color gris cemento, el proyecto muestra dos partes diferenciadas:
A. El espacio situado bajo el edificio de viviendas, de forma trapezoidal, regulado por el claro orden de la estructura de los muros que configuran las dos crujías paralelas, y donde se sitúan la recepción, los vestíbulos, el aseo, la administración y el aula de mayores dimensiones.
B. El ‘bosque’, o espacio situado en el antiguo patio del edificio, caracterizado por un perímetro y estructura aparentemente desordenados, donde se ubican las dos aulas restantes, o ‘casas’, de geometría irregular. Una de ellas se reviste externa e internamente con corcho natural de 30 mm de espesor. La otra, tan solo un volumen de aire imaginario, apenas se manifiesta físicamente mediante su pavimento. Al fondo de este bosque artificial, un pequeño patio que se puede incorporar espacialmente de manera sencilla aporta la luz natural necesaria.
Junto al gris dominante de la envolvente, el proyecto se complementa con elementos que puntualmente le dotan de una mayor amabilidad, como el ‘mobiliario inmóvil’ de madera de abedul.
Todo ello con el fin de generar un espacio atractivo para los niños, capaz de fomentar su imaginación, su creatividad y su interés temprano hacia la música.
General information
Escuela de música infantil temprana y piano
YEAR
Address
C/ de Sedano, 7
09005 Burgos - Burgos -Burgos
Latitude: 42.350644541
Longitude: -3.696549099
Built area
Involved architectural firms
Information provided by
Jerez Arquitectos
Location
https://content.gnoss.ws/carq/https://content.gnoss.ws/carq//imagenes/Documentos/imgsem/8b/8b55/8b557d2d-ed55-43c1-8814-7ce6cd193a22/8dba6fb9-a77b-49eb-a752-a19008cdda3c.jpg, 0000106328/Yoglar INT 19.jpg
https://content.gnoss.ws/carq/https://content.gnoss.ws/carq//imagenes/Documentos/imgsem/8b/8b55/8b557d2d-ed55-43c1-8814-7ce6cd193a22/81d60f4d-4b85-456f-b429-a380408f7ef1.jpg, 0000106328/Yoglar INT 18.JPG
https://content.gnoss.ws/carq/https://content.gnoss.ws/carq//imagenes/Documentos/imgsem/8b/8b55/8b557d2d-ed55-43c1-8814-7ce6cd193a22/8543f2b0-b391-4108-a31b-3548c5305439.jpg, 0000106328/Yoglar INT 23.JPG
https://content.gnoss.ws/carq/https://content.gnoss.ws/carq//imagenes/Documentos/imgsem/8b/8b55/8b557d2d-ed55-43c1-8814-7ce6cd193a22/24e85d5d-22b4-465b-874e-afe2535c2de9.jpg, 0000106328/Yoglar INT 12.JPG
https://content.gnoss.ws/carq/https://content.gnoss.ws/carq//imagenes/Documentos/imgsem/8b/8b55/8b557d2d-ed55-43c1-8814-7ce6cd193a22/9bfb3269-1538-4ad8-9973-d4e9c1664eed.jpg, 0000106328/Yoglar INT 07.JPG
https://content.gnoss.ws/carq/https://content.gnoss.ws/carq//imagenes/Documentos/imgsem/8b/8b55/8b557d2d-ed55-43c1-8814-7ce6cd193a22/2644542f-b3e2-4ef9-b067-1bc81c1cb042.jpg, 0000106328/Yoglar INT 16.JPG
https://content.gnoss.ws/carq/https://content.gnoss.ws/carq//imagenes/Documentos/imgsem/8b/8b55/8b557d2d-ed55-43c1-8814-7ce6cd193a22/0cc341f5-c95c-4577-b2f1-4b850c23f1d3.jpg, 0000106328/Yoglar INT 21.JPG
https://content.gnoss.ws/carq/https://content.gnoss.ws/carq//imagenes/Documentos/imgsem/8b/8b55/8b557d2d-ed55-43c1-8814-7ce6cd193a22/331d81a4-619f-42c6-98ac-17b68b2e3974.jpg, 0000106328/Yoglar INT 08.JPG
https://content.gnoss.ws/carq//imagenes/Documentos/imgsem/8b/8b55/8b557d2d-ed55-43c1-8814-7ce6cd193a22/c7f05bdb-c100-49e7-a6e7-63ff76988f0c.jpg, 0000106328/Yoglar_Desplegable.jpg
https://content.gnoss.ws/carq//imagenes/Documentos/imgsem/8b/8b55/8b557d2d-ed55-43c1-8814-7ce6cd193a22/f21dad26-65d9-4347-b65d-82d09b44a3a7.jpg, 0000106328/Yoglar_Pta.jpg
https://content.gnoss.ws/carq//imagenes/Documentos/imgsem/8b/8b55/8b557d2d-ed55-43c1-8814-7ce6cd193a22/3cf999d4-441c-4c77-880c-d07c8150fe84.jpg, 0000106328/Yoglar_Casa Percusion 01.jpg



