Loading...
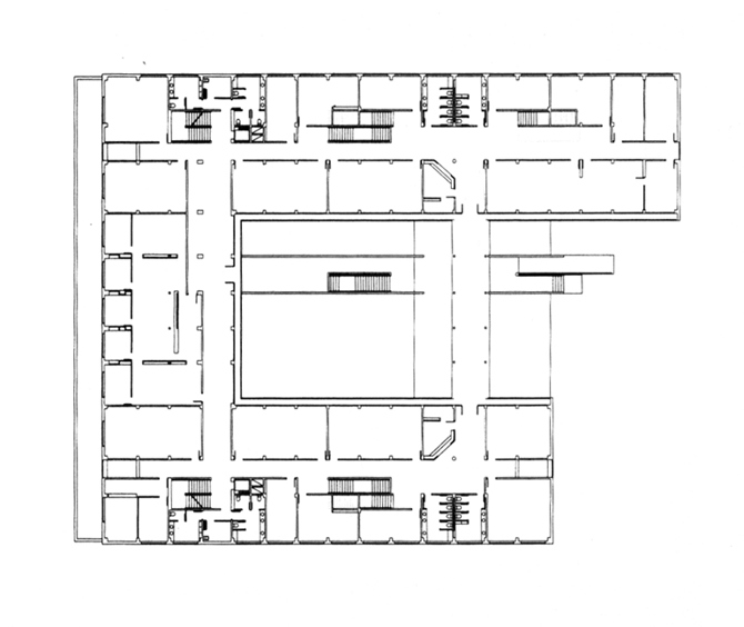
La Escuela de Negocios es una edificación en forma de U que se empotra en el terreno para perder presencia y generar un espacio exterior propio y controlado. El cerramiento de su fachada exterior, construido en grandes prefabricados de hormigón, actúa como una auténtica barrera frente al ruido y el tumulto provocado por la ronda interior, el centro comercial y los accesos peatonales de la universidad.
El cerramiento hacia el interior se realiza en vidrio y lamas pivotantes de madera que propician unas intensas relaciones visuales entre las partes y un ambiente cálido y diferenciado. El resultado es una suerte de claustro central, abierto y cerrado, por encima y por debajo de la rasante que, atravesado por un puente y permeable por hasta seis puntos distintos, se presenta como un espacio dinámico pero sereno, con identidad propia pero en intensa relación con el espacio público al que se abre.
La compartimentación del interior se resuelve de forma que permita, por transparencia, la continua presencia del patio central. La imagen final de la edificación es de una pretendida limpieza, la abstracción formal se refuerza con la suspensión del edificio sobre el suelo y es la construcción quien marca en las fachadas los trazos de su ejecución como únicos elementos gráficos sobre ella.
El edificio de la Escuela de Negocios afianza con su imagen la idea desarrollada en su concepción siendo el resultado formal fruto directo de la idea desarrollada y del programa incorporado. Los paños lisos, las formas puras, la geometría esencial, los colores neutros, dan testimonio del valor de la abstracción como lenguaje.
General information
Escuela de Negocios (Universidad de Alicante)
YEAR
Option to visit
Address
Universidad de Alicante,
03690 Sant Vicent del Raspeig - Alacant
Latitude: 38.382471511
Longitude: -0.511927577
Classification
Built area
Involved architects
Involved architectural firms
Information provided by
V BEAU
Website links
Location
https://content.gnoss.ws/carq/https://content.gnoss.ws/carq//imagenes/Documentos/imgsem/25/25a7/25a7fb67-5914-4641-b7a7-00213701dca6/fe5330fc-99c5-469c-9192-4bbe26fda668.jpg, 0000003091/Escuela de Negocios 2 .jpg
https://content.gnoss.ws/carq/https://content.gnoss.ws/carq//imagenes/Documentos/imgsem/25/25a7/25a7fb67-5914-4641-b7a7-00213701dca6/6885cc15-656b-4d67-8276-7a1644a4ec68.jpg, 0000003091/Escuela de Negocios.jpg
https://content.gnoss.ws/carq/https://content.gnoss.ws/carq//imagenes/Documentos/imgsem/25/25a7/25a7fb67-5914-4641-b7a7-00213701dca6/6c2a8790-df1d-4ab8-a8a6-cc6fd4046bef.jpg, 0000003091/Escuela de Negocios 1 .jpg
https://content.gnoss.ws/carq//imagenes/Documentos/imgsem/25/25a7/25a7fb67-5914-4641-b7a7-00213701dca6/3aef6d22-b306-4c71-8b2c-5e5c9e7ba573.jpg, 0000003091/Escuela de Negocios planta .jpg



