Loading...
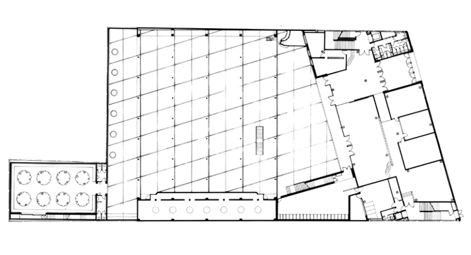
En una zona de gran densidad del barrio de Gràcia de Barcelona debe construirse una escuela en un solar entre medianeras, en cuyo patio interior de manzana existen las naves de los antiguos Talleres Mañach (1916), obra del arquitecto Josep M.ª Jujol. Ante la escasez de espacio para cumplir el programa requerido, el proyecto propone una construcción en altura, alineada a la Riera de Sant Miquel, ocupando toda la profundidad edificable y, en consecuencia, cerrando la manzana.
La obligada pista deportiva se sitúa en la cubierta; la planta, de corredor central y escaleras y servicios en los extremos, se adapta fácilmente al programa; un paso en la planta baja –el sótano no se ha realizado– permite el uso público de la nave de Jujol. Como es habitual, se realiza tanto el interior como el exterior en ladrillo, aunque en las fachadas las ventanas se revisten con una fina capa de piedra artificial que dibuja unas oberturas tripartitas acorde con la anchura de las persianas.
La fábrica jujoliana, independizada mediante el corte de dos crujías, queda “apeada” en sus “nuevas” fachadas para hacerla permeable y pintada en colores de la paleta del arquitecto; se ofrece como un object trouvé en el centro del patio.
General information
Escuela Josep Maria Jujol
YEAR
Option to visit
Address
c/ de la Riera de Sant Miquel, 39
08006 Barcelona - Barcelona
Latitude: 41.398210621
Longitude: 2.1558821396
Classification
Built area
Involved architectural firms
Information provided by
Bach-Mora Arquitectes
Website links
Location
Itineraries
https://content.gnoss.ws/carq//imagenes/Documentos/imgsem/f9/f9fd/f9fda1d7-966a-46f8-96d4-cd9c377f178a/f57fb74c-4937-4313-b0dd-055dc5ad2173.jpg, 0000022138/A0225_BACH-MORA Arquitectes (5).jpg
https://content.gnoss.ws/carq//imagenes/Documentos/imgsem/f9/f9fd/f9fda1d7-966a-46f8-96d4-cd9c377f178a/6fb35a1a-618a-4a65-9f6b-67c647114b22.jpg, 0000022138/A0225_BACH-MORA Arquitectes (4).jpg
https://content.gnoss.ws/carq//imagenes/Documentos/imgsem/f9/f9fd/f9fda1d7-966a-46f8-96d4-cd9c377f178a/05a19abd-cdb8-4644-b8c4-abcd4ffffb8c.jpg, 0000022138/A0225_BACH-MORA Arquitectes (3).jpg
https://content.gnoss.ws/carq//imagenes/Documentos/imgsem/f9/f9fd/f9fda1d7-966a-46f8-96d4-cd9c377f178a/a077aa61-22ca-496f-817d-8faec65d32d6.jpg, 0000022138/A0225_BACH-MORA Arquitectes (7).jpg
https://content.gnoss.ws/carq//imagenes/Documentos/imgsem/f9/f9fd/f9fda1d7-966a-46f8-96d4-cd9c377f178a/ae207b73-f2e7-4bb5-b22e-197e9d929e47.jpg, 0000022138/page-127_3.jpg



