Loading...
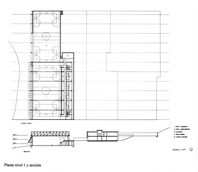
Polideportivo municipal en Montgat. Un conjunto de pórticos-arcadas dan un fuerte claroscuro a un muro de contención que marca el límite del solar, el de la implantación es el único elemento que requiere el lugar, visto desde cerca, desde lejos, visto desde la cercana-tangente autopista o desde el mar que tan próximo está al emplazamiento. Tras el muro se alinean y apoyan dos recintos deportivos casi idénticos, uno cubierto y el otro al aire libre, la pared que define el dentro fuera marca el límite entre ambos. El espacio interior es un prisma elemental, sin obstáculos que lo desvirtúen, las paredes y techos que lo delimitan se funden entre ellos. Las aristas son la única huella, las instalaciones, luminarias, megafonía, estructura, etc., van por detrás, parece que las fachadas, si existen, se pueden ver desde el interior, por fuera los esfuerzos estructurales, el hormigón, las zapatas, el resto casi todo.
Un desnivel existente en la topografía del lugar permite acceder al edificio desde arriba, de esta forma el plano del suelo ocupado por la pista deportiva y origen de la construcción adquiere una mayor relevancia.
La línea de horizonte del mar que se dibuja en el interior y a través de la amplia vidriera que en sentido longitudinal cierra por el sur, enfrentada al plano de acceso, es una magnífica pero dura competencia al plano del suelo, pero al que el proyecto en ningún momento quiere renunciar.
Un edificio también puede ser solamente un marco-ventana o donde fluye el paisaje. La escuela forma parte de un conjunto de equipamientos que se ubican en la vaguada natural conocida por La Concordia, al norte del núcleo urbano de Montgat, con una topografía fuerte y escalonada donde destacan sus continuas visuales al mar.
General information
Escuela pública y polideportivo municipal Pla de la Concordia
YEAR
Option to visit
Address
avda. de la Unió,
08390 Montgat - Barcelona
Latitude: 41.467790392
Longitude: 2.2751103128
Classification
Built area
Collaborators
Involved architectural firms
Information provided by
II BEAU
Website links
Location
https://content.gnoss.ws/carq/https://content.gnoss.ws/carq//imagenes/Documentos/imgsem/04/04e0/04e0d141-831a-4609-9b26-4fbe9bfd5482/1d9bc4d7-bef1-4873-819d-37ea67bd6b2a.jpg, 0000014053/20160624111314_02BE-29 1.jpg
https://content.gnoss.ws/carq/https://content.gnoss.ws/carq//imagenes/Documentos/imgsem/04/04e0/04e0d141-831a-4609-9b26-4fbe9bfd5482/2aa4fc04-b46d-4b76-9fb2-dc94bf26877c.jpg, 0000014053/20160624111314_02BE-29 2.jpg
https://content.gnoss.ws/carq/https://content.gnoss.ws/carq//imagenes/Documentos/imgsem/04/04e0/04e0d141-831a-4609-9b26-4fbe9bfd5482/77f9438c-70d2-4c50-8f3b-394d48f3382d.jpg, 0000014053/20160624111314_02BE-29 7.jpg
https://content.gnoss.ws/carq//imagenes/Documentos/imgsem/04/04e0/04e0d141-831a-4609-9b26-4fbe9bfd5482/bde93744-1fd3-4b53-90d8-50b0e2814bc1.jpg, 0000014053/20160624111314_02BE-29 4.jpg



