Loading...
El antiguo parque de bomberos de la calle Lleida, en el barrio del Poble Sec de Barcelona, se construyó con motivo de la Exposición Internacional de 1929 y se convirtió en un nuevo equipamiento, como parte de la red de espacios culturales “Montaña de museos de Montjuic”. El edificio original, diseñado por el arquitecto Emilio Gutiérrez, fue el primer edificio construido específicamente para este fin en España y es el único parque de bomberos histórico que se conserva en Barcelona. El edificio original está incluido en el Distrito del Plan Especial de Protección y Catálogo del Patrimonio Arquitectónico. Ha estado activo como parque de bomberos hasta el año 2000. Entre 2000 y 2011 ha sido ocupado por las unidades de la Policía Nacional.
Nuestro proyecto ha sido objeto de un concurso en 2013 para la rehabilitación y transformación del antiguo parque de bomberos, inaugurado oficialmente como museo en noviembre de 2016. Se trata de un equipamiento público que alberga un programa de zonas de exposición, formación y divulgación de todo lo relacionado con la prevención de catástrofes y emergencias, y también un lugar de encuentro para el ocio y los bomberos jubilados.
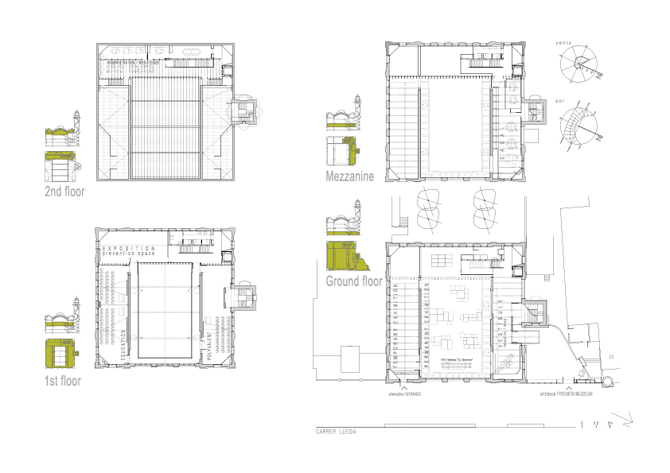
Las piezas expuestas proceden de los amplios y valiosos fondos del Cuerpo de Bomberos de Barcelona, que contienen entre otros materiales: vehículos, maquinaria, equipos, uniformes y una importante colección fotográfica. Una vez reformado, el edificio ha visto ampliada su superficie de 1.095 m2 a 1.433 m2. La intervención principal ha consistido en la eliminación del muro frontal existente, y la perforación de los muros laterales y su conexión en cuatro puntos principales, los “rincones del encuentro”. El proceso de unión de la nueva fachada interior de vidrio y los muros perforados existentes permite la continuidad y conexión visual de ambos en cada dirección. Los muros existentes se perforaron con el delicado método de los recortes de disco.
La entrada principal del museo que recuperó el histórico acceso lateral permitió una mejor organización del edificio y el acceso en la situación ideal respecto a la red urbana (desde la perspectiva frontal de la calle Tamarit). El espacio expositivo central actúa como una calle cubierta. Permite la máxima conexión visual con el espacio expositivo abierto.
Este espacio se ilumina tanto a través de la calle como de la fachada del patio del colegio vecino. La inserción de la nueva nave aumentó la superficie del edificio añadiendo dos nuevos niveles (entresuelo y segunda planta) que permiten una triple secuencia del espacio expositivo. La torre se recupera como elemento de circulación vertical y escalera de emergencia: una “tierra vertical”, simbólica y funcional, que permite una mayor economía del espacio.
El proyecto ha supuesto la rehabilitación integral y la puesta en valor de sus elementos más característicos del patio y la torre (antaño utilizada para prácticas) y se ha reconstruido en el nuevo su cuerpo dentro de una nueva estructura metálica de cuatro plantas. El antiguo parque de bomberos constaba de dos plantas y estaba construido con las técnicas de su época: estructura vertical de muros de ladrillo macizo y estructura metálica horizontal. Nuestra propuesta consistía en la consolidación del antiguo edificio y la construcción de una nueva nave en el fondo del atrio central del edificio. Esta nave, de 3 plantas de altura, se apoya en un muro cortina de pilares de acero de 8 x 12 cm cada 50 cm.
La intervención ha buscado una mayor transparencia entre los espacios expositivos, utilizando sobre todo vidrio en el nuevo cuerpo y mediante la perforación de los muros laterales interiores existentes. Se eliminan los lucernarios existentes en las cubiertas y la planta superior de la nueva nave se abre a las terrazas accesibles e incluidas en la visita. Se define una secuencia de tres espacios expositivos P0-P1-P2, abiertos en su totalidad a un espacio de patio interior.
General information
Espai Bombers. Parc de la Prevenció de Barcelona
YEAR
Status
Protected architecture
Option to visit
Address
c/ de Lleida, 30
08004 Barcelona - Barcelona
Latitude: 41.3737146
Longitude: 2.1545459
Classification
Built area
Awards
Involved architectural firms
Information provided by
EUMies Award
Location
https://content.gnoss.ws/carq/https://content.gnoss.ws/carq//imagenes/Documentos/imgsem/a9/a9b8/a9b875b5-4568-471b-b552-83c2caf0972f/b26a1883-54e8-48ad-b673-83cefdd506f2.jpg, 0000001348/ACUE2017_24_BOMBEROS_Surroca_01.jpg
https://content.gnoss.ws/carq/https://content.gnoss.ws/carq//imagenes/Documentos/imgsem/a9/a9b8/a9b875b5-4568-471b-b552-83c2caf0972f/53c7a7bb-602f-43f2-ac13-d7697782476f.jpg, 0000001348/ACUE2017_24_BOMBEROS_Surroca_02.jpg
https://content.gnoss.ws/carq/https://content.gnoss.ws/carq//imagenes/Documentos/imgsem/a9/a9b8/a9b875b5-4568-471b-b552-83c2caf0972f/5b9f57d0-d029-47e7-9ea9-dea14b2bc65b.jpeg, 0000001348/9b58676319d4afd993031500bbe900b3b0919ca8.jpeg
https://content.gnoss.ws/carq/https://content.gnoss.ws/carq//imagenes/Documentos/imgsem/a9/a9b8/a9b875b5-4568-471b-b552-83c2caf0972f/d75f6a7c-db4c-48ff-8351-9c02e6d7e72c.jpeg, 0000001348/73a0b95173c989265a2c9df72b0a734c162d3b27.jpeg
https://content.gnoss.ws/carq/https://content.gnoss.ws/carq//imagenes/Documentos/imgsem/a9/a9b8/a9b875b5-4568-471b-b552-83c2caf0972f/d940ecbd-2c54-4b93-b2cd-609d68304746.jpeg, 0000001348/ae071898e7dc29f56cc971c2b8f868fdf46aa3dc.jpeg
https://content.gnoss.ws/carq/https://content.gnoss.ws/carq//imagenes/Documentos/imgsem/a9/a9b8/a9b875b5-4568-471b-b552-83c2caf0972f/40c6b65c-7077-4f3d-81a2-856c92a40f5d.jpeg, 0000001348/db2c126cbed08952f187a977ae773ce60a1248ea.jpeg
https://content.gnoss.ws/carq//imagenes/Documentos/imgsem/a9/a9b8/a9b875b5-4568-471b-b552-83c2caf0972f/2de1dd18-72b6-4b50-bf14-f8b738b1a216.jpeg, 0000001348/7b6d5207b40fc0a279f2d0ed1824bd325e3c9a87.jpeg
https://content.gnoss.ws/carq//imagenes/Documentos/imgsem/a9/a9b8/a9b875b5-4568-471b-b552-83c2caf0972f/f5e180a5-0322-442c-9cf9-fe4de574c3a2.jpeg, 0000001348/8a200afa5c71c12bf58c02c2250804caa99876c6.jpeg
https://content.gnoss.ws/carq//imagenes/Documentos/imgsem/a9/a9b8/a9b875b5-4568-471b-b552-83c2caf0972f/2e8e6c43-d33b-4250-b869-f5b5ec120362.jpeg, 0000001348/8d779d815c1a55079a5a3edb43bc299c4b1ff6de.jpeg
https://content.gnoss.ws/carq//imagenes/Documentos/imgsem/a9/a9b8/a9b875b5-4568-471b-b552-83c2caf0972f/f92f9be6-104b-4534-9caf-9534dc796a7a.jpeg, 0000001348/55b265a5fec25268a5d0e402525543c0d186c86d.jpeg
https://content.gnoss.ws/carq//imagenes/Documentos/imgsem/a9/a9b8/a9b875b5-4568-471b-b552-83c2caf0972f/c8e748b6-76a6-4643-abe2-190c08d7f790.jpeg, 0000001348/5954571cc6f3293a09b23abeeb574370be1d7a94.jpeg
https://content.gnoss.ws/carq//imagenes/Documentos/imgsem/a9/a9b8/a9b875b5-4568-471b-b552-83c2caf0972f/d4bc7986-d170-4a68-ac04-ddd3b09622ce.jpeg, 0000001348/ad012c59abd6cb510b5edb6f9d3d1fcdb6bbd11c.jpeg
https://content.gnoss.ws/carq//imagenes/Documentos/imgsem/a9/a9b8/a9b875b5-4568-471b-b552-83c2caf0972f/c11fd0b7-bc73-448f-9724-7ff8522b8c7e.jpeg, 0000001348/d6abc1e19f3cac0e56ce65f33a8d8429a66a7223.jpeg
https://content.gnoss.ws/carq//imagenes/Documentos/imgsem/a9/a9b8/a9b875b5-4568-471b-b552-83c2caf0972f/5215fb10-9eac-47d8-9693-e8fb49c01e26.jpeg, 0000001348/fa9cadf49c2a952c945562352e846b7c8b7c169f.jpeg



