Loading...
La iglesia de la Ascensión del Señor es fruto del concurso convocado por el Arzobispado de Sevilla en 2010. Uno de los elementos principales de nuestro diseño es la portada de acceso, que invita a entrar al complejo parroquial y crea un espacio de acogida que se materializa en el gran patio central existente. Llevamos la iglesia hasta la calle, invitamos a acceder libremente al jardín que se adivina desde el exterior.
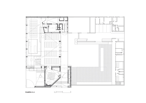
Esta iglesia de 1.000 m2 se sitúa en una parcela de 1.150 m2, anexa al complejo parroquial preexistente. La planta de la iglesia se divide en tres zonas de culto: el cuerpo principal de la iglesia; pila bautismal; y capilla penitencial y sacristía, que están vinculadas e interrelacionadas, física y visualmente, con tres espacios abiertos de uso mixto, concebidos tanto para el desarrollo de actividades sociales (formación, entretenimiento...) como espirituales, pudiendo ser una extensión de los espacios de culto.
En la elección de los materiales y técnicas constructivas utilizadas en este proyecto hemos optado por implantar criterios de economía y sostenibilidad, siendo un edificio muy sensible a las circunstancias económicas actuales y a las de sus usuarios finales.
General information
Iglesia de la Ascensión del Señor
YEAR
Option to visit
Address
c/ Sendai, 3
41020 Sevilla - Sevilla
Latitude: 37.406275201
Longitude: -5.917301774
Classification
Built area
Awards
Involved architectural firms
Information provided by
AGi architects
-
Planta Iglesia de la Ascensión del Señor, Sevilla - AGi architects -
Esquema, Iglesia de la Ascensión del Señor, Sevill - AGi architects -
©Miguel de Guzmán, vía AGi architects -
©Miguel de Guzmán, vía AGi architects
Location
https://content.gnoss.ws/carq/https://content.gnoss.ws/carq//imagenes/Documentos/imgsem/da/da44/da44347a-14e6-4bc1-bc50-e9090e1a08cb/324f80bf-bf5f-47d6-a1e2-47257a5a52c1.jpg, 0000001484/ACUE2015_25_IGLESIA_Guzman_01.jpg
https://content.gnoss.ws/carq/https://content.gnoss.ws/carq//imagenes/Documentos/imgsem/da/da44/da44347a-14e6-4bc1-bc50-e9090e1a08cb/0a6cb96c-b688-4e34-9155-fcd2c4b53d60.jpg, 0000001484/130905-agi-iglesia-sevilla-024_CLEAN.jpg
https://content.gnoss.ws/carq/https://content.gnoss.ws/carq//imagenes/Documentos/imgsem/da/da44/da44347a-14e6-4bc1-bc50-e9090e1a08cb/369a1a60-5621-40d7-8731-0aef36004c13.jpg, 0000001484/130905-agi-iglesia-sevilla-001.jpg
https://content.gnoss.ws/carq/https://content.gnoss.ws/carq//imagenes/Documentos/imgsem/da/da44/da44347a-14e6-4bc1-bc50-e9090e1a08cb/c60b5087-49c7-4f2c-87bc-302b99d9263c.jpg, 0000001484/130905-agi-iglesia-sevilla-007_CLEAN.jpg
https://content.gnoss.ws/carq/https://content.gnoss.ws/carq//imagenes/Documentos/imgsem/da/da44/da44347a-14e6-4bc1-bc50-e9090e1a08cb/620b3d8f-0916-40b9-a45a-453695705e29.jpg, 0000001484/130905-agi-iglesia-sevilla-012_CLEAN.jpg
https://content.gnoss.ws/carq/https://content.gnoss.ws/carq//imagenes/Documentos/imgsem/da/da44/da44347a-14e6-4bc1-bc50-e9090e1a08cb/2277c723-074a-4c3e-8eee-73040fe83d96.jpg, 0000001484/130905-agi-iglesia-sevilla-014.jpg
https://content.gnoss.ws/carq/https://content.gnoss.ws/carq//imagenes/Documentos/imgsem/da/da44/da44347a-14e6-4bc1-bc50-e9090e1a08cb/ab8fcda3-4f52-474a-b405-f3f17fc48e92.jpg, 0000001484/130905-agi-iglesia-sevilla-017.jpg
https://content.gnoss.ws/carq/https://content.gnoss.ws/carq//imagenes/Documentos/imgsem/da/da44/da44347a-14e6-4bc1-bc50-e9090e1a08cb/009bd5de-4a6b-434f-8718-8307d0479416.jpg, 0000001484/130905-agi-iglesia-sevilla-018_CLEAN.jpg
https://content.gnoss.ws/carq/https://content.gnoss.ws/carq//imagenes/Documentos/imgsem/da/da44/da44347a-14e6-4bc1-bc50-e9090e1a08cb/67451dbf-3e1e-4757-84df-37e64f6ea4f7.jpg, 0000001484/130905-agi-iglesia-sevilla-019_CLEAN.jpg
https://content.gnoss.ws/carq//imagenes/Documentos/imgsem/da/da44/da44347a-14e6-4bc1-bc50-e9090e1a08cb/d29ac64c-7225-4beb-b1fd-99b73f309ee4.jpg, 0000001484/AGi architects_Iglesia de la Ascension_Esquema.jpg
https://content.gnoss.ws/carq//imagenes/Documentos/imgsem/da/da44/da44347a-14e6-4bc1-bc50-e9090e1a08cb/05abe47f-e3a3-4042-97c4-7d7f8ad780ae.jpg, 0000001484/AGi architects_Iglesia_Planta Baja.jpg
https://content.gnoss.ws/carq//imagenes/Documentos/imgsem/da/da44/da44347a-14e6-4bc1-bc50-e9090e1a08cb/a81485b0-3156-407d-a4fa-0c7c16bc9918.jpg, 0000001484/AGi architects_Iglesia_Secciones.jpg





