Loading...
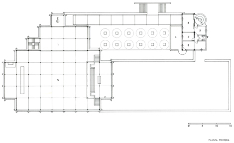
El proyecto, condicionado por la presencia de la autopista y la previsión de superficie para una guardería, desglosa el programa en iglesia, casa rectoral y porche de enlace seguro bajo una línea eléctrica contigua, y delimita un ámbito previo arbolado con pinos como claustro abierto hacia naciente.
La solución al problema estructural de la iglesia se plantea mediante la máxima simplificación de la asamblea; el resultado es un espacio neutro que responde a un planteamiento económico acorde a cada circunstancia, en el cual se integren nártex, baptisterio, presbiterio y capilla penitencial mediante la construcción de elementos modulares autónomos que subdividen el espacio interno en una malla isótropa de 4,2 x 4,2 m definida por esbeltas columnas de acero, a modo de un bosque de esbeltas columnas, que sostienen y descargan una cubierta ligera de elementos troncopiramidales iluminados cenitalmente.
La célula autónoma básica, que no impide una visión suficiente y contiene todos los elementos funcionales necesarios, forma el recinto por la yuxtaposición repetida de 51 módulos, y permite construir o ampliar en fases futuras iglesias de cualquier dimensión con una exacta previsión económica.
General information
Iglesia parroquial de Nuestra Señora de la Fuencisla
YEAR
Option to visit
Address
plza. Angélica Señora, 1
28026 Madrid - Madrid
Latitude: 40.38284462
Longitude: -3.698125503
Classification
Built area
Involved architects
Information provided by
Fundación DOCOMOMO Ibérico
Archivo `José María García de Paredes´, MNCARS. Documentación Ángela García de Paredes
-
Situación - Archivo JMGP -
Planta primera - Archivo JMGP -
Exterior - Alberto Schommer -
Fondo documental DOCOMOMO Ibérico/© José Hevia
Location
https://content.gnoss.ws/carq/https://content.gnoss.ws/carq//imagenes/Documentos/imgsem/35/35fc/35fcaba3-0b67-4175-90a3-6adf6a109357/74aee3ad-a2c6-4f54-baee-291f4a8cec41.jpg, 0000011642/fuencisla.jpg
https://content.gnoss.ws/carq/https://content.gnoss.ws/carq//imagenes/Documentos/imgsem/35/35fc/35fcaba3-0b67-4175-90a3-6adf6a109357/32d467a1-eef9-467b-9efa-e638ea0f9221.jpg, 0000011642/iglesia parroquial fuencisla.jpg
https://content.gnoss.ws/carq/https://content.gnoss.ws/carq//imagenes/Documentos/imgsem/35/35fc/35fcaba3-0b67-4175-90a3-6adf6a109357/1db0c412-0c89-4755-a018-d0abac015a86.jpg, 0000011642/20 Sch_interior 4.jpg
https://content.gnoss.ws/carq/https://content.gnoss.ws/carq//imagenes/Documentos/imgsem/35/35fc/35fcaba3-0b67-4175-90a3-6adf6a109357/94017f6f-49e6-40e3-8527-a47489bc5b22.jpg, 0000011642/20 exterior 2.jpg
https://content.gnoss.ws/carq/https://content.gnoss.ws/carq//imagenes/Documentos/imgsem/35/35fc/35fcaba3-0b67-4175-90a3-6adf6a109357/75cdedb9-5d4c-4b4e-9afd-1d775a3a09bb.jpg, 0000011642/20 Sch_exterior 1-a.jpg
https://content.gnoss.ws/carq/https://content.gnoss.ws/carq//imagenes/Documentos/imgsem/35/35fc/35fcaba3-0b67-4175-90a3-6adf6a109357/90f78ba9-fba9-4d47-95f3-26d989662b73.jpg, 0000011642/CF009033 bn.jpg
https://content.gnoss.ws/carq/https://content.gnoss.ws/carq//imagenes/Documentos/imgsem/35/35fc/35fcaba3-0b67-4175-90a3-6adf6a109357/d9949cc9-7986-4bc5-aef0-d0b63d58fa18.jpg, 0000011642/20 Sch_interior 7.jpg
https://content.gnoss.ws/carq/https://content.gnoss.ws/carq//imagenes/Documentos/imgsem/35/35fc/35fcaba3-0b67-4175-90a3-6adf6a109357/830af919-2500-4797-a92a-09e87253943a.jpg, 0000011642/CF009044.jpg
https://content.gnoss.ws/carq//imagenes/Documentos/imgsem/35/35fc/35fcaba3-0b67-4175-90a3-6adf6a109357/0048eba2-b505-49fd-85bf-2997f3c664f1.jpg, 0000011642/20 planta1.jpg
https://content.gnoss.ws/carq//imagenes/Documentos/imgsem/35/35fc/35fcaba3-0b67-4175-90a3-6adf6a109357/6e7c9efa-cd19-46c0-a3a9-14da0643b570.jpg, 0000011642/20 planta sit.jpg
https://content.gnoss.ws/carq//imagenes/Documentos/imgsem/35/35fc/35fcaba3-0b67-4175-90a3-6adf6a109357/c289fe8d-f1ee-48cc-9dff-cf9797ebab64.jpg, 0000011642/20 planta0.jpg





