Loading...
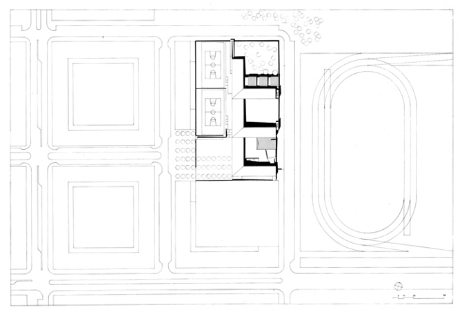
Situado en el extremo de un barrio de nueva creación de disposición y arquitectura muy regular, el nuevo complejo escolar se organiza en torno a tres patios que se adaptan al terreno y tienen diferentes funciones y carácter.
El primero constituye la entrada con el acceso por debajo de la estructura puente de la biblioteca. A su entorno se abren las piezas más públicas: sala de actos, biblioteca y gimnasio. El segundo es el patio central, tranquilo y cerrado. El último, más abierto, acoge el paisaje y la vegetación del entorno.
El patio de juegos y el de entrada separan el amplio y cercano conjunto de viviendas, de modo que el pasillo principal se sitúa en fachada, detrás de un muro de ladrillo con pequeñas aberturas.
Las paredes que son ortogonales, se tratan con plancha de hierro galvanizada, colocadas horizontalmente, para conseguir el efecto de ligereza.
General information
Instituto Mollet del Vallès
YEAR
Option to visit
Address
P.º Cesc Bas, 3
08100 Mollet del Valles - Barcelona
Latitude: 41.54822399
Longitude: 2.2105370926
Classification
Built area
Collaborators
Involved architectural firms
Information provided by
Bach-Mora Arquitectes
VEGAP
Location
https://content.gnoss.ws/carq//imagenes/Documentos/imgsem/e7/e7f6/e7f63df3-3d72-4e06-ae11-d443613e098a/bafe7f78-2683-4031-a347-4e2363e73cdd.jpg, 0000033672/A0651_BACH-MORA Arquitectes (1).jpg
https://content.gnoss.ws/carq//imagenes/Documentos/imgsem/e7/e7f6/e7f63df3-3d72-4e06-ae11-d443613e098a/60841ec4-ada7-4fa9-b2db-8514f69024af.jpg, 0000033672/A0651_BACH-MORA Arquitectes (2).jpg
https://content.gnoss.ws/carq//imagenes/Documentos/imgsem/e7/e7f6/e7f63df3-3d72-4e06-ae11-d443613e098a/83915baa-ae82-40a9-b7a0-ef1b4d009624.jpg, 0000033672/A0651_BACH-MORA Arquitectes (3).jpg



