Loading...
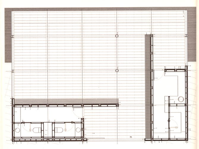
El concurso consistía en el diseño de un muelle para el desembarque de viajeros de cercanías y, sobre él, una edificación que albergase un quiosco y sombra de espera. Una oportunidad espléndida para explorar los dos extremos de la construcción más ligada a la mar: la ejecución del dique y su plataforma con técnicas de ingeniería civil y la de una pequeña construcción realizada con la calidad material, el ajuste y la precisión propias de la mejor arquitectura naval.
Se construye primero con grandes masas de hormigón y piedra, con movimientos de tierras, con fondeos submarinos. Se construye después en seco, como si de un barco se tratara, con madera y metal, ensamblando, encajando, atornillando. Se propone un muelle asimétrico que mira en una dirección concreta y permite que las embarcaciones no obstruyan con su presencia las vistas desde la edificación.
General information
Muelle y edificio de servicios en el Puerto de Alicante
YEAR
Option to visit
Address
P.º Mártires de la Libertad,
03001 AlacantAlicante - Alicante
Latitude: 38.34177574
Longitude: -0.485116138
Classification
Built area
Involved architects
Collaborators
Involved architectural firms
Information provided by
VI BEAU
Website links
-
Muelle y Edificio de Servicios en el Puerto de Alicante - VI BEAU -
Muelle y Edificio de Servicios en el Puerto de Alicante - VI BEAU
Location
https://content.gnoss.ws/carq/https://content.gnoss.ws/carq//imagenes/Documentos/imgsem/b4/b4c1/b4c10251-d718-48fe-9828-358cbb657266/ee8c0c67-11a0-4b62-a52e-625c245542d8.jpg, 0000002965/muelle alicante 1.jpg
https://content.gnoss.ws/carq/https://content.gnoss.ws/carq//imagenes/Documentos/imgsem/b4/b4c1/b4c10251-d718-48fe-9828-358cbb657266/d0f242c1-a3a5-4f22-9e82-776c5858e78c.jpg, 0000002965/muelle alicante 2.jpg
https://content.gnoss.ws/carq/https://content.gnoss.ws/carq//imagenes/Documentos/imgsem/b4/b4c1/b4c10251-d718-48fe-9828-358cbb657266/16b2c175-f459-4815-9781-e401fab6322b.jpg, 0000002965/EDIFICIO SERVICIOS PUERTO DE ALICANTE f1.jpg
https://content.gnoss.ws/carq//imagenes/Documentos/imgsem/b4/b4c1/b4c10251-d718-48fe-9828-358cbb657266/f159828c-3d57-42e2-a03a-008cddf6b7f4.jpg, 0000002965/muelle alicante 3.jpg




