Loading...
La creación en 1966 del Museo de Arte Abstracto Español en las Casas Colgadas del siglo XIV en Cuenca es un capítulo fascinante y único de nuestra historia cultural. La fe pionera de Fernando Zóbel en los artistas abstractos se materializó en un espacio arquitectónico insólito, que pronto tuvo un enorme eco internacional. El joven museo –iniciativa personal de un artista– creó un espacio de libertad independiente del régimen, reafirmó a una generación de artistas, preparó a las más jóvenes y creó todo un nuevo público en un país que no contaría con museos de arte contemporáneo hasta después de su transición democrática, más de veinte años después de aquella aventura única y original.
Caracterizado por un énfasis sin precedentes en el arte no figurativo y por su extraordinaria ubicación en un conjunto de edificios del siglo xv que «cuelgan» a doscientos metros de altitud sobre la hoz del río Huécar en la ciudad antigua de Cuenca, el Museo de Arte Abstracto Español, fundado por el pintor Fernando Zóbel (1924-1984), abrió sus puertas el 1 de julio de 1966. En enero del año siguiente, Alfred H. Barr, fundador y primer director del MoMA, lo visitó y lo describió como «el pequeño museo más bello del mundo»
El museo se inauguró en julio de 1966. Buena parte de las Casas Colgadas, que entre los siglos xv y xx habían conocido usos domésticos y eclesiásticos (una de las estancias, cuyo excepcional artesonado aún se conserva, sirvió como capilla episcopal), son desde esa fecha un museo de arte contemporáneo singular, fundado por Zóbel con la ayuda, sobre todo, de Gerardo Rueda y Gustavo Torner.
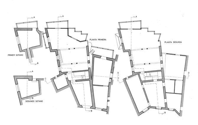
Desde su inauguración, el museo ha experimentado diversas reformas arquitectónicas que han respetado su esencia histórica mientras modernizaban sus instalaciones, respetando la morfología de las Casas Colgadas, sus restos y su arquitectura vernácula, equilibrándola con las exigencias de un espacio museístico dedicado a exhibir obras de arte abstracto español.
La primera intervención se realizó entre 1962 y 1966, a cargo Francisco León Meler, con la participación de Fernando Barja y la supervisión, además de la de Zóbel, del artista conquense Gustavo Torner. En 1978, bajo la dirección de Barja, quien ya había participado en la reforma inicial del edificio, el museo se amplió, lo que permitió una mejor distribución del espacio expositivo y una mayor capacidad para exhibir obras de arte.
En 1980, cuatro años antes de su inesperada y prematura muerte, Zóbel decidió donar la colección del museo, su archivo, sus cuadernos de dibujo, sus diarios y su biblioteca a la Fundación Juan March, que ha continuado la misión del museo enriqueciendo su colección y a través de un programa permanente de exposiciones y actividades educativas desde 1981.
La Fundación Juan March, con motivo del 50 aniversario del museo en 2016, emprendió un último proyecto de reforma a cargo de Juan Pablo Rodríguez Frade, con el objetivo de situar un edificio del siglo XV que alberga obras del siglo XX tecnológicamente en el siglo XXI y recuperar para su uso público la práctica totalidad de los espacios del museo. Culminado en 2023, el proyecto incluyó la instalación de un sistema de climatización moderno y discreto, esencial para la conservación de las obras de arte, con equipos de tecnología puntera cuya implantación mantiene inalterado el valor histórico y patrimonial del edificio, entretanto declarado Bien de Interés Cultural.
Además de la climatización, la reforma mejoró la accesibilidad del museo y amplió el espacio expositivo con una sala adicional del antiguo Mesón de las Casas Colgadas, cedida por el Ayuntamiento de Cuenca. También se habilitó un espacio multiusos que sirve como auditorio, biblioteca, archivo y centro de documentación.
Desde 1966, las obras de la colección, cuidadosamente elegidas desde la exigencia estética, se exponen como individualidades, en unos espacios que llamarían la atención de todos sus visitantes en cuanto el nuevo museo abrió sus puertas en la pequeña ciudad de provincias, momento a partir del cual Cuenca empezó a mostrar rasgos modernos muy acusados, en contraste con su situación periférica, su tamaño y su comunicación con el resto del país y del mundo.
Lo que asombra a los muchos visitantes del museo es la mixtura lograda, la «escala perfecta» (empleando una expresión del artista Antonio Lorenzo) entre la contemporaneidad de las obras y la tradición histórica de su continente, debida al talento con el que los artistas consiguieron casar magistralmente un edificio que estaba siendo restaurado con pinturas y esculturas abstractas e informalistas de Saura, Tàpies, Chillida, Oteiza, Basterretxea, Sempere, Rivera, Guerrero, Muñoz, Millares, Canogar y tantos otros. Ha escrito Gustavo Torner: “como los espacios eran tan singulares y algunas piezas de la colección también, sea por tema, tamaño o expresividad, cada una encontró su situación enseguida. Fernando Zobel, desde el principio se reservó dos años para el posicionamiento de las obras, la parte más creadora. Y había que contar que cada una de las obras, principalmente cuadros, tenían que hablar, dialogar, comunicarse entre sí, y procurar no enfermar o morir como ocurre en tantos museos y exposiciones (Véase Gustavo Torner, «Año 2020. Museo de Arte Abstracto Español en Cuenca: su gestación» en Escritos. Madrid: Real Academia de Bellas Artes de San Fernando, 2021, p. 30).
Zóbel, Torner y Rueda proyectaron un museo singular: a la adquisición de las obras, enormemente meditada, siguió su presentación en un espacio excepcional, en el que las piezas fueron dispuestas en un ejercicio impregnado de las modernas museografías americana e italiana que tenía en cuenta las peculiaridades de la edificación medieval. El interior del museo es una especie de white cube inserto en un lugar arcaico y laberíntico. Junto a la blancura de sus paredes y techos, típica de la neutralidad del museo moderno, pero también de la sencilla limpieza de la arquitectura vernácula, el museo presenta detalles llenos de intención, mezcla de sofisticación y austera contención. El museo está lleno de lo que Michael Caldwell, en su estudio, entre otros, de los interiores de Carlo Scarpa, ha llamado strange details (Véase Michael Caldwell, Strange Details (Writing Architecture). Cambrigde, MA: The MIT Press, 2007).
Hoy, el museo continúa siendo un espacio dinámico que combina la conservación del patrimonio con la innovación arquitectónica, ofreciendo al público una experiencia única del arte en un entorno histórico singular.Madrid, junio de 2025. Manuel Fontán del Junco, Director del Museo de Arte Abstracto Español, Fundación Juan March, Cuenca.
General information
Museo de Arte Abstracto español
YEAR
Address
C/ Canónigos, 3
160001 Cuenca - Cuenca -Cuenca
Latitude: 40.077788894
Longitude: -2.12858002
Classification
Information provided by
Manuel Fontán del Junco, Director del Museo de Arte Abstracto Español, Fundación Juan March, Cuenca.
Location
Itineraries
https://content.gnoss.ws/carq/https://content.gnoss.ws/carq//imagenes/Documentos/imgsem/20/201a/201a7901-909a-4fe2-85f3-ec492f8f3f9d/57bb2e23-d47c-4c67-9f4f-d659c38091f3.jpg, 0000105015/Entrada al museo, 1966. Foto Jaime Blassi..jpg
https://content.gnoss.ws/carq/https://content.gnoss.ws/carq//imagenes/Documentos/imgsem/20/201a/201a7901-909a-4fe2-85f3-ec492f8f3f9d/db905aba-4b59-4ab5-bab0-8a7adb0e7000.png, 0000105015/Sala del museo.png
https://content.gnoss.ws/carq/https://content.gnoss.ws/carq//imagenes/Documentos/imgsem/20/201a/201a7901-909a-4fe2-85f3-ec492f8f3f9d/4b5fef48-331a-45d1-9d6e-3a5573304568.png, 0000105015/Tramo de escalera.png
https://content.gnoss.ws/carq//imagenes/Documentos/imgsem/20/201a/201a7901-909a-4fe2-85f3-ec492f8f3f9d/730af649-d805-493a-aec1-f8ee8dc27496.jpg, 0000105015/Alzado de las casas Colgadas.jpg
https://content.gnoss.ws/carq//imagenes/Documentos/imgsem/20/201a/201a7901-909a-4fe2-85f3-ec492f8f3f9d/ccd19ae1-2b70-40e9-a081-0807e417a8e5.jpg, 0000105015/Plantas 1962.jpg
https://content.gnoss.ws/carq//imagenes/Documentos/imgsem/20/201a/201a7901-909a-4fe2-85f3-ec492f8f3f9d/16fa784e-b3b5-4c87-949c-2386b595c3f9.jpg, 0000105015/Planta.jpg
https://content.gnoss.ws/carq//imagenes/Documentos/imgsem/20/201a/201a7901-909a-4fe2-85f3-ec492f8f3f9d/75babab9-9f91-47cc-abb1-1b4ade69da0d.jpg, 0000105015/Croquis 2.jpg
https://content.gnoss.ws/carq//imagenes/Documentos/imgsem/20/201a/201a7901-909a-4fe2-85f3-ec492f8f3f9d/39af74c3-8d28-42d1-9c14-856f1412439d.jpg, 0000105015/Cartel.1973.jpg
https://content.gnoss.ws/carq//imagenes/Documentos/imgsem/20/201a/201a7901-909a-4fe2-85f3-ec492f8f3f9d/267b3800-318e-40d5-9e95-13a8adbbafae.jpg, 0000105015/Croquis.jpg



