Loading...
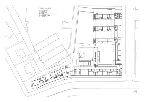
Situado en un sector urbano diverso en su configuración y edificaciones, el nuevo seminario se articula en torno a un amplio patio situado al oeste de los terrenos asignados para su construcción y que es presidido por la capilla. El lugar que simboliza a la religión y estudios que en él se imparten.
Hacia el sur de este patio central se desarrolla el área de residencia en tres alas de edificación paralelas que, entrelazadas por un cuerpo bajo de servicios, alcanzan las siete plantas. Las plantas inferiores ocupadas por espacios de la comunidad, las superiores por las habitaciones de los seminaristas, y entre ambas una planta libre y aterrazada, que separa lo habitado de lo docente, formaliza un deambulatorio desde el que se ofrecen vistas de la Vega del Guadalquivir.
Hacia el norte, las tres plantas del área académica construyen la fachada sobre la nueva calle Cardenal Bueno Monreal. Un área que al alcanzar la avenida de Las Palmeras se presenta envuelta por un pequeño jardín, al igual que lo hacen las casas y villas que se apoyan en esta singular vía de la ciudad.
General information
Nuevo seminario en Sevilla
YEAR
Option to visit
Address
c/ cardenal Bueno Monreal, 43
41012 Sevilla - Sevilla
Latitude: 37.366828923
Longitude: -5.988619029
Classification
Construction system
Muros pantallas y forjados reticulares de hormigón armado. Lienzos de fachada ventilada revestidos de piedra de Travertino. Particiones de fábricas de ladrillo y paneles laminados según casos. Revestimientos interiores de madera y piedra natural
Built area
Involved architects
Collaborators
Nicolás Carbajal Ballell (Arquitecto Colaboradores)
Enrique Machuca Tortajada (Cálculo estructural)
Rodrigo Carbajal Ballell (Arquitecto Colaboradores)
Juan Benjumea Pino (Cálculo estructural)
Involved architectural firms
Information provided by
EUMies Award
Estudio Carbajal
Website links
-
EUMies Award -
EUMies Award
Location
Itineraries
https://content.gnoss.ws/carq/https://content.gnoss.ws/carq//imagenes/Documentos/imgsem/ca/ca38/ca38736a-8b0e-4b84-b3be-75e098059812/0ba245b6-19ae-4e72-8b18-2f16a7d4e065.jpg, 0000003638/1.jpg
https://content.gnoss.ws/carq/https://content.gnoss.ws/carq//imagenes/Documentos/imgsem/ca/ca38/ca38736a-8b0e-4b84-b3be-75e098059812/f90f0a56-3306-4bbe-a888-d5f94f1fc0cd.jpg, 0000003638/2.jpg
https://content.gnoss.ws/carq/https://content.gnoss.ws/carq//imagenes/Documentos/imgsem/ca/ca38/ca38736a-8b0e-4b84-b3be-75e098059812/d6c7bc58-0dd5-4b6c-bb24-8d48a341649e.jpg, 0000003638/Seminario Diocesano de Sevilla - J.A. Carbajal.jpg
https://content.gnoss.ws/carq/https://content.gnoss.ws/carq//imagenes/Documentos/imgsem/ca/ca38/ca38736a-8b0e-4b84-b3be-75e098059812/3ebd3540-87bc-4c78-a32e-2760610bea8a.jpg, 0000003638/1585-10427.jpg
https://content.gnoss.ws/carq/https://content.gnoss.ws/carq//imagenes/Documentos/imgsem/ca/ca38/ca38736a-8b0e-4b84-b3be-75e098059812/e0989072-2ef0-432f-963a-7b73cfce6182.jpg, 0000003638/1585-10428.jpg
https://content.gnoss.ws/carq//imagenes/Documentos/imgsem/ca/ca38/ca38736a-8b0e-4b84-b3be-75e098059812/4256f504-d061-4767-99e4-ec6ecdf797c0.jpg, 0000003638/Croquis Seminario Diocesano de Sevilla.jpg
https://content.gnoss.ws/carq//imagenes/Documentos/imgsem/ca/ca38/ca38736a-8b0e-4b84-b3be-75e098059812/b8aae800-de88-4fe7-8bca-4951297c496c.jpg, 0000003638/1585 - New Seminary in Sevilla1585 planta.jpg
https://content.gnoss.ws/carq//imagenes/Documentos/imgsem/ca/ca38/ca38736a-8b0e-4b84-b3be-75e098059812/a50a5aa6-0a1d-433a-b3f2-01a8b7b874b9.jpg, 0000003638/1585 - New Seminary in Sevilla1585 seccio.jpg




