Loading...
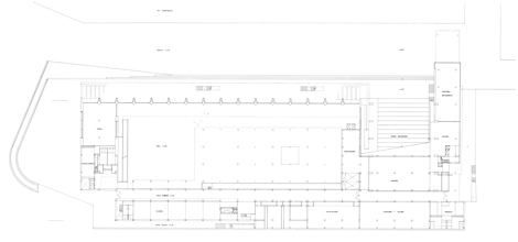
El Pabellón de la Navegación se sitúa al borde del río Guadalquivir en el sector Sur del recinto de la Exposición, junto al pantalán que acota el puerto fluvial, entre los puentes de Chapina y de la Cartuja. Con una superficie construida algo superior a los 15.000 m2, se asienta sobre una plataforma situada a la cota del muelle, ofreciendo su fachada principal al río, a un tiempo que permite ser registrado desde la cota más elevada, en torno a 5 m, de la Plaza de los Descubrimientos.
El pabellón, que habría de constituirse en el futuro Museo Marítimo de la ciudad, se propone como una gran pieza neutra y capaz pero lo suficientemente precisa como para obviar el carácter de contenedor sin definición arquitectónica. Los edificios que se sitúan inmediatamente tras el pabellón van ganando en altura, desde el de los Descubrimientos a la mole circular de Torre-Triana. La cubierta metálica curvada, que se constituye en fachada principal del pabellón, ofreciendo su convexidad a la ciudad histórica y en la que indudablemente se advierten resonancias de viejas imágenes de hangares y tinglados portuarios, se propone como respuesta al planteamiento escalonado de la perspectiva hacia el río, buscando resolver adecuadamente el tránsito del edificio con su contexto.
En la misma parcela se proyecta la construcción de un restaurante cuya ubicación permite al pabellón crear su propio ámbito, articulándose mediante una gran rampa escalonada cubierta, que a un tiempo que garantiza el planteamiento unitario de ambas construcciones se configura como puerta al río, también puerta a naciente, permitiendo mantener una relación visual directa de la plaza con el muelle, los barcos, el río y la ciudad.
Las relaciones de analogía con el mundo de la navegación habrán de producirse, más allá de las formas, en la utilización de un material tradicional como es la madera. Grandes vigas curvadas de madera laminada, salvando una luz superior a los 40 m, dibujarán la sección estructural del pabellón.
Por último, el proyecto propone la construcción de una torre-mirador al final del pantalán que se adentra en el río como contrapunto a las grandes superficies horizontales del pabellón. Una torre, de ida y vuelta, que se desdobla en dos piezas de distinta configuración formal: una sobre el pantalán, metálica y ligera, que adopta la geometría de un prisma recto de base triangular, que contiene las escaleras de descenso, y otra de hormigón blanco, que en forma de quilla hunde sus cimientos en el río conteniendo el sistema de rampas y ascensores. Su posición geográfica la configura como un nuevo hito en el paisaje de la ribera, marcando desde el río la entrada al recinto. Su altura, en torno a los 60 m, le conferirá la condición de un privilegiado mirador sobre el recinto de la Exposición Universal y la ciudad.
General information
Pabellón de la Navegación en la Expo 92
YEAR
Option to visit
Address
c.º de los Descubrimientos, 2
41092 Sevilla - Sevilla
Latitude: 37.394328703
Longitude: -6.008113294
Classification
Built area
Involved architects
Involved architectural firms
Information provided by
Estudio Vázquez Consuegra
Website links
-
Estudio Vázquez Consuegra -
Estudio Vázquez Consuegra -
Duccio Malagamba
Location
https://content.gnoss.ws/carq/https://content.gnoss.ws/carq//imagenes/Documentos/imgsem/de/de62/de626228-2424-4fb1-8a56-4d33aee1d748/16a5d259-e3f3-4e65-a0b8-d69a00903bd4.jpg, 0000004760/Expo 92.jpg
https://content.gnoss.ws/carq/https://content.gnoss.ws/carq//imagenes/Documentos/imgsem/de/de62/de626228-2424-4fb1-8a56-4d33aee1d748/8c688f58-24f1-445a-b878-96783736c2c8.jpg, 0000004760/dm.jpg
https://content.gnoss.ws/carq/https://content.gnoss.ws/carq//imagenes/Documentos/imgsem/de/de62/de626228-2424-4fb1-8a56-4d33aee1d748/ec8bc6d5-f32a-4588-8863-acd40aa43226.jpg, 0000004760/AE_01.jpg
https://content.gnoss.ws/carq/https://content.gnoss.ws/carq//imagenes/Documentos/imgsem/de/de62/de626228-2424-4fb1-8a56-4d33aee1d748/c0d51497-7559-414e-b654-d6e89d0667ec.jpg, 0000004760/DM_02.jpg
https://content.gnoss.ws/carq/https://content.gnoss.ws/carq//imagenes/Documentos/imgsem/de/de62/de626228-2424-4fb1-8a56-4d33aee1d748/a0c03ed1-d736-460d-bd2a-78e04175d1da.jpg, 0000004760/DM_03.jpg
https://content.gnoss.ws/carq/https://content.gnoss.ws/carq//imagenes/Documentos/imgsem/de/de62/de626228-2424-4fb1-8a56-4d33aee1d748/21306606-6335-4b1a-b156-5b36d5a7ef46.jpg, 0000004760/HS_01.jpg
https://content.gnoss.ws/carq/https://content.gnoss.ws/carq//imagenes/Documentos/imgsem/de/de62/de626228-2424-4fb1-8a56-4d33aee1d748/85db8c32-542d-493f-a283-b0bf84450c4c.jpg, 0000004760/RMdS_02.jpg
https://content.gnoss.ws/carq/https://content.gnoss.ws/carq//imagenes/Documentos/imgsem/de/de62/de626228-2424-4fb1-8a56-4d33aee1d748/d4d40f9c-29c4-47c1-810a-a17ae070481b.jpg, 0000004760/RMdS_03.jpg
https://content.gnoss.ws/carq/https://content.gnoss.ws/carq//imagenes/Documentos/imgsem/de/de62/de626228-2424-4fb1-8a56-4d33aee1d748/29b5a55a-ba3f-4d4b-8274-d38ab3efa903.jpg, 0000004760/RMdS_05.jpg
https://content.gnoss.ws/carq/https://content.gnoss.ws/carq//imagenes/Documentos/imgsem/de/de62/de626228-2424-4fb1-8a56-4d33aee1d748/8ffbab86-1ffd-4139-a684-682c8f523e7f.jpg, 0000004760/RMdS_01.jpg
https://content.gnoss.ws/carq/https://content.gnoss.ws/carq//imagenes/Documentos/imgsem/de/de62/de626228-2424-4fb1-8a56-4d33aee1d748/8b132e9f-cea7-482a-99a7-8ee0061a3cbb.jpg, 0000004760/HS_02.jpg
https://content.gnoss.ws/carq/https://content.gnoss.ws/carq//imagenes/Documentos/imgsem/de/de62/de626228-2424-4fb1-8a56-4d33aee1d748/3d7b1c4a-76f6-484e-b25b-15e5f35ede2c.jpg, 0000004760/HS_03.jpg
https://content.gnoss.ws/carq//imagenes/Documentos/imgsem/de/de62/de626228-2424-4fb1-8a56-4d33aee1d748/206559cf-8343-48c7-bfe2-53e505035bd6.jpg, 0000004760/Situacion.jpg
https://content.gnoss.ws/carq//imagenes/Documentos/imgsem/de/de62/de626228-2424-4fb1-8a56-4d33aee1d748/e19f49c6-54af-4386-a164-83bf0c48f652.jpg, 0000004760/PN_planta+2.70.jpg
https://content.gnoss.ws/carq//imagenes/Documentos/imgsem/de/de62/de626228-2424-4fb1-8a56-4d33aee1d748/96f1d1aa-4ea8-4572-a791-f2c72105b545.jpg, 0000004760/PN_planta+7.20.jpg
https://content.gnoss.ws/carq//imagenes/Documentos/imgsem/de/de62/de626228-2424-4fb1-8a56-4d33aee1d748/9f25f645-57ba-49ca-b630-401671674298.jpg, 0000004760/nivel 11.20.jpg
https://content.gnoss.ws/carq//imagenes/Documentos/imgsem/de/de62/de626228-2424-4fb1-8a56-4d33aee1d748/1e64a1d5-0485-465b-9bd3-2ca56a95b99d.jpg, 0000004760/PN_plantaCUB.jpg
https://content.gnoss.ws/carq//imagenes/Documentos/imgsem/de/de62/de626228-2424-4fb1-8a56-4d33aee1d748/2f9d810c-1032-48f6-9719-82edc772c6de.jpg, 0000004760/Pabellon_Perspectiva.jpg
https://content.gnoss.ws/carq//imagenes/Documentos/imgsem/de/de62/de626228-2424-4fb1-8a56-4d33aee1d748/7de834e7-928e-40ea-9be6-e7742da50b8e.jpg, 0000004760/Pabellon_Perspectiva2.jpg
https://content.gnoss.ws/carq//imagenes/Documentos/imgsem/de/de62/de626228-2424-4fb1-8a56-4d33aee1d748/ed8cf32c-e712-4deb-b405-2fff8291e6fa.jpg, 0000004760/PN_alzado O-E.jpg
https://content.gnoss.ws/carq//imagenes/Documentos/imgsem/de/de62/de626228-2424-4fb1-8a56-4d33aee1d748/04244469-bedc-46a4-8561-8a86899df7c8.jpg, 0000004760/CROQUIS2.jpg
https://content.gnoss.ws/carq//imagenes/Documentos/imgsem/de/de62/de626228-2424-4fb1-8a56-4d33aee1d748/2c7dbae3-6d80-48b4-b23c-46f7c5bb5d03.jpg, 0000004760/sec trans expos C.jpg
https://content.gnoss.ws/carq//imagenes/Documentos/imgsem/de/de62/de626228-2424-4fb1-8a56-4d33aee1d748/94fb988d-165f-4cdf-93f1-6832cd7b060d.jpg, 0000004760/sec trans rampa B.jpg
https://content.gnoss.ws/carq//imagenes/Documentos/imgsem/de/de62/de626228-2424-4fb1-8a56-4d33aee1d748/0e7555a4-e9de-4042-9bd3-27ba4a441d9f.jpg, 0000004760/sec trans norte D.jpg
https://content.gnoss.ws/carq//imagenes/Documentos/imgsem/de/de62/de626228-2424-4fb1-8a56-4d33aee1d748/25025254-d3a2-4066-81b5-21892056b65f.jpg, 0000004760/sec trans sur A.jpg
https://content.gnoss.ws/carq//imagenes/Documentos/imgsem/de/de62/de626228-2424-4fb1-8a56-4d33aee1d748/d409fba3-c847-4017-b7e0-9f8e05826a60.jpg, 0000004760/PNT_plantas torre +0-2.jpg
https://content.gnoss.ws/carq//imagenes/Documentos/imgsem/de/de62/de626228-2424-4fb1-8a56-4d33aee1d748/2bfbecf0-3570-4b0b-823e-9001bfad95a6.jpg, 0000004760/Seccion torre.jpg




