Loading...
Se plantea la construcción para la Comunidad Valenciana de un centro que dé cobijo a modo de semillero a un conjunto de nuevas empresas de diversos sectores, innovadoras tecnológicamente.
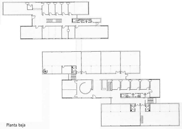
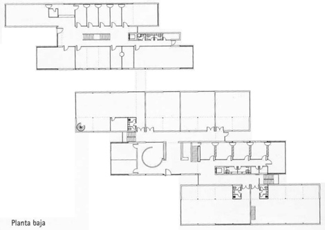
El proyecto explora las relaciones entre el espacio interior y exterior, la forma de recorrer el edificio como soporte a un programa heterogéneo en el que las diferentes piezas, pequeñas naves semiindustriales, laboratorios, despachos, dependencias institucionales y servicios, quedan cosidos en un continuo construido de las fachadas, concebidas como un todo abstracto en el que la construcción de las diferentes membranas constituye el mayor esfuerzo, convirtiéndose el conjunto de testeros en la expresión formal del edificio. Cada testero viene reforzado interiormente por un largo contenedor de programa, y es precisamente en el cosido de todos ellos donde aparece la sensación espacial, el juego de la luz frontal y cenital, la ambigüedad de la situación respecto al exterior y la relación con el paisaje.
De esta forma, el escalonado de los diversos edificios adquiere rotundidad y fuerza en su implantación urbana en el cruce entre la avenida que conduce al Grao y la futura circunvalación de Castellón. En su geometría asimétrica, los edificios generan un delante, que recoge los accesos principales y el porqué que los presenta a la ciudad, y un detrás, que organiza los accesos secundarios, los aparcamientos y las zonas de descarga. Ambos pavimentos, césped en el anterior y asfalto en el posterior, se conciben como alfombras continuas hasta su entrega con los edificios.
General information
Parque tecnológico IMPIVA
YEAR
Option to visit
Address
c/ dels Ginjols, 1
12003 Castello de la Plana - Castelló
Latitude: 39.983105101
Longitude: -0.024397373
Classification
Built area
Awards
Information provided by
OAB - Office of Architecture in Barcelona
-
Carlos Bento Company -
Lluís Casals -
EUMies Award
Location
Itineraries
https://content.gnoss.ws/carq/https://content.gnoss.ws/carq//imagenes/Documentos/imgsem/87/87c5/87c576c5-3b0d-4633-9e64-2d7a0c8b8e4e/024fcdbb-d759-46f5-afdf-8b9bbffca91f.jpg, 0000003960/1.jpg
https://content.gnoss.ws/carq/https://content.gnoss.ws/carq//imagenes/Documentos/imgsem/87/87c5/87c576c5-3b0d-4633-9e64-2d7a0c8b8e4e/01015417-6e59-49bb-8154-f9abe3d79564.jpg, 0000003960/ICC08.jpg
https://content.gnoss.ws/carq/https://content.gnoss.ws/carq//imagenes/Documentos/imgsem/87/87c5/87c576c5-3b0d-4633-9e64-2d7a0c8b8e4e/7efd4c9b-9456-4afc-9b65-a19a3fe199ff.jpg, 0000003960/castellon 012.jpg
https://content.gnoss.ws/carq/https://content.gnoss.ws/carq//imagenes/Documentos/imgsem/87/87c5/87c576c5-3b0d-4633-9e64-2d7a0c8b8e4e/2ef7b598-71cc-4ae3-b7ef-8355e0ef9be5.jpg, 0000003960/FER-127_DESAT.jpg
https://content.gnoss.ws/carq//imagenes/Documentos/imgsem/87/87c5/87c576c5-3b0d-4633-9e64-2d7a0c8b8e4e/a791eb9e-ff29-4358-889c-5d4edc65baa8.jpg, 0000003960/087_009.jpg
https://content.gnoss.ws/carq//imagenes/Documentos/imgsem/87/87c5/87c576c5-3b0d-4633-9e64-2d7a0c8b8e4e/2ececb4d-a29f-4c63-8ead-fcb983379ddd.png, 0000003960/19dbc26d1dc08488c4efba023452d04ba858a891.png
https://content.gnoss.ws/carq//imagenes/Documentos/imgsem/87/87c5/87c576c5-3b0d-4633-9e64-2d7a0c8b8e4e/eecb658e-b1f9-4cff-bb51-999ffea6beb4.png, 0000003960/23ac0d492bd782034e1b16ed480ea680d3d0da42.png
https://content.gnoss.ws/carq//imagenes/Documentos/imgsem/87/87c5/87c576c5-3b0d-4633-9e64-2d7a0c8b8e4e/325a376f-435f-42ec-9600-2d5ccd6e1f5e.png, 0000003960/41dff683f1631f2223232dbca91098d94fe8bfb0.png
https://content.gnoss.ws/carq//imagenes/Documentos/imgsem/87/87c5/87c576c5-3b0d-4633-9e64-2d7a0c8b8e4e/c65945cc-4461-47f3-b424-1ff0c1564e27.png, 0000003960/991602da119c466f9442ca542aa9e30a2013ab59.png
https://content.gnoss.ws/carq//imagenes/Documentos/imgsem/87/87c5/87c576c5-3b0d-4633-9e64-2d7a0c8b8e4e/29d68fad-911b-4699-9f09-da01e1d7200e.png, 0000003960/b6c2ff51b877e0939418420bdc0fde00acddedc0.png




