Loading...
El proyecto se realizó sin un lugar definido y debía ser fácilmente adaptable a cualquier emplazamiento. De hecho, se construyeron dos edificios con el mismo proyecto. Puesto que no conocíamos el paisaje gallego en el que se asentaría el edificio, tomamos como referencia la climatología. El edificio debía encajar con facilidad en el ambiente brumoso y húmedo de Galicia.
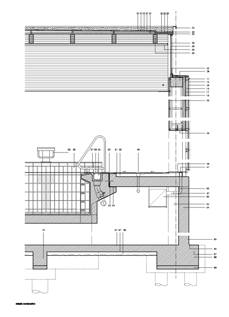
El problema del edificio “sin lugar” se resolvió con una planta de extrema sencillez orientable en cualquier dirección y una fachada neutra de vidrio en la que se podían practicar aberturas en cualquier lugar. La actividad principal se desarrolla en una sola planta. El vestíbulo es un volumen autónomo que permite orientar los accesos en cualquier orientación y aísla el ambiente de baño. Se coloca el aislamiento térmico en el exterior de los muros y se protege mediante placas de vidrio; ello facilita la versatilidad de aberturas de la caja de cristal.
Se trata de un edificio de piel dura y fría, con una volumetría sencilla que muestra, como el hielo, un sugerente juego de transparencias, translúcidos y brillos opacos. Cuando llueve (cosa usual en La Coruña) el edificio “suda”. El agua fría chorrea por las fachadas de vidrio. Sin embargo, el volumen de hielo se convierte en una cálida linterna en las horas de oscuridad. El interior, cálido gracias a las jácenas principales de madera, es un ambiente nítido y amable. Relajante, como las antiguas termas de la antigüedad celta.
General information
Piscinas municipales en Sada
YEAR
Option to visit
Address
ctra. De Samoedo, s/n
15160 Sada - A Coruña
Latitude: 43.346938091
Longitude: -8.258094929
Classification
Construction system
Estructura de madera
Built area
Collaborators
Involved architectural firms
Information provided by
BCQ arquitectura barcelona
Website links
-
Planta-alzado-sección - BCQ arquitectura barcelona -
Acceso - BCQ arquitectura barcelona -
Sección - BCQ arquitectura barcelona
Location
https://content.gnoss.ws/carq/https://content.gnoss.ws/carq//imagenes/Documentos/imgsem/44/44ac/44ac573d-cacd-4bb8-8e57-8d17555f405c/9369134f-cbc3-4c1c-be66-ff17903f8e4d.jpg, 0000020954/w_sada_fac.jpg
https://content.gnoss.ws/carq/https://content.gnoss.ws/carq//imagenes/Documentos/imgsem/44/44ac/44ac573d-cacd-4bb8-8e57-8d17555f405c/140c46b0-b60d-4c67-abc5-8b670f1a491b.jpg, 0000020954/w_sada_fac_det.jpg
https://content.gnoss.ws/carq/https://content.gnoss.ws/carq//imagenes/Documentos/imgsem/44/44ac/44ac573d-cacd-4bb8-8e57-8d17555f405c/be871230-2de3-4072-9ab1-601005ab0fb9.jpg, 0000020954/w_sada_int.jpg
https://content.gnoss.ws/carq/https://content.gnoss.ws/carq//imagenes/Documentos/imgsem/44/44ac/44ac573d-cacd-4bb8-8e57-8d17555f405c/74095d66-a452-491a-bb85-bac9308865b4.jpg, 0000020954/w_sada_acc.jpg
https://content.gnoss.ws/carq//imagenes/Documentos/imgsem/44/44ac/44ac573d-cacd-4bb8-8e57-8d17555f405c/e0a12790-96d8-442e-b47a-ce96e2c1b1e9.jpg, 0000020954/sada_plan_alz_sec.jpg
https://content.gnoss.ws/carq//imagenes/Documentos/imgsem/44/44ac/44ac573d-cacd-4bb8-8e57-8d17555f405c/476bf50b-7507-4795-8b14-cd3c1c2ae2bf.jpg, 0000020954/sada_sec.jpg




