Loading...
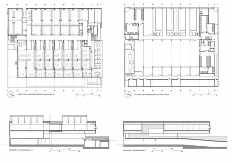
Las plantas de alimentos y producción de formas farmacéuticas plantean procesos de desarrollo paralelos. En este sentido, el desarrollo del proyecto ha consistido en detectar las zonas comunes para aunarlas, ordenar las circulaciones para unificarlas y estructurar el programa funcional en tres niveles de un solo edificio.
Las zonas de circulación principales que articulan las más específicas, se ordenan ya desde la entrar al edificio en el nivel intermedio. Se eliminan dobles circulaciones y se aprovechan los mismos núcleos de comunicación vertical sin mezclar los recorridos.
En el nivel superior la planta se articula mediante un corredor central que da acceso a las dos plantas de producción.
General information
Planta de investigación y producción farmacéutica y alimentaria
YEAR
Option to visit
Address
avda. del Conocimiento, 34
18016 Granada - Granada
Latitude: 37.148836404
Longitude: -3.609169939
Classification
Built area
Involved architects
Information provided by
EUmies Award
VIII BEAU
-
EUmies Award -
EUmies Award -
EUmies Award -
EUmies Award -
VIII BEAU
Location
https://content.gnoss.ws/carq/https://content.gnoss.ws/carq//imagenes/Documentos/imgsem/2f/2f8e/2f8e1d75-ef46-4c1f-8035-eb68a5282d4d/72296850-20e5-4d5b-bc8b-47270519f088.jpg, 0000001699/planta de investigacion 1.jpg
https://content.gnoss.ws/carq/https://content.gnoss.ws/carq//imagenes/Documentos/imgsem/2f/2f8e/2f8e1d75-ef46-4c1f-8035-eb68a5282d4d/87b0140f-bcdd-4995-b04b-2488d9f0625a.jpg, 0000001699/planta de investigacion 2.jpg
https://content.gnoss.ws/carq/https://content.gnoss.ws/carq//imagenes/Documentos/imgsem/2f/2f8e/2f8e1d75-ef46-4c1f-8035-eb68a5282d4d/5e7178d1-95cc-41a4-a0f4-034409c06c15.jpg, 0000001699/planta de investigacion 3.jpg
https://content.gnoss.ws/carq/https://content.gnoss.ws/carq//imagenes/Documentos/imgsem/2f/2f8e/2f8e1d75-ef46-4c1f-8035-eb68a5282d4d/8732c356-b94e-4c70-8801-3338f58fec13.jpg, 0000001699/planta de investigacion 4.jpg
https://content.gnoss.ws/carq/https://content.gnoss.ws/carq//imagenes/Documentos/imgsem/2f/2f8e/2f8e1d75-ef46-4c1f-8035-eb68a5282d4d/c6702405-9999-4bc9-bf5f-7a196f3bdf57.jpg, 0000001699/2525-14016.jpg
https://content.gnoss.ws/carq/https://content.gnoss.ws/carq//imagenes/Documentos/imgsem/2f/2f8e/2f8e1d75-ef46-4c1f-8035-eb68a5282d4d/00485ef8-3113-4773-ab81-af81c03e70d0.jpg, 0000001699/2525-14023.jpg
https://content.gnoss.ws/carq/https://content.gnoss.ws/carq//imagenes/Documentos/imgsem/2f/2f8e/2f8e1d75-ef46-4c1f-8035-eb68a5282d4d/8a183b28-260a-4078-9f45-e73013cb0b1c.jpg, 0000001699/2525-14026.jpg
https://content.gnoss.ws/carq/https://content.gnoss.ws/carq//imagenes/Documentos/imgsem/2f/2f8e/2f8e1d75-ef46-4c1f-8035-eb68a5282d4d/24656dbb-1eff-4175-a871-6b0248163605.jpg, 0000001699/2525-14031.jpg
https://content.gnoss.ws/carq/https://content.gnoss.ws/carq//imagenes/Documentos/imgsem/2f/2f8e/2f8e1d75-ef46-4c1f-8035-eb68a5282d4d/816462e3-da32-4280-82ad-9e3db6974ddd.jpg, 0000001699/2525-14033.jpg
https://content.gnoss.ws/carq//imagenes/Documentos/imgsem/2f/2f8e/2f8e1d75-ef46-4c1f-8035-eb68a5282d4d/897efd4b-d6cb-4278-b4cd-5cd3f5d0957b.jpg, 0000001699/2525-14039.jpg
https://content.gnoss.ws/carq//imagenes/Documentos/imgsem/2f/2f8e/2f8e1d75-ef46-4c1f-8035-eb68a5282d4d/9bbb4fad-4b93-4e31-b755-cf3a9b7eb5d7.jpg, 0000001699/2525-14042.jpg






