Loading...
Prototipo Periférico Nº2 es un proyecto de vivienda experimental ubicado en uno de los nuevos desarrollos de la periferia de Madrid. Es el segundo de una serie de ejercicios de pequeña escala y tipológicamente diversos que se desarrollarán en varios enclaves en torno al tejido disperso que actualmente encierra la ciudad y desdibuja sus límites, sacando el máximo partido a las repetitivas y anónimas condiciones urbanas y ambientales que habitualmente se encuentran.
Dadas las estrictas restricciones impuestas por la normativa local en cuanto a volumen, alturas e incluso consideraciones estéticas que suelen presentar estos emplazamientos, el proyecto emplea un enfoque estratégico al tratar de encontrar la libertad que falta en el exterior en la distribución interna y la organización general. Esto se consigue convirtiendo el edificio en una acumulación en altura de posibles condiciones de habitabilidad para la periferia genérica.
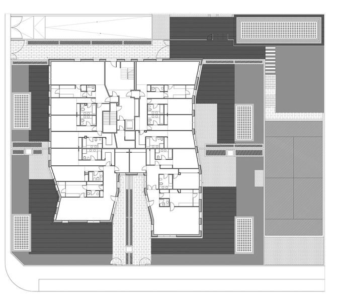
El apilamiento de tres modelos paradigmáticos habitualmente buscados (casa-jardín, loft y bungaló) conforman una sección en la que las unidades, todas ellas diferentes, sustituyen la tradicional determinación de los metros cuadrados por las posibilidades de los volúmenes capaces. Todas las casas cuentan con una terraza y una pequeña piscina. Esta característica, unida a los jardines privados y las dobles alturas, hacen que el producto sea competitivo en el mercado, además de ofrecer una especie de casas a medida, algunas de ellas incluso ligeramente modificadas por los propietarios durante la construcción.
La diferencia en el carácter y la tipología que tiene cada casa también se ve acentuada por la amplia gama de tamaños que se ofrecen, que van desde los 80 m2 hasta los 170 m2. Esta condición ha generado una comunidad diversa en términos de usuarios que varían en edad, carácter y ocupación, alejándose del tipo-usuario y tipo-edificio común en las zonas periféricas hacia una micro-identificación entre usuario, casa y edificio.
El Prototipo Periférico Nº2 se construye sobre un armazón regular de hormigón, habiendo utilizado la tierra de la excavación para conformar el paisaje exterior, en una operación literal de reciclaje. Todas las fachadas están moduladas a una sola anchura de paneles blancos prefabricados de hormigón reforzado con fibra de vidrio (GRC) que se deja a la vista y sin tratar. Esto ha proporcionado un proceso de construcción rápido y seco, eliminando mano de obra y oficios. Los muros exteriores son deliberadamente anchos para contener la mayor parte de los conductos e instalaciones además de la estructura. Esta profundidad también permite una profunda ventana repetida, también de un solo tamaño, autoprotegida del fuerte sol de Madrid.
La cubierta está revestida de placas de zinc que rodean parte de las fachadas en los niveles superiores. Esto está pensado para producir un cierto porcentaje de variación de materiales impuesto por las restricciones locales. Esta negociación entre materiales traslada al exterior partes del orden interno, pero también se considera que representa la necesaria negociación entre las fuerzas públicas, privadas, arquitectónicas y de mercado que el proyecto ha intentado hacer visible.
General information
Prototipo Periférico Nº2
YEAR
Option to visit
Address
c/ Mar Adriático,
28221 Majadahonda - Madrid
Latitude: 40.46661
Longitude: -3.85995
Classification
Built area
Awards
Information provided by
EUMies Award
Location
https://content.gnoss.ws/carq/https://content.gnoss.ws/carq//imagenes/Documentos/imgsem/98/980d/980d6b6c-6495-4e6e-b9ce-ae18854fe77e/b17cfa8a-d66b-489e-98d0-f8997c0e448d.jpg, 0000002820/ACUE2009_21_PROTOTIPO_Subliminal_02.jpg
https://content.gnoss.ws/carq/https://content.gnoss.ws/carq//imagenes/Documentos/imgsem/98/980d/980d6b6c-6495-4e6e-b9ce-ae18854fe77e/48b0fe28-c441-40c2-b387-e76a5f7c0291.jpg, 0000002820/209-2079.jpg
https://content.gnoss.ws/carq/https://content.gnoss.ws/carq//imagenes/Documentos/imgsem/98/980d/980d6b6c-6495-4e6e-b9ce-ae18854fe77e/22fe748a-68e3-4c07-abd0-82aad102cbf6.jpg, 0000002820/209-2117.jpg
https://content.gnoss.ws/carq/https://content.gnoss.ws/carq//imagenes/Documentos/imgsem/98/980d/980d6b6c-6495-4e6e-b9ce-ae18854fe77e/9d9e5c2c-7a99-405c-8320-364d5437938d.jpg, 0000002820/209-1070.jpg
https://content.gnoss.ws/carq/https://content.gnoss.ws/carq//imagenes/Documentos/imgsem/98/980d/980d6b6c-6495-4e6e-b9ce-ae18854fe77e/8ba2dcfd-def6-4b0a-ba75-caf0cfb3ea56.jpg, 0000002820/209-1998.jpg
https://content.gnoss.ws/carq//imagenes/Documentos/imgsem/98/980d/980d6b6c-6495-4e6e-b9ce-ae18854fe77e/bea4107d-d607-44ce-a534-044973c7c1cc.jpg, 0000002820/209---Peripheral-Prototype-No2209-(1).jpg
https://content.gnoss.ws/carq//imagenes/Documentos/imgsem/98/980d/980d6b6c-6495-4e6e-b9ce-ae18854fe77e/e5f6467c-bdbf-456f-b88e-a605c357228c.jpg, 0000002820/209-1072.jpg
https://content.gnoss.ws/carq//imagenes/Documentos/imgsem/98/980d/980d6b6c-6495-4e6e-b9ce-ae18854fe77e/f34905aa-a27f-4a89-a6fb-e67ea1526d9d.jpg, 0000002820/209-1073.jpg
https://content.gnoss.ws/carq//imagenes/Documentos/imgsem/98/980d/980d6b6c-6495-4e6e-b9ce-ae18854fe77e/f460abd0-be61-45c7-9597-ea030902b613.jpg, 0000002820/209---Peripheral-Prototype-No2209-(2).jpg
https://content.gnoss.ws/carq//imagenes/Documentos/imgsem/98/980d/980d6b6c-6495-4e6e-b9ce-ae18854fe77e/fafb6257-53c0-4a9a-9190-3e0bf79fe65e.jpg, 0000002820/209-1074.jpg



