Loading...
El edificio para la nueva biblioteca y teatro de Boadilla del Monte se plantea como un lugar de vocación pública que se construye sacando provecho de las condiciones urbanísticas, programáticas y materiales del edificio que se rehabilita. Se ha trabajado sobre cada uno de esos parámetros para que, reordenados, proyecten un nuevo equipamiento de voluntad contemporánea y colectiva.
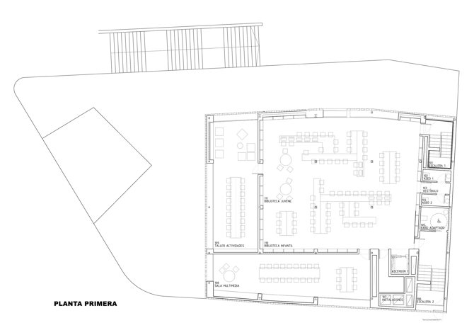
El proyecto de rehabilitación de la Casa de la Cultura de Boadilla para su uso como nueva biblioteca municipal trabajaba sobre un edificio de los años 80 que albergaba dos usos mezclados de forma algo confusa. La primera estrategia de actuación consiste en separarlo en dos partes. Pasamos de un edificio a dos edificios, generando nuevos accesos independientes que, enfrentados, construyen un lugar público en forma de plaza elevada sobre la cota de las calles que los rodean. Un espacio intermedio, una plaza dura y accesible por rampas a la que se abren las entradas a biblioteca y teatro. Dotar a cada uno de los programas de independencia y autonomía permite optimizar las soluciones de accesos, circulaciones, espacios de servicio… para que se adapten a sus particularidades. La segunda de las estrategias es matérica. El nuevo edificio mantiene el ladrillo como material de fachada, con la voluntad de aunar innovación y tradición.
La cerámica está muy presente en el contexto urbano de Boadilla, incluso en elementos patrimoniales cercanos, como la tapia de los jardines del Palacio del Infante Don Luis del siglo XVIII o el conjunto de la Iglesia de San Cristóbal, cuyo núcleo data del siglo XIII.
Cada una de las dos partes del edificio se manifiesta al exterior en sendos volúmenes idénticos en lo material y de tamaños diferentes. La tercera estrategia es estructural. El antiguo edificio fue construido para que los pilares de las plantas intermedias trabajaran a tracción, sujetando el techo del teatro desde unas grandes cerchas en una cubierta inclinada sin uso.
El proyecto invierte el sentido de las cargas y esos pilares pasan a trabajar a compresión, descargando sobre dos grandes vigas postesadas en el techo del teatro. De esta forma, optimizamos las condiciones urbanísticas a nivel de volumetría consiguiendo bajo la cubierta una gran sala de lectura libre de estructura donde no la había.
La reestructuración de la biblioteca y teatro municipal de Boadilla del Monte pasa por mejorar cada uno de los usos de manera independiente en primer lugar y por visibilizar la actualización.
Nuestra estrategia es clara, era un edificio y ahora serán dos edificios. Vamos a separar el edificio en dos partes, generando nuevos accesos independientes y trabajando sobre cada uno de ellos para especializarlo. Además, vamos a trabajar en una reinvención de la misma materialidad. El no cambio es el valor.
General information
Rehabilitación de la Casa de la Cultura de Boadilla como Biblioteca Municipal y Teatro
YEAR
Option to visit
Address
c/ de los Mártires, 1
28660 Boadilla del Monte - Madrid
Latitude: 40.406478764
Longitude: -3.875809377
Classification
Built area
Awards
Involved architects
Collaborators
Involved architectural firms
Information provided by
Matos Castillo Arquitectos
Website links
Location
https://content.gnoss.ws/carq/https://content.gnoss.ws/carq//imagenes/Documentos/imgsem/1c/1c30/1c304e3e-ef2b-470d-b748-a2cb9bf4aae3/2e9dde88-8987-4489-860b-29723c7ce1bf.jpg, 0000045747/Biblioteca de Boadilla_01_Ana Matos.jpg
https://content.gnoss.ws/carq/https://content.gnoss.ws/carq//imagenes/Documentos/imgsem/1c/1c30/1c304e3e-ef2b-470d-b748-a2cb9bf4aae3/7bdeb828-8cee-4b04-822c-8dfba0344e32.jpg, 0000045747/Biblioteca de Boadilla_02_Ana Matos.jpg
https://content.gnoss.ws/carq/https://content.gnoss.ws/carq//imagenes/Documentos/imgsem/1c/1c30/1c304e3e-ef2b-470d-b748-a2cb9bf4aae3/56888ce7-cbf0-4a40-a2f7-4eb036ac2cac.jpg, 0000045747/Biblioteca de Boadilla_03_Ana Matos.jpg
https://content.gnoss.ws/carq/https://content.gnoss.ws/carq//imagenes/Documentos/imgsem/1c/1c30/1c304e3e-ef2b-470d-b748-a2cb9bf4aae3/395e5577-ccc1-4bb5-bfc0-17bb76866b00.jpg, 0000045747/Biblioteca de Boadilla_04_Ana Matos.jpg
https://content.gnoss.ws/carq/https://content.gnoss.ws/carq//imagenes/Documentos/imgsem/1c/1c30/1c304e3e-ef2b-470d-b748-a2cb9bf4aae3/6a82b856-86f4-494a-aeb1-4a432c58a060.jpg, 0000045747/Biblioteca de Boadilla_05_Ana Matos.jpg
https://content.gnoss.ws/carq/https://content.gnoss.ws/carq//imagenes/Documentos/imgsem/1c/1c30/1c304e3e-ef2b-470d-b748-a2cb9bf4aae3/c38b95d4-b84d-4935-a66f-904ca133865c.jpg, 0000045747/Biblioteca de Boadilla_06_Jose Hevia.jpg
https://content.gnoss.ws/carq/https://content.gnoss.ws/carq//imagenes/Documentos/imgsem/1c/1c30/1c304e3e-ef2b-470d-b748-a2cb9bf4aae3/209f7a44-8edf-4a53-abfd-0b3ef50ad205.jpg, 0000045747/Biblioteca de Boadilla_07_Jose Hevia.jpg
https://content.gnoss.ws/carq/https://content.gnoss.ws/carq//imagenes/Documentos/imgsem/1c/1c30/1c304e3e-ef2b-470d-b748-a2cb9bf4aae3/85f6f479-4fb1-48cd-8c99-128cdc332ba1.jpg, 0000045747/Biblioteca de Boadilla_08_Jose Hevia.jpg
https://content.gnoss.ws/carq/https://content.gnoss.ws/carq//imagenes/Documentos/imgsem/1c/1c30/1c304e3e-ef2b-470d-b748-a2cb9bf4aae3/5c20f876-e0a4-45d4-bb3f-4d4502c3af96.jpg, 0000045747/Biblioteca de Boadilla_09_Jose Hevia.jpg
https://content.gnoss.ws/carq/https://content.gnoss.ws/carq//imagenes/Documentos/imgsem/1c/1c30/1c304e3e-ef2b-470d-b748-a2cb9bf4aae3/25426f4c-59c6-4282-853e-ff50d84ac42a.jpg, 0000045747/Biblioteca de Boadilla_10_Jose Hevia.jpg
https://content.gnoss.ws/carq/https://content.gnoss.ws/carq//imagenes/Documentos/imgsem/1c/1c30/1c304e3e-ef2b-470d-b748-a2cb9bf4aae3/93087431-d6c0-4b35-9f4b-8f4bec459bc4.jpg, 0000045747/Biblioteca de Boadilla_11_Jose Hevia.jpg
https://content.gnoss.ws/carq/https://content.gnoss.ws/carq//imagenes/Documentos/imgsem/1c/1c30/1c304e3e-ef2b-470d-b748-a2cb9bf4aae3/dc703ac6-4215-4500-b82b-d0f9faab3924.jpg, 0000045747/Biblioteca de Boadilla_12_Jose Hevia.jpg
https://content.gnoss.ws/carq/https://content.gnoss.ws/carq//imagenes/Documentos/imgsem/1c/1c30/1c304e3e-ef2b-470d-b748-a2cb9bf4aae3/f631dd06-1e97-427e-999b-6bad556d8428.jpg, 0000045747/Biblioteca de Boadilla_13_Jose Hevia.jpg
https://content.gnoss.ws/carq/https://content.gnoss.ws/carq//imagenes/Documentos/imgsem/1c/1c30/1c304e3e-ef2b-470d-b748-a2cb9bf4aae3/73e08b04-4d89-4e56-9501-44522233397d.jpg, 0000045747/Biblioteca de Boadilla_14_Jose Hevia.jpg
https://content.gnoss.ws/carq/https://content.gnoss.ws/carq//imagenes/Documentos/imgsem/1c/1c30/1c304e3e-ef2b-470d-b748-a2cb9bf4aae3/393cf351-56b3-4aaf-8314-471998d62d89.jpg, 0000045747/Biblioteca de Boadilla_15_Ana Matos.jpg
https://content.gnoss.ws/carq/https://content.gnoss.ws/carq//imagenes/Documentos/imgsem/1c/1c30/1c304e3e-ef2b-470d-b748-a2cb9bf4aae3/1fd4ce43-e39c-4620-818d-ea1e6df39b75.jpg, 0000045747/Biblioteca de Boadilla_16_Ana Matos.jpg
https://content.gnoss.ws/carq/https://content.gnoss.ws/carq//imagenes/Documentos/imgsem/1c/1c30/1c304e3e-ef2b-470d-b748-a2cb9bf4aae3/79634e0f-f912-4d4c-bfa9-c7dfb760ff49.jpg, 0000045747/Biblioteca de Boadilla_17_Jose Hevia.jpg
https://content.gnoss.ws/carq//imagenes/Documentos/imgsem/1c/1c30/1c304e3e-ef2b-470d-b748-a2cb9bf4aae3/fcf95bf5-bef2-4540-9c0e-bd1e1c82ce89.jpg, 0000045747/08_Seccion longitudinal.jpg
https://content.gnoss.ws/carq//imagenes/Documentos/imgsem/1c/1c30/1c304e3e-ef2b-470d-b748-a2cb9bf4aae3/64ad2d1e-f2d3-4111-ba19-67f49925cc14.jpg, 0000045747/03_Planta primera.jpg
https://content.gnoss.ws/carq//imagenes/Documentos/imgsem/1c/1c30/1c304e3e-ef2b-470d-b748-a2cb9bf4aae3/7ce07ee3-d9ee-4c93-aced-f9835adb107f.jpg, 0000045747/01_Planta sotano.jpg
https://content.gnoss.ws/carq//imagenes/Documentos/imgsem/1c/1c30/1c304e3e-ef2b-470d-b748-a2cb9bf4aae3/68732127-27f2-4a4b-b9a0-8a6789fcf6e6.jpg, 0000045747/04_Planta segunda.jpg
https://content.gnoss.ws/carq//imagenes/Documentos/imgsem/1c/1c30/1c304e3e-ef2b-470d-b748-a2cb9bf4aae3/513582b9-f0c7-42db-b6f7-5133f89d213b.jpg, 0000045747/05_Plantas ocupacion.jpg
https://content.gnoss.ws/carq//imagenes/Documentos/imgsem/1c/1c30/1c304e3e-ef2b-470d-b748-a2cb9bf4aae3/a9d8172d-7f4e-4fbf-9049-f714bdf49efe.jpg, 0000045747/CONJUNTO 1.jpg
https://content.gnoss.ws/carq//imagenes/Documentos/imgsem/1c/1c30/1c304e3e-ef2b-470d-b748-a2cb9bf4aae3/775067aa-aada-4169-8016-446ad617280f.jpg, 0000045747/02_Planta baja.jpg
https://content.gnoss.ws/carq//imagenes/Documentos/imgsem/1c/1c30/1c304e3e-ef2b-470d-b748-a2cb9bf4aae3/285fdf85-d4ea-4e5b-b630-3490ae89b98c.jpg, 0000045747/CONJUNTO 2.jpg
https://content.gnoss.ws/carq//imagenes/Documentos/imgsem/1c/1c30/1c304e3e-ef2b-470d-b748-a2cb9bf4aae3/8d4f0e44-da24-4bc3-b281-5ceac1fbf7b9.jpg, 0000045747/07_Cubierta.jpg
https://content.gnoss.ws/carq//imagenes/Documentos/imgsem/1c/1c30/1c304e3e-ef2b-470d-b748-a2cb9bf4aae3/392ee0c7-b0b9-4e80-a718-32155c8e1226.jpg, 0000045747/09_Seccion transversal.jpg
https://content.gnoss.ws/carq//imagenes/Documentos/imgsem/1c/1c30/1c304e3e-ef2b-470d-b748-a2cb9bf4aae3/601bab4b-6cce-4b6f-9589-7e54260a6fc8.jpg, 0000045747/05_Planta tercera.jpg



