Loading...
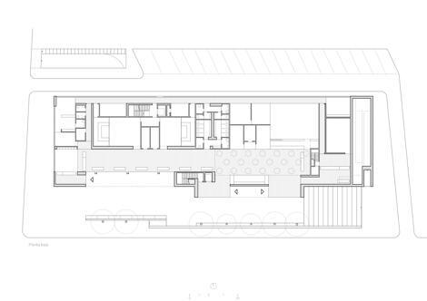
El programa consiste de forma resumida en un grupo de funciones muy directamente relacionadas con el público, como son el Registro Civil y Sala de Bodas, Salas de Vistas, Atención al Público, Registro General, Partido Judicial, Clínica Forense y Juzgado de Guardia. Un segundo orden de dependencias relacionadas con cada uno de los cuatro Juzgados de Primera Instancia e Instrucción, más la Fiscalía, Biblioteca y los Colegios Profesionales y un tercero, el más restringido y relacionado con el área de Detenidos, Archivos y Área de Instalaciones.
Los parámetros edificatorios limitaban la altura a cinco plantas y una ocupación máxima del 50%. El solar disponible quedaría completado con los edificios de los Cuerpos de Seguridad del Estado, dentro de una trama residencial de reciente Creación y Crecimiento. Un entorno sin referencias de valor impedía tomar en consideración su disposición, más bien, las proporciones del enclave con un frente a la vía principal de ochenta metros y un desnivel de casi dos metros condicionarían la presencia final del edificio. Se pretendía que el edificio, sin renunciar a su representatividad, resultara adecuado a las necesidades funcionales de usuarios y trabajadores, y oportuno en la escala del lugar de implantación.
Un edificio denso y capaz de organizarse en el interior satisfactoriamente, pero a la vez humanizado en su interior, persiguiendo valores sólidos y robustos pero sin olvidar conceptos como transparencia y claridad, todos ellos fundamentos del ejercicio de la propia justicia.
Con tan pocos alicientes iniciales, el dialogo entre lugar y arquitectura quedaba muy reducido. Esta forzada autonomía nos llevó a considerar una arquitectura contenida y compacta, desarrollando un edificio en longitud, en una gran plataforma pública de la que emerge un prisma de gran rotundidad como torre de juzgados.
General information
Sede Judicial de Antequera
YEAR
Option to visit
Address
Avda. Miguel de Cervantes,
29200 Antequera - Málaga -Antequera
Latitude: 37.021621515
Longitude: -4.57163276
Classification
Construction system
Estructura mixta de hormigón y acero con fachada ventilada de prefabricados de GRC
Built area
Collaborators
Roberto Alés Mendez (Arquitecto Técnico)
Information provided by
Ignacio Laguillo
-
Planta baja - Ignacio Laguillo -
Ignacio Laguillo -
Jesús Granada
Location
https://content.gnoss.ws/carq/https://content.gnoss.ws/carq//imagenes/Documentos/imgsem/c1/c1f6/c1f6d5c7-1308-461e-b636-27f1e6c6353e/88e21770-90e7-41da-b3a9-57cd071c5d4f.jpg, 0000001605/10(7117)-355.jpg
https://content.gnoss.ws/carq/https://content.gnoss.ws/carq//imagenes/Documentos/imgsem/c1/c1f6/c1f6d5c7-1308-461e-b636-27f1e6c6353e/b84b8d3b-1935-4946-a500-e15fda2fd2c1.jpg, 0000001605/12911.jpg
https://content.gnoss.ws/carq/https://content.gnoss.ws/carq//imagenes/Documentos/imgsem/c1/c1f6/c1f6d5c7-1308-461e-b636-27f1e6c6353e/a13152c6-9857-4149-97ce-9205cc50ed35.jpg, 0000001605/12917.jpg
https://content.gnoss.ws/carq/https://content.gnoss.ws/carq//imagenes/Documentos/imgsem/c1/c1f6/c1f6d5c7-1308-461e-b636-27f1e6c6353e/371283a4-6b96-4375-9ddc-561331a5a5ce.jpg, 0000001605/12924.jpg
https://content.gnoss.ws/carq/https://content.gnoss.ws/carq//imagenes/Documentos/imgsem/c1/c1f6/c1f6d5c7-1308-461e-b636-27f1e6c6353e/e274d433-d28d-41ef-8ef4-b16222153494.jpg, 0000001605/12930.jpg
https://content.gnoss.ws/carq/https://content.gnoss.ws/carq//imagenes/Documentos/imgsem/c1/c1f6/c1f6d5c7-1308-461e-b636-27f1e6c6353e/a51ae962-bb71-44e0-b1ea-b2c517b5e359.png, 0000001605/12937.png
https://content.gnoss.ws/carq/https://content.gnoss.ws/carq//imagenes/Documentos/imgsem/c1/c1f6/c1f6d5c7-1308-461e-b636-27f1e6c6353e/656abcbf-66d9-41e5-80bb-82ae1e43759c.jpg, 0000001605/12941.jpg
https://content.gnoss.ws/carq/https://content.gnoss.ws/carq//imagenes/Documentos/imgsem/c1/c1f6/c1f6d5c7-1308-461e-b636-27f1e6c6353e/f4f96ab5-d5c0-49ba-86fc-0223dfed99aa.jpg, 0000001605/01(7851)-355.jpg
https://content.gnoss.ws/carq/https://content.gnoss.ws/carq//imagenes/Documentos/imgsem/c1/c1f6/c1f6d5c7-1308-461e-b636-27f1e6c6353e/85ab3ee9-406a-4a13-a8e7-2bff27874322.jpg, 0000001605/02(7881)-355.jpg
https://content.gnoss.ws/carq/https://content.gnoss.ws/carq//imagenes/Documentos/imgsem/c1/c1f6/c1f6d5c7-1308-461e-b636-27f1e6c6353e/c9cc0b3d-c0bd-4411-8386-1e5b4df1e473.jpg, 0000001605/07(7091)-355.jpg
https://content.gnoss.ws/carq/https://content.gnoss.ws/carq//imagenes/Documentos/imgsem/c1/c1f6/c1f6d5c7-1308-461e-b636-27f1e6c6353e/a6e713e9-aef0-4053-b77e-c01fb76ccd0a.jpg, 0000001605/14(7031)-355.jpg
https://content.gnoss.ws/carq/https://content.gnoss.ws/carq//imagenes/Documentos/imgsem/c1/c1f6/c1f6d5c7-1308-461e-b636-27f1e6c6353e/b452b64d-2724-4d25-beb7-df578f2bae49.jpg, 0000001605/31(7261)-355.jpg
https://content.gnoss.ws/carq//imagenes/Documentos/imgsem/c1/c1f6/c1f6d5c7-1308-461e-b636-27f1e6c6353e/cab5ea79-4220-4fd0-9c79-327849c0b751.jpg, 0000001605/PLANOS ANTEQ 1.jpg
https://content.gnoss.ws/carq//imagenes/Documentos/imgsem/c1/c1f6/c1f6d5c7-1308-461e-b636-27f1e6c6353e/b9fedffb-05bb-464a-94d2-56ba8035088b.jpg, 0000001605/PLANOS ANTEQ 2.jpg
https://content.gnoss.ws/carq//imagenes/Documentos/imgsem/c1/c1f6/c1f6d5c7-1308-461e-b636-27f1e6c6353e/a1f5353c-658e-408d-a5bd-7a969f022133.jpg, 0000001605/PLANOS ANTEQ 3.jpg
https://content.gnoss.ws/carq//imagenes/Documentos/imgsem/c1/c1f6/c1f6d5c7-1308-461e-b636-27f1e6c6353e/dd9c6e00-99b9-4afc-9e3b-5c5b6853118a.jpg, 0000001605/PLANOS ANTEQ 4.jpg
https://content.gnoss.ws/carq//imagenes/Documentos/imgsem/c1/c1f6/c1f6d5c7-1308-461e-b636-27f1e6c6353e/546ebd48-fa30-4544-8eee-212ec47727cd.jpg, 0000001605/PLANOS ANTEQ 5.jpg
https://content.gnoss.ws/carq//imagenes/Documentos/imgsem/c1/c1f6/c1f6d5c7-1308-461e-b636-27f1e6c6353e/81d43eb1-77e3-4925-8db8-9b2c6afbd307.jpg, 0000001605/PLANOS ANTEQ 6.jpg
https://content.gnoss.ws/carq//imagenes/Documentos/imgsem/c1/c1f6/c1f6d5c7-1308-461e-b636-27f1e6c6353e/a9d099f5-baea-40b4-bbae-1a461fc3421d.jpg, 0000001605/PLANOS ANTEQ 7.jpg
https://content.gnoss.ws/carq//imagenes/Documentos/imgsem/c1/c1f6/c1f6d5c7-1308-461e-b636-27f1e6c6353e/58922af0-ac1c-4d78-b621-a82a695832c3.jpg, 0000001605/PLANOS ANTEQ 8.jpg
https://content.gnoss.ws/carq//imagenes/Documentos/imgsem/c1/c1f6/c1f6d5c7-1308-461e-b636-27f1e6c6353e/415e1104-3044-4347-9b62-a4599352d19e.jpg, 0000001605/PLANOS ANTEQ 9.jpg
https://content.gnoss.ws/carq//imagenes/Documentos/imgsem/c1/c1f6/c1f6d5c7-1308-461e-b636-27f1e6c6353e/5c05f86e-6ad5-44e6-8758-7e7b53a48be3.jpg, 0000001605/BOCETOS.jpg
https://content.gnoss.ws/carq//imagenes/Documentos/imgsem/c1/c1f6/c1f6d5c7-1308-461e-b636-27f1e6c6353e/99a4e0fe-4467-4394-b5f9-13a0173e46ac.jpg, 0000001605/903c - bn.jpg




