Loading...
Las Ordenanzas permitían ocupar todo el solar, pero el volumen de baja altura que resultaba de ello no contribuía a definir el espacio público que tenía enfrente ni ocultar las enormes medianeras vecinas.
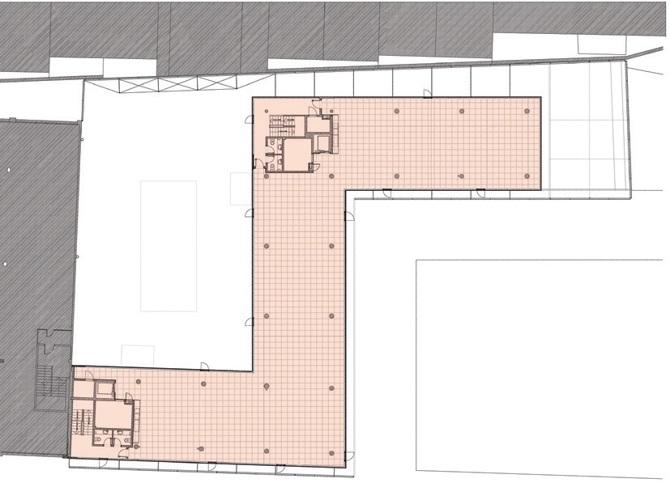
El proyecto optó por construir un edificio alto como las viviendas del entorno y reducir consecuentemente la planta, que quedó circunscrita a una banda estrecha que dibujaba una línea quebrada a lo largo de todo el perímetro urbano del solar y que, al separarse de las medianeras, daba lugar a un generoso patio interior comunicado con la calle a través de un amplio pórtico. Este patio, vestíbulo generoso de todo el conjunto y al que daban todos los accesos, era también la zona de exposición de los elementos de alumbrado público que la empresa fabricaba.
Para conseguir una eficaz protección solar, el edificio, totalmente acristalado, se envolvió con una malla deployé de acero inoxidable. Esta malla cubría la maquinaria de instalaciones situada en la cubierta, se prolongaba por encima del patio contribuyendo a precisar su geometría y, al mismo tiempo, protegían las fachadas que daban a él. Al llegar a la calle caía en vertical y solo en la fachada norte aparecía el vidrio en toda su desnudez.
General information
Showroom y oficinas Simon Lighting
YEAR
Option to visit
Address
plza. de Sant Pol de Mar, 1
08030 Barcelona - Barcelona
Latitude: 41.437139977
Longitude: 2.2028414703
Built area
Involved architectural firms
Information provided by
Ministry of Transport, Mobility and Urban Agenda (MITMA)
-
Clotet, Paricio & Associats -
Lluís Casals
Location
https://content.gnoss.ws/carq/https://content.gnoss.ws/carq//imagenes/Documentos/imgsem/59/59a1/59a1a6b3-335d-44c8-b39b-7c964feb7724/73f7fe80-e65f-46f0-a81d-3946906ab8d7.jpg, 0000023348/Showroom .jpg
https://content.gnoss.ws/carq/https://content.gnoss.ws/carq//imagenes/Documentos/imgsem/59/59a1/59a1a6b3-335d-44c8-b39b-7c964feb7724/82111cb9-b839-4251-b043-1b733ff59dff.jpg, 0000023348/Showroom 1 .jpg
https://content.gnoss.ws/carq/https://content.gnoss.ws/carq//imagenes/Documentos/imgsem/59/59a1/59a1a6b3-335d-44c8-b39b-7c964feb7724/34262830-6a05-41ed-aafb-cfc263aa45c7.jpg, 0000023348/Showroom 2 .jpg
https://content.gnoss.ws/carq/https://content.gnoss.ws/carq//imagenes/Documentos/imgsem/59/59a1/59a1a6b3-335d-44c8-b39b-7c964feb7724/f9ecc31b-3ac2-458c-b828-f152d36530ca.jpg, 0000023348/Showroom 3 .jpg
https://content.gnoss.ws/carq/https://content.gnoss.ws/carq//imagenes/Documentos/imgsem/59/59a1/59a1a6b3-335d-44c8-b39b-7c964feb7724/4e287b65-ca92-48af-acde-463c773ab3d3.jpg, 0000023348/Showroom 5 .jpg
https://content.gnoss.ws/carq//imagenes/Documentos/imgsem/59/59a1/59a1a6b3-335d-44c8-b39b-7c964feb7724/a3bc0b72-eb72-4624-b600-a05205d07576.jpg, 0000023348/Showroom planta .jpg
https://content.gnoss.ws/carq//imagenes/Documentos/imgsem/59/59a1/59a1a6b3-335d-44c8-b39b-7c964feb7724/b39824f9-1c30-48c2-8300-92eaaba8721b.jpg, 0000023348/Showroom seccion.jpg




