Loading...
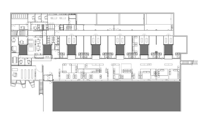
Situado delante de una gran zona verde, demasiado cerca de un barrio residencial, el edificio se entierra bajo un estanque de agua para integrarse en el entorno natural y facilitar su relación con las viviendas vecinas.
La sala de espera se abre a un gran talud de hiedra y abedules y se caracteriza con madera barnizada, grandes alfombras e iluminación indirecta para potenciar su aspecto confortable. Las salas de vigilia se iluminan naturalmente a través de unos patios con agua que sugieren recogimiento y privacidad. La única fachada del edificio, la cubierta, refleja el magnífico cielo de León como alegoría de la muerte.
.
General information
Tanatorio Municipal de León
YEAR
Option to visit
Address
avda. Peregrinos, 14
24008 Leon - León
Latitude: 42.605434203
Longitude: -5.584863424
Classification
Built area
Involved architectural firms
Information provided by
EUMies Award
-
Eugeni Pons -
BAAS Arquitectura, vía EUMies Award -
Eugeni Pons, vía EUMies Award -
BAAS Arquitectura, vía EUMies Award
Location
Itineraries
https://content.gnoss.ws/carq/https://content.gnoss.ws/carq//imagenes/Documentos/imgsem/92/9266/92661fb6-9ca0-4d3a-abb3-2b09dbf8a375/a9d2a2e1-1d62-4758-8e33-38d732e40078.jpg, 0000003494/baas-tanatori-1 .jpg
https://content.gnoss.ws/carq/https://content.gnoss.ws/carq//imagenes/Documentos/imgsem/92/9266/92661fb6-9ca0-4d3a-abb3-2b09dbf8a375/7d39bd51-182f-4e9c-9ada-f1ef032ee089.jpg, 0000003494/ACUE2003_15_TANATORIO_Pons_01.jpg
https://content.gnoss.ws/carq/https://content.gnoss.ws/carq//imagenes/Documentos/imgsem/92/9266/92661fb6-9ca0-4d3a-abb3-2b09dbf8a375/2964c0b5-19e4-4342-b5d0-2a031cf48709.jpg, 0000003494/ACUE2003_15_TANATORIO_Pons_02.jpg
https://content.gnoss.ws/carq/https://content.gnoss.ws/carq//imagenes/Documentos/imgsem/92/9266/92661fb6-9ca0-4d3a-abb3-2b09dbf8a375/dcaa12e5-fa8b-4d1d-89b3-c159722c8d48.jpg, 0000003494/baas-tanatori-2 .jpg
https://content.gnoss.ws/carq//imagenes/Documentos/imgsem/92/9266/92661fb6-9ca0-4d3a-abb3-2b09dbf8a375/bafaf1ed-f846-4b67-8d7a-ca63272fc423.jpg, 0000003494/baas-tanatori-planta.jpg
https://content.gnoss.ws/carq//imagenes/Documentos/imgsem/92/9266/92661fb6-9ca0-4d3a-abb3-2b09dbf8a375/17b94595-de8f-4615-9e72-4267a154886e.jpg, 0000003494/baas-tanatori-seccion.jpg





