Loading...
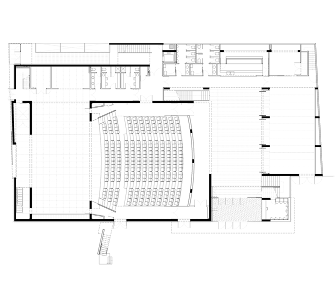
El edificio se plantea como una construcción singular, y en cierta manera exenta, pero que al mismo tiempo pretende completar la trama urbana de la isla en la que se ubica. Esta concepción volumétrica se corresponde con su organización: un lado alto, con la sala y la caja escénica, que asume el carácter público y representativo del conjunto, y un lado bajo, adosado a las mitades, con los espacios auxiliares, de servicio o de gestión, que se relaciona con la edificación existente.
El espacio urbano de la entrada se reorganiza resolviendo, de forma también puntual, las diferentes situaciones y asumiéndolas en un nuevo trazado, configurado a la escala del nuevo equipamiento cultural. La sala y el escenario se han planteado como un teatro a la italiana, con la sala y el escenario diferenciados, pero que pueden llegar a convertirse en un espacio polivalente, con la cobertura de las tres primeras filas de la platea y el repliegue de la grada.
En su formación a la italiana la sala tiene una capacidad para 400 espectadores con las butacas dispuestas en una grada continua en planta baja que va desde la platea hasta el anfiteatro y a las galerías del primer piso. La sala de asambleas se ha conectado al vestíbulo, cosa que permite su uso como sala polivalente para pequeñas representaciones y exposiciones.
Estéticamente el edificio se ha concebido como una construcción compacta, con una geometría simple y regular que permite una distribución racional de los espacios, ajustada a las necesidades del programa, como un teatro municipal y hotel de entidades, que además de la sala grande dispone de un escenario, con tramoya, foso y foso de música, una sala de actos o sala experimental para unas 150 personas, vestíbulo, bar y servicios para el público, locales técnicos, cámaras, megafonía y locales para las entidades y para la gestión del equipamiento.
General information
Teatro Municipal de Roses
YEAR
Option to visit
Address
c/ de Tarragona, 81
17480 Roses - Girona
Latitude: 42.2641599
Longitude: 3.1770221598
Classification
Construction system
estructura: muro y losas de hormigón y encabalgadas metálicas ; fachada invertida revestida de bandejas de zinc; cierres practicables: exteriores con perfilería metálica y cristales con cámara, interiores: madera contrachapada.
Built area
Collaborators
Audioscan (Ingeniería Acústica)
Dino Ibáñez & Associats SL (Consultor escénico)
Ventura i associats (Instalaciones Eléctricas)
Information provided by
ammarquitectes
Location
https://content.gnoss.ws/carq//imagenes/Documentos/imgsem/06/0674/06741e0b-6d6a-48a2-9a47-96ba8a42a898/21f80314-c742-4c6d-b496-a039fed7451c.png, 0000022263/A07-sec.1.png
https://content.gnoss.ws/carq//imagenes/Documentos/imgsem/06/0674/06741e0b-6d6a-48a2-9a47-96ba8a42a898/9bf86d61-a69f-4e1c-9d93-7be6150e3d46.png, 0000022263/A03-p-b.1.png
https://content.gnoss.ws/carq//imagenes/Documentos/imgsem/06/0674/06741e0b-6d6a-48a2-9a47-96ba8a42a898/c32833e6-00e1-4137-b637-dac6eac77427.png, 0000022263/emplacament.png



