Loading...
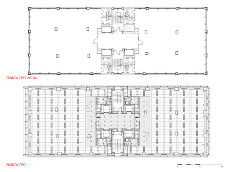
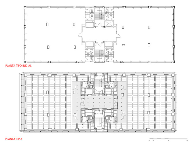
Este proyecto comporta la renovación integral de un edificio existente para adecuarlo a los requerimientos propios de los actuales edificios de oficinas. La operación ha supuesto un cambio radical en su imagen, donde los arbitrarios motivos ornamentales de la antigua fachada han sido sustituidos por un muro cortina neutro y homogéneo con una perfilería que acentúa su relieve y aporta un considerable efecto de sombra.
El edificio presenta este tratamiento genérico en tres de sus lados, pero introduce un motivo excepcional en su fachada a la avenida Diagonal. Este motivo consiste en una sucesión vertical de planos inclinados de vidrio que abarcan toda la altura de la planta y muestran el intento ideal de abrir la torre a esta importante arteria urbana. Este recurso podría compararse con el de los templos “in antis” del mundo griego, en los que los muros laterales enmarcan, a través de las antas, una gran abertura situada en la fachada corta.
General information
Torre Diagonal 682
YEAR
Option to visit
Address
avda. Diagonal, 682
08034 Barcelona - Barcelona
Latitude: 41.388171982
Longitude: 2.1230524163
Construction system
Muro cortina sobre estructura existente
Built area
Involved architects
Involved architectural firms
Information provided by
TAC Arquitectes
Website links
-
Estado inicial - Tac arquitectes -
Detalle Fachada Diagonal - Tac Arquitectes -
Plantas - Tac Arquitectes -
Fachada lateral - Tac Arquitectes -
marquesina - Tac arquitectes -
Fachada Diagonal 2 - Tac arquitectes
Location
https://content.gnoss.ws/carq/https://content.gnoss.ws/carq//imagenes/Documentos/imgsem/6c/6c7a/6c7ae81a-2667-43d9-b673-eedc8124b4ea/5d082e2a-bad6-42bc-ab9f-e0eb8da3ba06.jpg, 0000021148/01_ICC11_r1_verticalidad.jpg
https://content.gnoss.ws/carq/https://content.gnoss.ws/carq//imagenes/Documentos/imgsem/6c/6c7a/6c7ae81a-2667-43d9-b673-eedc8124b4ea/ded2b6b2-44bf-434f-8fba-8f88866e552a.jpg, 0000021148/02_Diagonal 682 - 002.jpg
https://content.gnoss.ws/carq/https://content.gnoss.ws/carq//imagenes/Documentos/imgsem/6c/6c7a/6c7ae81a-2667-43d9-b673-eedc8124b4ea/fe2d9668-ec6b-410d-8139-3bcda25a31e1.jpg, 0000021148/03_.jpg
https://content.gnoss.ws/carq/https://content.gnoss.ws/carq//imagenes/Documentos/imgsem/6c/6c7a/6c7ae81a-2667-43d9-b673-eedc8124b4ea/d5267c87-4ec4-409b-a3d1-9725b4e12b8b.jpg, 0000021148/05_.jpg
https://content.gnoss.ws/carq/https://content.gnoss.ws/carq//imagenes/Documentos/imgsem/6c/6c7a/6c7ae81a-2667-43d9-b673-eedc8124b4ea/147ae44c-2695-4ee6-8975-36033c658de0.jpg, 0000021148/06_ICC13.jpg
https://content.gnoss.ws/carq/https://content.gnoss.ws/carq//imagenes/Documentos/imgsem/6c/6c7a/6c7ae81a-2667-43d9-b673-eedc8124b4ea/c92b74c2-8ae1-4855-a97f-c36c4f4cd086.jpg, 0000021148/08_ICC03.jpg
https://content.gnoss.ws/carq//imagenes/Documentos/imgsem/6c/6c7a/6c7ae81a-2667-43d9-b673-eedc8124b4ea/f076b683-4d6d-4e4c-a87f-9581449cd9f3.jpg, 0000021148/09_Plantes Tipus Sostre.jpg
https://content.gnoss.ws/carq//imagenes/Documentos/imgsem/6c/6c7a/6c7ae81a-2667-43d9-b673-eedc8124b4ea/b0cee892-d05d-403c-97f2-41f9629f11b6.jpg, 0000021148/10_Detalle fachada.jpg
https://content.gnoss.ws/carq//imagenes/Documentos/imgsem/6c/6c7a/6c7ae81a-2667-43d9-b673-eedc8124b4ea/8312cad3-27fa-4459-8a28-aa8e27a80f78.jpg, 0000021148/croquis3.jpg







