Loading...
El loft no es un piso, seguramente tampoco se ajusta a la idea de casa tal y como se entiende en el mercado inmobiliario.
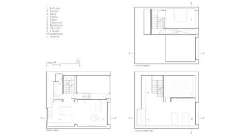
Podría ser una habitación, una oficina, una dependencia estudio, tan solo una concavidad; una puerta, un ámbito grueso que permite salir de forma secreta desde el gigantesco edificio que da a la calle Luis de la Cruz. Lo que sí es seguro es que no podemos hablar de un loft, si no es en relación con el edificio del que depende. Es, por tanto, un ejemplar de “espacio de trabajo doméstico construido en el interior”, a lo largo de las paredes laterales, como una pequeña excavación desamparada que se ha ido insertado en el cuerpo robusto del edificio, ocupando intersticios de una estructura mayor existente, que por su envergadura ofrece cobijo a otra arquitectura menor, que a modo de celda vacía hace habitable su interior, ofreciendo la posibilidad de imaginar nuevos espacios luminosos. El loft se configura en torno a la luz que lo baña, presentando atractivas variaciones lumínicas interiores, y un reconocimiento atento y preciso de las funciones del interior. Mientras que la envolvente oscura exterior lo limita, se desarrolla en el interior la luminosidad caprichosa, ocupando el espacio de forma libre, como un gusano en el interior de una manzana. Se proyecta un loft de tres plantas comunicadas, que se conectan mediante vacíos y una escalera de cristal que introduce la luz hacia lo más profundo.
.
General information
Un gusano en el interior de la manzana
YEAR
Address
C/ Luis de la Cruz, 11
35003 Las Palmas de Gran Canaria - Las Palmas -Las Palmas de Gran Canaria
Latitude: 28.109169487
Longitude: -15.42198709
Construction system
Iterior/ pladur + carpintería de aluminio y vidrio . Exterior / carpintería de aluminio y vidrio traslúcido
Built area
Collaborators
Constantino J. Gonzalvo Ortiz (Ingeniería)
Carlota Ardanaz Petit (Arquitecta)
Simon García. Arqfoto (Fotógrafo)
Luis Guijarro Bergeron (Arquitecto)
Hugo A. Ventura Rodríguez / HUCA arquitectura SLP (Calculo de estructuras)
Information provided by
Romera Arquitectos
Website links
-
Simón García -
Plantas - Romera arquitectos -
Plano de situación - Romera arquitectos -
Simón García -
Simón García -
Simón García
Location
Itineraries
https://content.gnoss.ws/carq/https://content.gnoss.ws/carq//imagenes/Documentos/imgsem/2c/2cc3/2cc3fd94-bd72-4a74-9ae6-6d98393a74cc/6dd1a951-4083-479b-8a98-fcf0d7c5b472.jpg, 0000106781/representativa.jpg
https://content.gnoss.ws/carq/https://content.gnoss.ws/carq//imagenes/Documentos/imgsem/2c/2cc3/2cc3fd94-bd72-4a74-9ae6-6d98393a74cc/7810ee18-056c-408d-bfb1-6c02270d3cc5.jpg, 0000106781/B02.jpg
https://content.gnoss.ws/carq/https://content.gnoss.ws/carq//imagenes/Documentos/imgsem/2c/2cc3/2cc3fd94-bd72-4a74-9ae6-6d98393a74cc/00b994fe-568d-457b-a863-93c051c16cbc.jpg, 0000106781/B03.jpg
https://content.gnoss.ws/carq/https://content.gnoss.ws/carq//imagenes/Documentos/imgsem/2c/2cc3/2cc3fd94-bd72-4a74-9ae6-6d98393a74cc/6857ac51-7db8-495e-b2f6-9eb0d97ec38f.jpg, 0000106781/B04.jpg
https://content.gnoss.ws/carq/https://content.gnoss.ws/carq//imagenes/Documentos/imgsem/2c/2cc3/2cc3fd94-bd72-4a74-9ae6-6d98393a74cc/8196d679-4535-4251-a5c8-3831e2b9e036.jpg, 0000106781/B06.jpg
https://content.gnoss.ws/carq/https://content.gnoss.ws/carq//imagenes/Documentos/imgsem/2c/2cc3/2cc3fd94-bd72-4a74-9ae6-6d98393a74cc/c6ffdc3f-088a-4ac3-aded-f687bdd2eeeb.jpg, 0000106781/B07.jpg
https://content.gnoss.ws/carq/https://content.gnoss.ws/carq//imagenes/Documentos/imgsem/2c/2cc3/2cc3fd94-bd72-4a74-9ae6-6d98393a74cc/683f5501-f637-482f-a52d-411ba938014e.jpg, 0000106781/B08.jpg
https://content.gnoss.ws/carq/https://content.gnoss.ws/carq//imagenes/Documentos/imgsem/2c/2cc3/2cc3fd94-bd72-4a74-9ae6-6d98393a74cc/15d3ce6d-84af-4827-ac71-9d368e43d1fd.jpg, 0000106781/B09.jpg
https://content.gnoss.ws/carq/https://content.gnoss.ws/carq//imagenes/Documentos/imgsem/2c/2cc3/2cc3fd94-bd72-4a74-9ae6-6d98393a74cc/4cc1a4fc-6f5c-4e78-bd10-5b8a39791895.jpg, 0000106781/B10.jpg
https://content.gnoss.ws/carq/https://content.gnoss.ws/carq//imagenes/Documentos/imgsem/2c/2cc3/2cc3fd94-bd72-4a74-9ae6-6d98393a74cc/575ac4e7-145e-4425-8879-3450b795aa2d.jpg, 0000106781/B11.jpg
https://content.gnoss.ws/carq/https://content.gnoss.ws/carq//imagenes/Documentos/imgsem/2c/2cc3/2cc3fd94-bd72-4a74-9ae6-6d98393a74cc/1360d4b0-e6cd-4c0f-afd9-3615de773510.jpg, 0000106781/B12.jpg
https://content.gnoss.ws/carq/https://content.gnoss.ws/carq//imagenes/Documentos/imgsem/2c/2cc3/2cc3fd94-bd72-4a74-9ae6-6d98393a74cc/35695611-b062-4657-9c60-e1f009ee2ac1.jpg, 0000106781/B13.jpg
https://content.gnoss.ws/carq/https://content.gnoss.ws/carq//imagenes/Documentos/imgsem/2c/2cc3/2cc3fd94-bd72-4a74-9ae6-6d98393a74cc/d1682125-68a0-45b2-845d-f1754298d71d.jpg, 0000106781/B14.jpg
https://content.gnoss.ws/carq//imagenes/Documentos/imgsem/2c/2cc3/2cc3fd94-bd72-4a74-9ae6-6d98393a74cc/bc469df0-ae94-4219-ac87-c77fdead5f6a.jpg, 0000106781/A01.jpg
https://content.gnoss.ws/carq//imagenes/Documentos/imgsem/2c/2cc3/2cc3fd94-bd72-4a74-9ae6-6d98393a74cc/e32c9238-337c-4dc7-9c03-68018b1768be.jpg, 0000106781/A02.jpg
https://content.gnoss.ws/carq//imagenes/Documentos/imgsem/2c/2cc3/2cc3fd94-bd72-4a74-9ae6-6d98393a74cc/2304d493-93cf-484f-86fb-376e3b7b9b80.jpg, 0000106781/A03.jpg
https://content.gnoss.ws/carq//imagenes/Documentos/imgsem/2c/2cc3/2cc3fd94-bd72-4a74-9ae6-6d98393a74cc/0ea5f360-c136-4468-bd14-3b74b570a1cb.jpg, 0000106781/A04.jpg







