Loading...
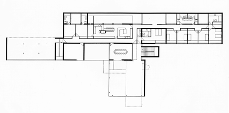
La vivienda se presenta gradualmente; se descubre poco a poco, y siempre fragmentariamente. Tiene un proceso de entrada muy complejo; estoy dispuesto a admitir que quizás sea excesivo, hasta demasiado enfático. Pero ese descubrimiento sucesivo, ascendiendo desde la entrada exterior, nos pareció importante y lo seguimos considerando un acierto.
La intimidad de la casa, su privacidad, viene determinada por la imposibilidad de reconocer funciones específicas en el apilamiento de prismas, en la macla de volúmenes. El visitante no puede identificar dormitorios, baños o estancias. Solo un porche abierto al jardín invita a dejar los coches.
General information
Vivienda unifamiliar en Las Matas
YEAR
Option to visit
Address
c/ Cabo Finisterre,
28290 Las Matas - Madrid
Latitude: 40.549038806
Longitude: -3.923174982
Classification
Construction system
Revoco cemento oxidado
Built area
Collaborators
Involved architectural firms
Information provided by
Vicens + Ramos, Arquitectos
II BEAU
-
Vicens + Ramos -
Planta primera - Vicens + Ramos -
Planta baja - Vicens + Ramos -
II BEAU -
Vicens + Ramos -
II BEAU
Location
https://content.gnoss.ws/carq/https://content.gnoss.ws/carq//imagenes/Documentos/imgsem/ed/ed3a/ed3a527f-a506-47d9-932b-99c2c7ecacd3/7452a530-2f66-4c0c-8280-47f9b9fde84f.jpg, 0000005076/(4)-1.jpg
https://content.gnoss.ws/carq/https://content.gnoss.ws/carq//imagenes/Documentos/imgsem/ed/ed3a/ed3a527f-a506-47d9-932b-99c2c7ecacd3/67449d34-4056-436d-97bd-a6d8448df61a.jpg, 0000005076/vivienda las matas 2.jpg
https://content.gnoss.ws/carq/https://content.gnoss.ws/carq//imagenes/Documentos/imgsem/ed/ed3a/ed3a527f-a506-47d9-932b-99c2c7ecacd3/2b4bb56d-a33f-4e67-8ab1-4265d7920862.jpg, 0000005076/vivienda las matas 3.jpg
https://content.gnoss.ws/carq/https://content.gnoss.ws/carq//imagenes/Documentos/imgsem/ed/ed3a/ed3a527f-a506-47d9-932b-99c2c7ecacd3/6572892a-5624-4ea5-8b98-cfc4ecddcfff.jpg, 0000005076/(4)-2.jpg
https://content.gnoss.ws/carq/https://content.gnoss.ws/carq//imagenes/Documentos/imgsem/ed/ed3a/ed3a527f-a506-47d9-932b-99c2c7ecacd3/21ad09f3-c2f8-42ea-8385-aead8c0b0498.jpg, 0000005076/(4)-4.jpg
https://content.gnoss.ws/carq/https://content.gnoss.ws/carq//imagenes/Documentos/imgsem/ed/ed3a/ed3a527f-a506-47d9-932b-99c2c7ecacd3/3512c36a-631f-49d9-99ab-93d788044820.jpg, 0000005076/(5)-5.jpg
https://content.gnoss.ws/carq/https://content.gnoss.ws/carq//imagenes/Documentos/imgsem/ed/ed3a/ed3a527f-a506-47d9-932b-99c2c7ecacd3/058c92bf-6991-4de2-8073-f04c4393f8d3.jpg, 0000005076/interior.jpg
https://content.gnoss.ws/carq//imagenes/Documentos/imgsem/ed/ed3a/ed3a527f-a506-47d9-932b-99c2c7ecacd3/8a84f1f2-30e4-4f83-978d-85647f4b4445.jpg, 0000005076/PLANTA BAJA.jpg
https://content.gnoss.ws/carq//imagenes/Documentos/imgsem/ed/ed3a/ed3a527f-a506-47d9-932b-99c2c7ecacd3/27ff7eb3-4a7d-4af9-bd1f-5dbd85f22b0c.jpg, 0000005076/PLANTA ALTA.jpg







