Loading...
La parcela se encuentra en una ladera con pendiente al suroeste que se abre visualmente a la boca de la ría de Pontevedra. Es un paisaje de prados y viñas salpicado de viviendas unifamiliares todavía en una proporción donde estas solo puntean las masas de vegetación. El terreno es de pequeña dimensión, sus linderos son dos carreteras y debido a su situación en ladera es posible si nos situamos en la cota inferior o superior de la parcela reducir dramáticamente el alcance de nuestro entorno o proyectarlo hasta la línea del horizonte desvaída del mar. Por otro lado, el carácter turístico durante dos meses al año de la zona hace que la exposición al entorno lejano de la parcela haya que controlarlo o matizarlo durante esta época. El proyecto parte de explotar al máximo las condiciones de la parcela y su entorno y generar un mecanismo capaz de múltiples flexibilidades, de uso, de carácter, de presencia, de exposición, de respuestas térmicas y ambientales, etc.
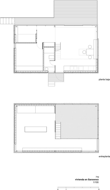
La clave está en la definición de un plano que funciona a la vez como suelo y como techo del espacio habitable siendo este de carácter muy diverso según su situación en uno u otro lado. Estos espacios habitables se construyen de acuerdo al carácter del uso previsible, y no hablamos aquí de función sino de modo, carácter que está inevitablemente afectado por las condiciones climáticas y el incremento de tránsito por las carreteras durante una parte del año.
No se entiende la vivienda, pues, de modo restringido sino más bien como la suma de espacios exteriores, intermedios y cerrados. El volumen cerrado se sitúa en cota superior ya que lógicamente será el centro de la vida durante los meses no estivales y se entiende como un espacio único proyectado y volcado hacia el entorno. Se cierra con una fachada multicapa resuelta al exterior con un único material, policarbonato ondulado, que se dobla al interior de modo variable según el carácter predominante de la porción de volumen que envuelve y su orientación. En la orientación norte la fachada se compone de termoarcilla revestida con perlyescayola, aislante proyectado de alta densidad, y el forro de policarbonato. En las fachadas sur y poniente el policarbonato ondulado se trasdosa de modo ventilado con policarbonato celular, y es sustituido por vidrio en las partes practicables y que abren al paisaje el interior. La cubierta es solamente aislante y se resuelve con doble uralita con poliestireno intermedio.
El plano que sustenta el volumen cerrado se prolonga formando un entarimado que sirve de espacio intermedio y construye bajo él un lugar donde se hará gran parte la actividad de verano ya que estará a resguardo de los calores estivales, tiene una amplia dimensión capaz de más usuarios, y al situarse en la cota más baja de la parcela incrementa su grado de intimidad. La parte de la fachada que define la terraza es precisamente la transparente y practicable de modo que permita sumar espacios.
General information
Vivienda unifamiliar en Sanxenxo
YEAR
Option to visit
Address
c/ Sanxenxo, 29
36969 Sanxenxo - Pontevedra
Latitude: 42.406610208
Longitude: -8.803618695
Classification
Construction system
Estructura metálica sobre losa flotante de hormigón, con envolvente multicapa de termoarcilla y policarbonato celular, o doble capa de policarbonato.
Built area
Involved architectural firms
Information provided by
Irisarri + Piñera
Website links
-
Irisarri + Piñera -
Irisarri + Piñera -
Terraza - Juan Rodríguez
Location
Itineraries
https://content.gnoss.ws/carq/https://content.gnoss.ws/carq//imagenes/Documentos/imgsem/75/75b9/75b9fa65-af0e-4de3-b5ba-899605a96563/52f7674b-3c5a-4709-b65a-aa4a36a736a2.jpg, 0000014335/casa en sanxenxo.jpg
https://content.gnoss.ws/carq/https://content.gnoss.ws/carq//imagenes/Documentos/imgsem/75/75b9/75b9fa65-af0e-4de3-b5ba-899605a96563/31d3e2df-4192-4016-b743-d8b9efd9909a.jpg, 0000014335/I.P. 0022.jpg
https://content.gnoss.ws/carq/https://content.gnoss.ws/carq//imagenes/Documentos/imgsem/75/75b9/75b9fa65-af0e-4de3-b5ba-899605a96563/cc5e34a3-5f8b-4304-b696-f5a6b2e0f4f7.jpg, 0000014335/I.P. 0058.jpg
https://content.gnoss.ws/carq/https://content.gnoss.ws/carq//imagenes/Documentos/imgsem/75/75b9/75b9fa65-af0e-4de3-b5ba-899605a96563/0161bfbb-0530-4410-b76b-6da304b8969b.jpg, 0000014335/I.P. 0054.jpg
https://content.gnoss.ws/carq/https://content.gnoss.ws/carq//imagenes/Documentos/imgsem/75/75b9/75b9fa65-af0e-4de3-b5ba-899605a96563/16a0511a-a53c-40f0-b110-5561258272ef.jpg, 0000014335/I.P. 0064.jpg
https://content.gnoss.ws/carq/https://content.gnoss.ws/carq//imagenes/Documentos/imgsem/75/75b9/75b9fa65-af0e-4de3-b5ba-899605a96563/e3dbd03d-5638-4d71-b10f-34cfd02f3d0d.jpg, 0000014335/I.P. 0068.jpg
https://content.gnoss.ws/carq/https://content.gnoss.ws/carq//imagenes/Documentos/imgsem/75/75b9/75b9fa65-af0e-4de3-b5ba-899605a96563/41b97b82-327b-4f7a-9195-fd3efddc8ade.jpg, 0000014335/I.P. 0076.jpg
https://content.gnoss.ws/carq/https://content.gnoss.ws/carq//imagenes/Documentos/imgsem/75/75b9/75b9fa65-af0e-4de3-b5ba-899605a96563/8cdd52ad-676f-4e8c-8fd2-54e2e8ffb1bb.jpg, 0000014335/I.P. 0074.jpg
https://content.gnoss.ws/carq/https://content.gnoss.ws/carq//imagenes/Documentos/imgsem/75/75b9/75b9fa65-af0e-4de3-b5ba-899605a96563/56e5e64e-aecc-4f98-af96-ae051ec02d7b.jpg, 0000014335/I.P. 0089.jpg
https://content.gnoss.ws/carq/https://content.gnoss.ws/carq//imagenes/Documentos/imgsem/75/75b9/75b9fa65-af0e-4de3-b5ba-899605a96563/17b59107-b2b0-42f8-a596-2df5824fe6fb.jpg, 0000014335/I.P. 0098.jpg
https://content.gnoss.ws/carq/https://content.gnoss.ws/carq//imagenes/Documentos/imgsem/75/75b9/75b9fa65-af0e-4de3-b5ba-899605a96563/f58056bd-ae75-472c-8f6e-908cc5d9d98a.jpg, 0000014335/I.P. 0031.jpg
https://content.gnoss.ws/carq//imagenes/Documentos/imgsem/75/75b9/75b9fa65-af0e-4de3-b5ba-899605a96563/db6480d7-26f1-4957-b2ee-9a626b4dfc99.jpg, 0000014335/situ.jpg
https://content.gnoss.ws/carq//imagenes/Documentos/imgsem/75/75b9/75b9fa65-af0e-4de3-b5ba-899605a96563/a3c5eb5d-d473-48e4-b4eb-f88c62186626.jpg, 0000014335/plantas 1_100.jpg
https://content.gnoss.ws/carq//imagenes/Documentos/imgsem/75/75b9/75b9fa65-af0e-4de3-b5ba-899605a96563/7fbc2d0a-585e-461b-8bc3-cb1b1dc14328.jpg, 0000014335/alzado este.jpg
https://content.gnoss.ws/carq//imagenes/Documentos/imgsem/75/75b9/75b9fa65-af0e-4de3-b5ba-899605a96563/d872c077-0a2f-40f4-8ba0-6286fe4b0aaf.jpg, 0000014335/alzado oeste.jpg
https://content.gnoss.ws/carq//imagenes/Documentos/imgsem/75/75b9/75b9fa65-af0e-4de3-b5ba-899605a96563/58b023f7-4225-4aeb-b040-604107c016f2.jpg, 0000014335/alzado norte.jpg
https://content.gnoss.ws/carq//imagenes/Documentos/imgsem/75/75b9/75b9fa65-af0e-4de3-b5ba-899605a96563/92d07ae1-f9c2-41dd-a1b2-0bf6ebe7ae86.jpg, 0000014335/detalles.jpg




