Loading...
Sestao es una localidad ubicada en la margen izquierda próxima a la desembocadura de la ría de Bilbao: un pueblo marcado por la presencia de industria pesada, astillero La Naval y la actual acería de Arcelor Mittal heredera de Altos Hornos de Vizcaya. En ese contexto está el edificio de las 15 viviendas sociales.
La ocupación de la plataforma de ribera por parte del tejido industrial se completa en una orografía compleja con la extensión del tejido urbano desde el mismo borde industrial ladera arriba. En la zona más próxima a la industria conocida como Txabarri se entremezclan construcciones de vivienda obrera de finales del XIX y comienzos del XX con bloques del desarrollismo de los 70 y 80. Este área es fruto de un programa de regeneración urbana.
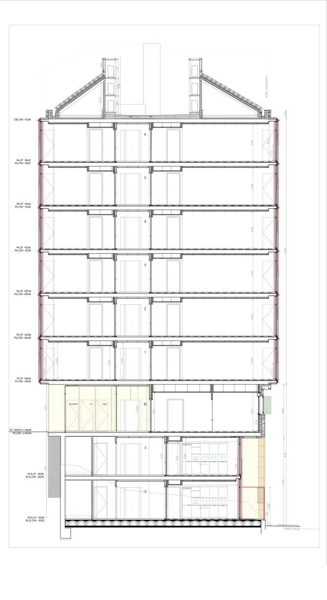
Una parcela pequeña medianera a un bloque de ocho alturas, con frente a la calle en su alienación suroeste, frente opuesto al interior de manzana y tercera fachada a un paso peatonal de nueva creación para dar acceso al centro de manzana reurbanizado recuperado como espacio público. La parcela forma parte de la ladera urbana de fuerte pendiente que mira a la ría, de manera que entre sus fachadas opuestas hay dos plantas de diferencia.
Las ordenanzas del PERI establecen ciertas limitaciones para el bloque:
— Zócalo de piedra natural
— Volumen alto de colores claros
— Prohibición de balcones en plantas altas
— Obligatoriedad de miradores
Dado la la condición del sitio —que las plantas bajas y dos inferiores bajo rasante emergen en fachada opuesta hacia el interior de manzana—, propusimos ubicar vivienda en todas las plantas. Las viviendas se diseñan conforme a las ordenanzas de diseño de VPO de 2009 (anterior al vigente decreto de habitabilidad). Los servicios e instalaciones se agrupan en torno al núcleo vertical. No existen colindancias entre unidades.
Las fachadas frontales se resuelven mediante un único mirador mientras que la fachada al callejón lateral es más aséptica, con huecos seriados. Las fachadas a la calle y a la manzana son iguales, sólo cambia el zócalo que hace contacto con el suelo.
Para articular el volumen alto y el zócalo compositivamente se introduce una línea intermedia que se corresponde a la planta baja y que se extiende en vertical en el frente de escalera. Las seis plantas altas son iguales. La planta baja funciona como intermedio entre el fuste del edificio y el zócalo. En el zócalo se repiten dos plantas iguales con trasteros contra el terreno y viviendas en el frente abierto.
Se adoptó como solución de proyecto la versión más ‘clásica’ de mirador presente en el sitio. En la manzana en la que se inserta el edificio existen edificios con grandes miradores de madera que se extienden a gran superficie de fachada. Esta solución de mirador único, además de cualidades compositivas para el alzado, permite aprovechar óptimamente la mejor cualidad de las plantas, que es su situación de dominio visual sobre el entorno.
El mayor esfuerzo de proyecto se concentra en el diseño del mirador: esbelto, con alto grado de superficie acristalada, nervado, con alto grado de practicidad. Un estudio exhaustivo de la perfilería, la modulación, la introducción del color y la superposición de elementos solucionan las cuestiones no sólo técnicas sino también estéticas de este elemento protagonista de la fachada: perfilería de aluminio con cambio de color de junquillos, substructura exterior para fijación de protecciones, toldos y barandillas al exterior, combinación de vidrios transparentes y rayados, cortinas oscurecedoras al interior
La modulación de las carpinterías coincide con las particiones interiores. Esto hace que el mirador funcione a modo de muro cortina en el frente de las estancias. O como un balcón. El alto grado de aperturas del que se dota al mirador quiere resolver la relación de la casa con el exterior. La casa se abre ampliamente a la visión panorámica del entorno. Las estancias están dimensionadas al mínimo normativo.
La presencia del mirador junto con la inserción de puertas correderas en el encuentro de divisiones interiores y fachada expande la percepción del espacio. La conexión de las estancias de programa ubicadas en fachada mediante la puerta corredera dota de amplitud al espacio. Y en el caso de la unidad grande, facilita el uso flexible de la estancia/dormitorio central e introduce la circulación en anillo en la vivienda.
Si bien las viviendas están compartimentadas, la ubicación de instalaciones y estructura en sus vértices extremos, hace que sean reconfigurables en un futuro.
En termino generales, los criterios de composición del volumen son muy clásicos. Más allá de respetar las cuestiones de color y ciertos materiales como la piedra natural en zócalo, se busca que la composición en sí enlace con el carácter de los edificios preexistentes. Sin caer en el pastiche. Los materiales empleados son sencillos. Propios de la definición de arquitectura residencial pública.
General information
Viviendas sociales en Sestao
YEAR
Option to visit
Address
C/ Orixe, 6
48510 Trapagaran - Bizkaia -Trapagaran
Latitude: 43.30386
Longitude: -3.041285
Classification
Built area
Involved architectural firms
Information provided by
acha zaballa
Location
https://content.gnoss.ws/carq/https://content.gnoss.ws/carq//imagenes/Documentos/imgsem/c5/c573/c573e533-811c-4353-9f99-3490787c909f/135d37a2-0577-4748-bf13-8666f026d24a.jpg, 0000097797/Sestao_36 copia.jpg
https://content.gnoss.ws/carq/https://content.gnoss.ws/carq//imagenes/Documentos/imgsem/c5/c573/c573e533-811c-4353-9f99-3490787c909f/f6429d94-d44f-4975-ba8f-b338e3d8fa87.jpg, 0000097797/Sestao__34 copia.jpg
https://content.gnoss.ws/carq/https://content.gnoss.ws/carq//imagenes/Documentos/imgsem/c5/c573/c573e533-811c-4353-9f99-3490787c909f/7dc1ee53-edb4-4f45-b9e8-c4db6c647a11.jpg, 0000097797/Sestao_01.jpg
https://content.gnoss.ws/carq/https://content.gnoss.ws/carq//imagenes/Documentos/imgsem/c5/c573/c573e533-811c-4353-9f99-3490787c909f/5e928fef-d17d-4af0-b797-1cd68f6e539c.jpg, 0000097797/Sestao_02.jpg
https://content.gnoss.ws/carq/https://content.gnoss.ws/carq//imagenes/Documentos/imgsem/c5/c573/c573e533-811c-4353-9f99-3490787c909f/937efe43-f5f1-4525-812d-3a5701607821.jpg, 0000097797/Sestao_05.jpg
https://content.gnoss.ws/carq/https://content.gnoss.ws/carq//imagenes/Documentos/imgsem/c5/c573/c573e533-811c-4353-9f99-3490787c909f/f2798222-ac85-4a47-8683-6f7ee5f7bdb6.jpg, 0000097797/Sestao_07.jpg
https://content.gnoss.ws/carq/https://content.gnoss.ws/carq//imagenes/Documentos/imgsem/c5/c573/c573e533-811c-4353-9f99-3490787c909f/53b2c879-f099-4d16-911f-239f393262e4.jpg, 0000097797/Sestao_08.jpg
https://content.gnoss.ws/carq/https://content.gnoss.ws/carq//imagenes/Documentos/imgsem/c5/c573/c573e533-811c-4353-9f99-3490787c909f/1aa97595-9dd6-4e58-8930-c90109a976a7.jpg, 0000097797/Sestao_11.jpg
https://content.gnoss.ws/carq/https://content.gnoss.ws/carq//imagenes/Documentos/imgsem/c5/c573/c573e533-811c-4353-9f99-3490787c909f/c1f7de04-38e6-489d-bdba-928e2bea003b.jpg, 0000097797/Sestao_10.jpg
https://content.gnoss.ws/carq/https://content.gnoss.ws/carq//imagenes/Documentos/imgsem/c5/c573/c573e533-811c-4353-9f99-3490787c909f/b3695bdc-e1fc-46ed-ac52-f0278a0d4af0.jpg, 0000097797/Sestao_14.jpg
https://content.gnoss.ws/carq/https://content.gnoss.ws/carq//imagenes/Documentos/imgsem/c5/c573/c573e533-811c-4353-9f99-3490787c909f/936da75c-384a-4207-b5ac-4f27c079b41c.jpg, 0000097797/Sestao_17.jpg
https://content.gnoss.ws/carq/https://content.gnoss.ws/carq//imagenes/Documentos/imgsem/c5/c573/c573e533-811c-4353-9f99-3490787c909f/67faeafa-9fd3-4698-a378-156e835b0b59.jpg, 0000097797/Sestao_20.jpg
https://content.gnoss.ws/carq/https://content.gnoss.ws/carq//imagenes/Documentos/imgsem/c5/c573/c573e533-811c-4353-9f99-3490787c909f/15f881e2-851f-4905-af67-56a770c2d0aa.jpg, 0000097797/Sestao_21.jpg
https://content.gnoss.ws/carq/https://content.gnoss.ws/carq//imagenes/Documentos/imgsem/c5/c573/c573e533-811c-4353-9f99-3490787c909f/fa0565fa-c147-49a7-93f3-45bd804624ea.jpg, 0000097797/Sestao_22.jpg
https://content.gnoss.ws/carq/https://content.gnoss.ws/carq//imagenes/Documentos/imgsem/c5/c573/c573e533-811c-4353-9f99-3490787c909f/e4b776cf-b460-40d7-ade5-228e0d92a70b.jpg, 0000097797/Sestao_24.jpg
https://content.gnoss.ws/carq/https://content.gnoss.ws/carq//imagenes/Documentos/imgsem/c5/c573/c573e533-811c-4353-9f99-3490787c909f/deeb4bad-e657-4e79-8902-4895828c92b3.jpg, 0000097797/Sestao_28.jpg
https://content.gnoss.ws/carq/https://content.gnoss.ws/carq//imagenes/Documentos/imgsem/c5/c573/c573e533-811c-4353-9f99-3490787c909f/f9bdee1c-ea13-45e0-9e01-85bd075faaed.jpg, 0000097797/Sestao_27.jpg
https://content.gnoss.ws/carq//imagenes/Documentos/imgsem/c5/c573/c573e533-811c-4353-9f99-3490787c909f/7ce4df25-0012-4019-a317-0bc2ab0bb0b6.jpg, 0000097797/sestaoseccion1.jpg
https://content.gnoss.ws/carq//imagenes/Documentos/imgsem/c5/c573/c573e533-811c-4353-9f99-3490787c909f/dfc1227c-1a59-4b02-8082-f63befefbe35.jpg, 0000097797/sestaodetalle.jpg
https://content.gnoss.ws/carq//imagenes/Documentos/imgsem/c5/c573/c573e533-811c-4353-9f99-3490787c909f/cacf4c4e-fbbb-46e4-a34d-179dc7e51131.jpg, 0000097797/sestaoseccion2.jpg
https://content.gnoss.ws/carq//imagenes/Documentos/imgsem/c5/c573/c573e533-811c-4353-9f99-3490787c909f/fd40182a-5a5a-4aa9-bd68-9953b2e4d0b8.jpg, 0000097797/sestaovista.jpg
https://content.gnoss.ws/carq//imagenes/Documentos/imgsem/c5/c573/c573e533-811c-4353-9f99-3490787c909f/fc037d8b-6b5a-4126-bd2d-c0bba1bdb7b0.jpg, 0000097797/sestaoalzado3.jpg
https://content.gnoss.ws/carq//imagenes/Documentos/imgsem/c5/c573/c573e533-811c-4353-9f99-3490787c909f/4c3d3d72-e030-40ed-b834-60c0fc3c5109.jpg, 0000097797/sestaoalzado2.jpg
https://content.gnoss.ws/carq//imagenes/Documentos/imgsem/c5/c573/c573e533-811c-4353-9f99-3490787c909f/6314230f-6ec3-421d-8ddf-129e012115ab.jpg, 0000097797/sestaoplantatipo.jpg
https://content.gnoss.ws/carq//imagenes/Documentos/imgsem/c5/c573/c573e533-811c-4353-9f99-3490787c909f/60aa3dc3-092d-4e42-a42d-709381e100d8.jpg, 0000097797/sestaosit.jpg
https://content.gnoss.ws/carq//imagenes/Documentos/imgsem/c5/c573/c573e533-811c-4353-9f99-3490787c909f/15b76c8c-ffbd-469f-afab-9015fc1cb91a.jpg, 0000097797/sestaoseccion3.jpg



