Cargando...
Itinerario
Tres edificios de vivienda colectiva, todavía vividos en la actualidad, nos invitan a recorrer la respuesta española al proceso de modernización que sacudió la arquitectura europea durante las décadas de 1920 y 1930. En València, la Finca Roja se levanta rotundamente sobre el trazado decimonónico del ensanche de la ciudad, respetando con exactitud las ordenanzas y alineaciones correspondientes. Su lenguaje y materialidad de ladrillo, vinculadas a la holandesa “escuela de Ámsterdam”, conectaron con la tradición más reciente un proyecto que escondía dos aspectos transformadores: un esqueleto de hormigón armado y la voluntad de generar una comunidad utópica concentrada alrededor de un jardín que recogía comercios y otros usos comunitarios.
También construida en ladrillo, la madrileña Casa de las Flores optó por romper con el trazado marcado en las ordenanzas municipales para abrir a la ciudad su jardín interior y, también, para dotar de luz y ventilación natural a todas las viviendas bajo los principios de higiene y salubridad que soportaron la expansión de la arquitectura moderna. Todas las viviendas, además, se destinaron al alquiler, ofreciendo una gran variedad tipológica que se reflejó en 18 niveles distintos de renta.
Itinerario comisariado por
Lluis Juan Liñán
Ministerio de Vivienda y Agenda Urbana
Medios de transporte
Cuatro años más tarde, la Casa Bloc de Barcelona acabaría de completar este proceso de ruptura entre edificio y trazado llevando al extremo los preceptos de la modernidad europea. Separada del suelo y de los límites de su parcela, esta “casa” pretendía ser también una nueva ciudad: una ciudad abierta y atravesada por espacios verdes, hecha de pequeñas comunidades que combinaban el habitar con muchos otros servicios, como una biblioteca, una guardería o un club social. Una ciudad compuesta de edificios que desplegaban las últimas técnicas constructivas para proponer una nueva imagen urbana, austera e internacionalista.
Proyectada por el GATCPAC (Grupo de Arquitectos y Técnicos Catalanes para el Progreso de la Arquitectura Contemporánea), la Casa Bloc revela una serie de principios que, desde un punto de vista técnico, programático y estético encontrarían otras manifestaciones más diluidas a lo largo y ancho del país.
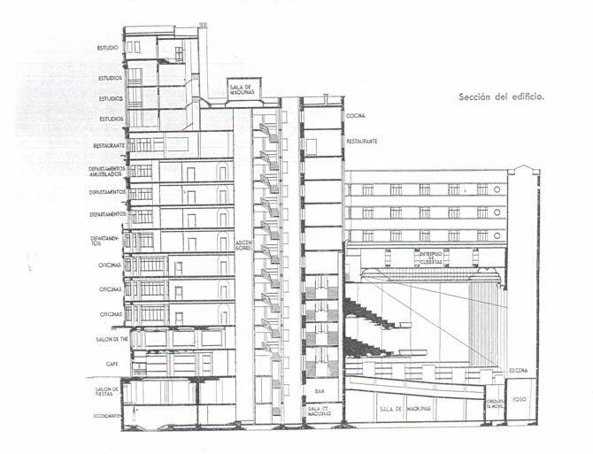
En Madrid, el Cine Barceló y el Edificio Carrión (Capitol) perviven todavía como proyectos paradigmáticos en su voluntad de condensar las actividades que alimentan la vida metropolitana. Así, si el segundo combinaba hoteles, comercios, apartamentos y oficinas en un único volumen de influencias expresionistas, el primero ofrecía un catálogo completo de salas para el cine y la celebración, incluida una al aire libre en su azotea.
Por su parte, el uso de los nuevos materiales que soportaron el desarrollo del lenguaje moderno se refleja hoy en dos construcciones de muy distinta envergadura: el pequeño Quiosco de música y bar en Haro y el Mercado de Abastos de Algeciras. Estas obras nos hablan de las capacidades estructurales y expresivas del hormigón armado con acero, resolviendo con unos pocos centímetros de espesor espacios que, en el caso del mercado, alcanzan los 42 metros de longitud.
No obstante, la imagen más penetrante que traería el uso de estos materiales no procedería de estos alardes estructurales, sino de una estética de la ligereza y la simplificación que quedaría impresa en edificaciones de todo signo.
Las superficies planas pintadas, los volúmenes simples, las ventanas horizontales o los detalles precisos que nos muestran los dos últimos edificios de este itinerario –la actual Fundación Ortega y Gasset en Madrid y el Dispensario Central Antituberculoso de Barcelona– tendrían en España un recorrido más corto que en otros países, en tanto su despliegue se asoció en esta década a un proyecto de renovación social y política. Eso no significa que el racionalismo y la modernidad se detuviesen con el estallido de la Guerra Civil, sino que su continuidad se produjo de manera encubierta y alejada de la arquitectura oficial de los primeros años del franquismo. Así, tendría que pasar una década para que los principios de la modernidad, depurados de una ideología reformista, volviesen a alimentar el desarrollo de la arquitectura española desde las administraciones públicas. En ese sentido, los edificios que nos acompañan en este itinerario dan forma a una pequeña constelación que nos puede servir de guía para entender gran parte de las obras que se construirían en España en las décadas que siguieron.



