Cargando...
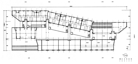
Los dos edificios situados en los lados más cortos y opuestos del rectángulo del solar deben configurar, con sus fachadas, un espacio público confortable, alrededor de una antigua masía existente y su entorno rústico. La forma quebrada de las fachadas interiores de los dos edificios contribuye a la mejor definición del volumen urbano central. Las fachadas exteriores dan frente a las calles y se componen paralelas a sus ejes, aun cuando se retranqueen para singularizar la entrada. Cada uno de los dos edificios se desdobla, pues, en dos bloques, en cuyo interior se configura un gran patio con todos los accesos a las viviendas.
Para alcanzar el mejor diseño con gestos arquitectónicos mínimos, se componen los planos paralelos o quebrados de las fachadas con un “tejido continuo” cuyo dibujo es el conjunto de las aberturas según un tipo único, de generosas dimensiones y rigurosamente ordenado. La calidad y despiece de los materiales y la incidencia de la luz dan valor y dirección a estos lienzos geométricos de las fachadas. Los testeros de los bloques, prácticamente ciegos, se componen con una geometría que remite a las fachadas principales.
Información general
200 viviendas en Mollet del Vallès
AÑO
Opción de visitas
Dirección
c/ de Francesc Layret, 46
08100 Mollet del Valles - Barcelona
Latitud: 41.546237936
Longitud: 2.2041393526
Clasificación
Materiales construcción
Superficie construida
Información aportada por
Garcés de Seta Bonet
-
Garcés de Seta Bonet -
III BEAU
Ubicación
https://content.gnoss.ws/carq/https://content.gnoss.ws/carq//imagenes/Documentos/imgsem/ea/ea75/ea750e6a-6248-4813-85b0-caf655b21cd5/6ad66669-1df9-46eb-8508-d4052fc72ae2.jpg, 0000004216/200 viviendas 1.jpg
https://content.gnoss.ws/carq/https://content.gnoss.ws/carq//imagenes/Documentos/imgsem/ea/ea75/ea750e6a-6248-4813-85b0-caf655b21cd5/2ad760c4-198d-43c0-9585-6f3289153c67.jpg, 0000004216/200 viviendas 2.jpg
https://content.gnoss.ws/carq/https://content.gnoss.ws/carq//imagenes/Documentos/imgsem/ea/ea75/ea750e6a-6248-4813-85b0-caf655b21cd5/6bcdbdde-a899-45aa-abfb-6da8778d4f9a.jpg, 0000004216/200 viviendas 3.jpg
https://content.gnoss.ws/carq//imagenes/Documentos/imgsem/ea/ea75/ea750e6a-6248-4813-85b0-caf655b21cd5/bc110892-d752-4b14-a619-b2b6a187add1.jpg, 0000004216/1985_habitatges_mollet_00.jpg
https://content.gnoss.ws/carq//imagenes/Documentos/imgsem/ea/ea75/ea750e6a-6248-4813-85b0-caf655b21cd5/e82bf411-561f-4a32-9db1-eb7aa63bf7b2.jpg, 0000004216/1985_habitatges_mollet_08.jpg
https://content.gnoss.ws/carq//imagenes/Documentos/imgsem/ea/ea75/ea750e6a-6248-4813-85b0-caf655b21cd5/9da23c50-57ab-45a4-8e5e-2955974d0029.jpg, 0000004216/1985_habitatges_mollet_09.jpg




