Cargando...
El concurso, y el posterior proyecto, proponen significativos cambios con respecto al modo en el que se entienden normalmente las viviendas sociales actuales. Como inicio, partiendo de los condicionantes urbanísticos, se conquista el solar mediante una abstracción sencilla y directa: el volumen límite, más allá de los habituales y estrictos planteamientos “en planta” que sopesan únicamente el “área capaz”.
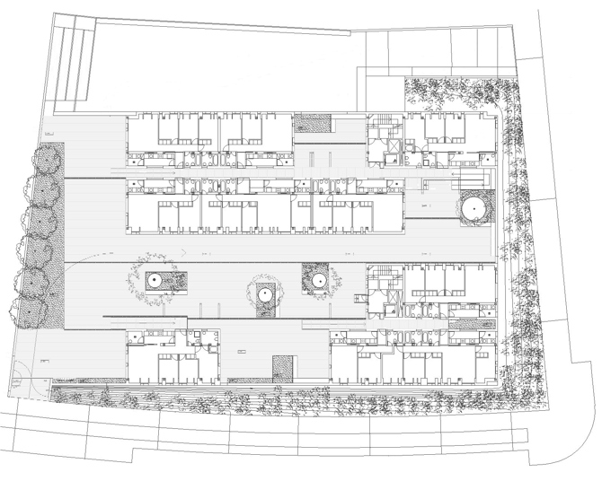
Se plantea un volumen, un paralelepípedo capaz que, desde sus límites, es vaciado estratégicamente en busca de posibilitar el programa, la superficie edificable, el soleamiento y las orientaciones; en definitiva, los planos útiles. Y persiguiendo el carácter adecuado proponemos un espacio de espacios. Una sociedad de prismas verticales que, en su disposición, facilita las jerárquicas relaciones (públicas y privadas) de un edificio residencial que, por su localización, necesita abrirse al cielo y al sol, pero que, también, demanda protegerse de las calles con sus envolventes. Las piezas lineales resultantes alternan paralelamente bandas funcionales de modo que, de nuevo, como en el conjunto edificado, se vacían centros de estancia y relación.
Buscamos la flexibilidad del planteamiento origen. Creamos un sistema de viviendas más que una agregación sistemática de rígidas unidades tipo. Este sistema posibilita una serie, una pauta. Y a partir de él es inmediato disponer tantas unidades y tipos como demande, en definitiva, la propiedad. Se evita así el habitual problema del cumplimiento de un programa encorsetado. Las casas seriadas son, esencialmente, extensos salones que se compartimentan según las verdaderas necesidades. Grandes habitaciones con los espacios de servicio como contorno y abrigo. Su principal característica es su intencionada métrica.
Dimensionamos una estancia central, una nave, que invita naturalmente a la fragmentación que debe existir, y no al revés. Los espacios así dispuestos provocan confortable intimidad, no solo por su aislamiento perimetral sino, también, por su capacidad de personalización. Los usuarios podrán disponer con facilidad los tabiques, los biombos transversales, allí donde les lleve la necesidad. De igual modo, los perímetros longitudinales, formados por muros doblados que encapsulan los habitáculos de servicio (cocinas, tendederos, baños, almacenamientos) podrán así mismo, por su sistemática, alterarse según sea conveniente. Se trata de un sencillo sistema de organización, de localización funcional, más que un ensayo de juego con las tipologías más habituales. Un sistema que permite con facilidad la alteración puntual sin que esta afecte al resultado general.
De este modo, las fachadas son (por fin) verdadera y eficazmente independientes de las plantas. Los huecos son solo de dos tipos, y los disponemos básicos pero especializados. Un vidrio fijo, unitario y vertical para mirar e iluminar con el horizonte como parteluz, y, a su lado, una pequeña y esbelta ventana practicable que ajunquilla, esta vez, una piedra, porque lo que pretende es tan solo ventilar mediante un flujo laminar controlado. Por tanto, las obligadas persianas pueden ir al interior. El resultado será un lienzo cambiante, no inmediato, que de ningún modo se verá afectado por el particular uso de cada vecino. Cada personalización vendrá únicamente de vidrios para dentro.
Pero este sistema no solo tiene ventajas funcionales o compositivas, también supone una eficaz solución pasiva al aislamiento térmico y acústico de las viviendas, lo que, a la postre, provocará un positivo ahorro de energía. Las bandas funcionales de muros habitados por elementos servidores (tecnológicos), colocados de manera centrífuga en el perímetro exterior de cada unidad, suponen un efectivo colchón de autorregulación y adaptación que permitirá, a su vez, la adecuada ventilación por oposición de fachadas.
La elección de los materiales busca la cualidad oportuna. Así, el aparcamiento, en el terroso plano de apoyo del prisma original –imaginando el paralelepípedo capaz, no podemos evitar hacerlo descansar sobre el terreno transformado, sobre la tierra hollada por el peso de tan descomunal masa– se pavimenta mediante una gravilla menuda, de modo que los coches suenen despacio por entre los árboles. Árboles que ofrecen sus verdes copas a nivel de la plataforma lúdica y tapiada de la planta baja. Las fachadas exteriores se plementan de vistoso ladrillo, de aparejo doble, haciendo resonar el eco de la arquitectura residencial madrileña, oscuro en los planos límites exteriores, claro en los interiores, lo que fuerza la luminosidad interna, la idea de cáscara protectora frente a la indeterminación exterior.
En las viviendas, en el interior vividero, el plano del suelo es de madera, con parquet vibrante de tablillas aprovechadas en vertical; duradero, económico y cálido. Las bandas de servicio serán pétreas o cerámicas, invulnerables a la humedad y a los cambios climáticos.
Información general
60 viviendas de protección pública de la EMV
AÑO
Opción de visitas
Dirección
c/ Arte Rupestre del Mediterráneo, 26
28054 Carabanchel - Madrid
Latitud: 40.362731469
Longitud: -3.763436594
Clasificación
Materiales construcción
Superficie construida
Estudios de arquitectura participantes
Información aportada por
IX BEAU
HAND architecture
Ubicación
https://content.gnoss.ws/carq/https://content.gnoss.ws/carq//imagenes/Documentos/imgsem/df/df35/df354871-3cfa-446f-844e-60b3b1753a39/a3ba7fe2-4025-4951-8204-722d513c8ddd.jpg, 0000014355/60 VPP de la EMV 2 .jpg
https://content.gnoss.ws/carq/https://content.gnoss.ws/carq//imagenes/Documentos/imgsem/df/df35/df354871-3cfa-446f-844e-60b3b1753a39/8150a473-8941-475b-b668-3e05c101a50f.jpg, 0000014355/60 VPP de la EMV 1 .jpg
https://content.gnoss.ws/carq/https://content.gnoss.ws/carq//imagenes/Documentos/imgsem/df/df35/df354871-3cfa-446f-844e-60b3b1753a39/55c27fea-17ed-417b-b8e0-6db588f74542.jpg, 0000014355/60 VPP de la EMV.jpg
https://content.gnoss.ws/carq/https://content.gnoss.ws/carq//imagenes/Documentos/imgsem/df/df35/df354871-3cfa-446f-844e-60b3b1753a39/91bbbd4f-132f-41c4-8d62-27ff49429c5f.jpg, 0000014355/60 vpp madrid hand A3_1.3.jpg
https://content.gnoss.ws/carq/https://content.gnoss.ws/carq//imagenes/Documentos/imgsem/df/df35/df354871-3cfa-446f-844e-60b3b1753a39/16c624ba-685d-4056-8701-7d750101abb8.jpg, 0000014355/60 vpp madrid hand A3_1.4.jpg
https://content.gnoss.ws/carq/https://content.gnoss.ws/carq//imagenes/Documentos/imgsem/df/df35/df354871-3cfa-446f-844e-60b3b1753a39/8f7265c0-0ce1-4f45-b5d1-c160b6779fe3.jpg, 0000014355/60 vpp madrid hand A3_1.5.jpg
https://content.gnoss.ws/carq/https://content.gnoss.ws/carq//imagenes/Documentos/imgsem/df/df35/df354871-3cfa-446f-844e-60b3b1753a39/482dc6ae-c2da-47bd-acaa-2895c7eccfeb.jpg, 0000014355/60 vpp madrid hand A3_2.3.jpg
https://content.gnoss.ws/carq/https://content.gnoss.ws/carq//imagenes/Documentos/imgsem/df/df35/df354871-3cfa-446f-844e-60b3b1753a39/a989f282-8ef1-48d4-a3a2-b323e4ecdd4d.jpg, 0000014355/60 vpp madrid hand A3_2.4.jpg
https://content.gnoss.ws/carq/https://content.gnoss.ws/carq//imagenes/Documentos/imgsem/df/df35/df354871-3cfa-446f-844e-60b3b1753a39/2caf855d-f9cb-4f21-a530-50d528d413a8.jpg, 0000014355/60 vpp madrid hand A3_2.5.jpg
https://content.gnoss.ws/carq/https://content.gnoss.ws/carq//imagenes/Documentos/imgsem/df/df35/df354871-3cfa-446f-844e-60b3b1753a39/11141eff-99ef-4036-8eec-92eec3a30a03.jpg, 0000014355/60 vpp madrid hand A3_2.6.jpg
https://content.gnoss.ws/carq/https://content.gnoss.ws/carq//imagenes/Documentos/imgsem/df/df35/df354871-3cfa-446f-844e-60b3b1753a39/ec3e5207-28b8-4108-b1de-294032998eb4.jpg, 0000014355/60 vpp madrid hand A3_3.6.jpg
https://content.gnoss.ws/carq/https://content.gnoss.ws/carq//imagenes/Documentos/imgsem/df/df35/df354871-3cfa-446f-844e-60b3b1753a39/3a17edfc-cbd0-4f84-bb65-93e7f723bd63.jpg, 0000014355/60 vpp madrid hand A3_3.4.jpg
https://content.gnoss.ws/carq/https://content.gnoss.ws/carq//imagenes/Documentos/imgsem/df/df35/df354871-3cfa-446f-844e-60b3b1753a39/20d6d8ad-84c1-4b3d-abe5-15f692b5f665.jpg, 0000014355/60 vpp madrid hand A3_3.5.jpg
https://content.gnoss.ws/carq/https://content.gnoss.ws/carq//imagenes/Documentos/imgsem/df/df35/df354871-3cfa-446f-844e-60b3b1753a39/d61aeea2-70fe-46cd-af10-4043e444e2e5.jpg, 0000014355/60 vpp madrid hand A3_3.7.jpg
https://content.gnoss.ws/carq//imagenes/Documentos/imgsem/df/df35/df354871-3cfa-446f-844e-60b3b1753a39/f731e430-5acb-491d-9557-7895057cf2c0.jpg, 0000014355/planta baja.jpg
https://content.gnoss.ws/carq//imagenes/Documentos/imgsem/df/df35/df354871-3cfa-446f-844e-60b3b1753a39/6c22c152-1ff2-4dbb-b65e-d1c355b40285.jpg, 0000014355/60 vpp madrid hand A3_1.2.jpg
https://content.gnoss.ws/carq//imagenes/Documentos/imgsem/df/df35/df354871-3cfa-446f-844e-60b3b1753a39/b37b70bb-ef87-44a3-abd6-0aed3c79aaf5.jpg, 0000014355/60 vpp madrid hand A3_2.1.jpg
https://content.gnoss.ws/carq//imagenes/Documentos/imgsem/df/df35/df354871-3cfa-446f-844e-60b3b1753a39/4f0cb3ef-332b-4493-bafb-8b2f4374b49e.jpg, 0000014355/60 vpp madrid hand A3_2.2.jpg
https://content.gnoss.ws/carq//imagenes/Documentos/imgsem/df/df35/df354871-3cfa-446f-844e-60b3b1753a39/61fe484f-dfde-44d8-ae01-0884f050ce87.jpg, 0000014355/60 vpp madrid hand A3_3.1.jpg
https://content.gnoss.ws/carq//imagenes/Documentos/imgsem/df/df35/df354871-3cfa-446f-844e-60b3b1753a39/80559925-b011-414d-b373-c3e1c7a94b75.jpg, 0000014355/60 vpp madrid hand A3_3.2.jpg
https://content.gnoss.ws/carq//imagenes/Documentos/imgsem/df/df35/df354871-3cfa-446f-844e-60b3b1753a39/d0764457-3c94-4c0d-8886-a159a02620d8.jpg, 0000014355/60 vpp madrid hand A3_3.3.jpg
https://content.gnoss.ws/carq//imagenes/Documentos/imgsem/df/df35/df354871-3cfa-446f-844e-60b3b1753a39/035b3fe3-e9b2-4450-bfd7-95260593ffa7.jpg, 0000014355/60 vpp madrid hand A3_1.1.jpg



