Cargando...
El edificio central de la Facultad de Derecho de la Universidad de Zaragoza fue terminado en 1945, según proyecto de los arquitectos Regino Borobio y José Beltrán, constituyendo un cualificado exponente de lo que se ha dado en llamar arquitectura de la autarquía. Posteriormente, y tras las ampliaciones realizadas en los años 1973 y 1986, el edificio había ido perdiendo su primitiva condición de edificio exento y parte de su escala hacia el espacio central del campus.
En los años noventa se había planteado, por otra parte, la necesidad de una profunda remodelación interna para dar respuesta a las demandas existentes, concretadas en una ampliación sustancial del número de despachos y en una nueva biblioteca. El proyecto realizado supuso la completa redistribución de las diferentes plantas del edificio existente, el refuerzo de su estructura y cimentación y la modificación de las instalaciones, ampliándolo en una planta, con objeto de ubicar en ella las diferentes dependencias de la biblioteca de la facultad.
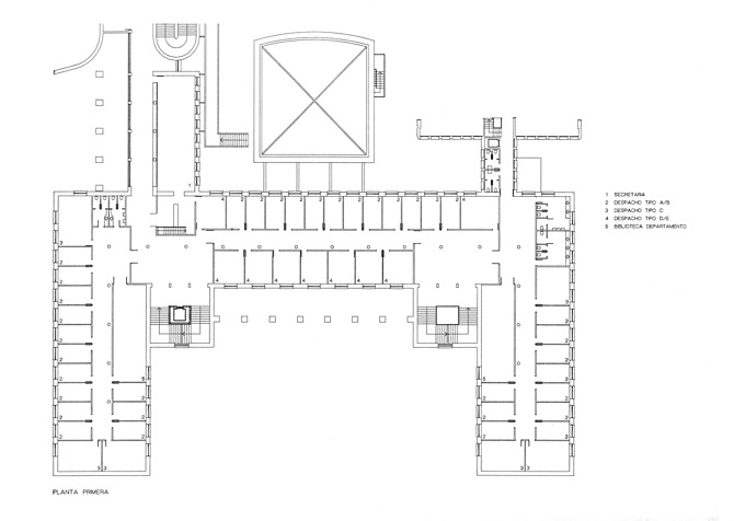
Tras la reforma realizada, la planta baja sigue albergando la zona representativa del edificio: aula magna, decanato, salas de juntas y de grados, pasando la planta primera a ser ocupada en su totalidad por despachos correspondientes a diferentes departamentos. Junto a esto, se ha insertado un nuevo ascensor y se han practicado las conexiones con los restantes edificios que componen la facultad, mejorándose, de este modo, el sistema de circulaciones de las diferentes plantas.
El interior de algunos de los espacios más significativos –aula magna y sala de grados– ha sido restaurado, disponiéndose techos acústicos y nuevos sistemas de climatización e iluminación.
En las restantes zonas de las plantas existentes se ha procurado que la transparencia de los sistemas de compartimentación utilizados dotara a las zonas de paso de un buen nivel de iluminación natural, haciéndose uso, por otra parte, de materiales y tonos acordes con la memoria de la facultad.
La nueva planta ampliada adquiere la consideración de remate del edificio existente, corrigiendo ligeramente la nueva cubierta de cobre, el trazado de la cubierta de teja primitiva.
La estructura metálica de soporte, retrasada respecto al pórtico de entrada, se eleva sobre la línea de la imposta existente, persiguiéndose, con la continuidad del cerramiento acristalado, acentuar la ligereza del plano de fachada, delimitado por la horizontal continua del alero.
La obra tuvo el Premio de Arquitectura García Mercadal del año 1994.
Información general
Ampliación de la Facultad de Derecho de Zaragoza
AÑO
Opción de visitas
Dirección
c/ Pedro Cerbuna, 12
50009 Zaragoza - Zaragoza
Latitud: 41.640796155
Longitud: -0.899046187
Clasificación
Superficie construida
Arquitectos participantes
Estudios de arquitectura participantes
Información aportada por
Basilio Tobías Pintre Estudio
Colegio Oficial de Arquitectos de Aragón (COAA)
Enlaces web
Ubicación
Itinerarios
https://content.gnoss.ws/carq/https://content.gnoss.ws/carq//imagenes/Documentos/imgsem/77/7767/776779a8-93ff-4598-8ae1-dafee7b0f1bb/b670db37-1d82-48ef-aff9-c0e0bc23381b.jpg, 0000028359/IMG0034.jpg
https://content.gnoss.ws/carq/https://content.gnoss.ws/carq//imagenes/Documentos/imgsem/77/7767/776779a8-93ff-4598-8ae1-dafee7b0f1bb/d8ccbaf6-4acd-4dbd-a36d-bcd268362aa9.jpg, 0000028359/Derecho.jpg
https://content.gnoss.ws/carq/https://content.gnoss.ws/carq//imagenes/Documentos/imgsem/77/7767/776779a8-93ff-4598-8ae1-dafee7b0f1bb/7f473a2a-262c-49d9-80b6-2c2348079330.jpg, 0000028359/IMG0030.jpg
https://content.gnoss.ws/carq/https://content.gnoss.ws/carq//imagenes/Documentos/imgsem/77/7767/776779a8-93ff-4598-8ae1-dafee7b0f1bb/6f554942-020e-4b28-8def-5bbe39eeb831.jpg, 0000028359/IMG0037.jpg
https://content.gnoss.ws/carq/https://content.gnoss.ws/carq//imagenes/Documentos/imgsem/77/7767/776779a8-93ff-4598-8ae1-dafee7b0f1bb/606a2876-fb5e-4f92-9e6b-5a172eb097ac.jpg, 0000028359/IMG0042.jpg
https://content.gnoss.ws/carq//imagenes/Documentos/imgsem/77/7767/776779a8-93ff-4598-8ae1-dafee7b0f1bb/9c0efd93-3edd-4784-beee-c7229112e4be.jpg, 0000028359/Alzado.jpg
https://content.gnoss.ws/carq//imagenes/Documentos/imgsem/77/7767/776779a8-93ff-4598-8ae1-dafee7b0f1bb/8a73ac02-8b8c-42e0-b45e-604e0a99ae65.jpg, 0000028359/Planta Primera.jpg
https://content.gnoss.ws/carq//imagenes/Documentos/imgsem/77/7767/776779a8-93ff-4598-8ae1-dafee7b0f1bb/168dfd9e-0eee-401b-9b30-cf3dfab08996.jpg, 0000028359/Planta Baja.jpg
https://content.gnoss.ws/carq//imagenes/Documentos/imgsem/77/7767/776779a8-93ff-4598-8ae1-dafee7b0f1bb/83151887-6fd9-4e67-a367-0b7bd86c45a9.jpg, 0000028359/Planta Segunda.jpg



