Cargando...
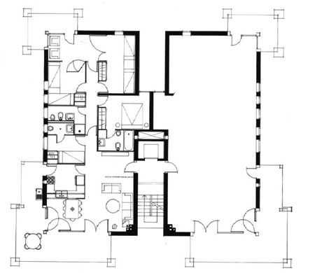
El edificio evidenciaba una serie de reflexiones sobre las terrazas, un elemento omnipresente en el entorno y tratado normalmente con muy poca consideración. Muchas de las decisiones que entonces se tomaron sobre ellas las podemos ver repetidas en obras posteriores. La escasa anchura permitida por las Ordenanzas fue la causa de que se desplazaran a las esquinas buscando en el giro unos espacios más generosos. Para hacerlas cómodas se las protegió del viento, del sol y de las miradas indiscretas.
Su estructura de pilares y jácenas de hormigón facilitó la abertura de unos huecos generosos en las cuatro esquinas de la maciza caja de albañilería de manera que se convirtieron en una generosa prolongación del interior. El resto de las dependencias ventilaban y se iluminaban mediante pequeñas ventanas abiertas en el muro. El tratamiento escalonado de las dos plantas superiores facilitó la relación de la obra con las diferentes alturas de los edificios vecinos.
Información general
Ancla Roja. Edificio de apartamentos
AÑO
Opción de visitas
Dirección
p.º Miramar, 78 Salou, 78
43840 Salou - Tarragona
Latitud: 41.074862027
Longitud: 1.1208203338
Clasificación
Superficie construida
Estudios de arquitectura participantes
Información aportada por
Ministerio de Transportes, Movilidad y Agenda urbana (MITMA)
-
Studio PER -
Colita
Ubicación
https://content.gnoss.ws/carq/https://content.gnoss.ws/carq//imagenes/Documentos/imgsem/97/971b/971b437e-2ee7-4148-85de-15144dbcd621/8a265e7f-e593-44e2-8f13-8399d0bd4ccd.jpg, 0000023275/Ancla Roja 2 .jpg
https://content.gnoss.ws/carq/https://content.gnoss.ws/carq//imagenes/Documentos/imgsem/97/971b/971b437e-2ee7-4148-85de-15144dbcd621/448a3df1-7b3d-47f6-af56-4b4a3b8bb617.jpg, 0000023275/Ancla Roja 1 .jpg
https://content.gnoss.ws/carq/https://content.gnoss.ws/carq//imagenes/Documentos/imgsem/97/971b/971b437e-2ee7-4148-85de-15144dbcd621/f01b13b5-9545-493d-b338-064936e0cf46.jpg, 0000023275/Ancla Roja .jpg
https://content.gnoss.ws/carq//imagenes/Documentos/imgsem/97/971b/971b437e-2ee7-4148-85de-15144dbcd621/94f16964-4f91-40b9-b219-b9eeb2bbca8c.jpg, 0000023275/Ancla Roja axonometria 2 .jpg
https://content.gnoss.ws/carq//imagenes/Documentos/imgsem/97/971b/971b437e-2ee7-4148-85de-15144dbcd621/9748d278-1a63-450f-b93d-2090f3495ad9.jpg, 0000023275/Ancla Roja planta .jpg
https://content.gnoss.ws/carq//imagenes/Documentos/imgsem/97/971b/971b437e-2ee7-4148-85de-15144dbcd621/8728adfd-73c0-44b1-a0a5-618f3d463f90.jpg, 0000023275/Ancla Roja axonometria 1 .jpg
https://content.gnoss.ws/carq//imagenes/Documentos/imgsem/97/971b/971b437e-2ee7-4148-85de-15144dbcd621/30b6fcb8-7d01-44ed-817f-88d939be1bb5.jpg, 0000023275/Ancla Roja axonometria .jpg




