Cargando...
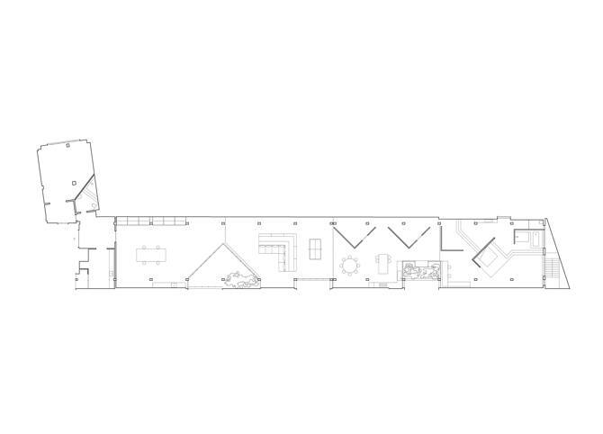
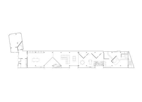
El encargo consistía en transformar un antiguo taller de corte y confección en la vivienda de una sola persona, incorporando además un estudio y un taller de creación artística.
El proyecto parte de la imposibilidad de generar espacios domésticos convencionales. No se trata de imponer una casa dentro de la nave, sino de domesticarla, aceptando su carácter salvaje y su escala excesiva como una condición permanente. La propuesta busca, a la vez, crear ámbitos de escala humana y preservar la percepción de un único espacio continuo y singular, por lo que se descarta la compartimentación mediante tabiques y puertas.
En su lugar, una serie de elementos independientes —planos, diedros y una grada— articulan el espacio sin tocar ni las paredes ni el techo, manteniendo la continuidad visual. Paralelamente, el perímetro se modifica mediante el retranqueo de las carpinterías, generando una terraza triangular y un pequeño jardín que introducen luz, aire y vegetación.
La organización se estructura como una secuencia de privacidad creciente: el taller se sitúa en el acceso; a continuación, el estar y la cocina funcionan como un gran espacio de convivencia; después, los servicios se ocultan tras planos quebrados, y, tras el filtro del jardín, aparece la zona más íntima con dormitorio, vestidor, baño y estudio.
En esta última área, una plataforma elevada crea una atmósfera más recogida y permite integrar la zona de aguas y las instalaciones. Materialmente, el proyecto se reduce a una paleta mínima de dos colores y dos texturas, que refuerza la claridad y la unidad del conjunto.
Información general
Apartamento de 700m2
AÑO
Dirección
Hospitalet, Barcelona - Barcelona -Hospitalet, Barcelona
Superficie construida
Arquitectos participantes
Estudios de arquitectura participantes
Información aportada por
Arquitectura-G
Enlaces web
-
José Hevia -
Planta - ARQUITECTUYRA-G -
José Hevia
https://content.gnoss.ws/carq/https://content.gnoss.ws/carq//imagenes/Documentos/imgsem/23/23a6/23a6b7a7-b62c-43ef-a138-cdc2dcd3736f/40f5025f-5924-4b4e-b8b1-9469042788fd.jpg, 0000108175/Apartamento 700m2_04.jpg
https://content.gnoss.ws/carq/https://content.gnoss.ws/carq//imagenes/Documentos/imgsem/23/23a6/23a6b7a7-b62c-43ef-a138-cdc2dcd3736f/1ea877af-9dd3-4eb6-ae71-95a45ef2fb8b.jpg, 0000108175/Apartamento 700m2_01.jpg
https://content.gnoss.ws/carq/https://content.gnoss.ws/carq//imagenes/Documentos/imgsem/23/23a6/23a6b7a7-b62c-43ef-a138-cdc2dcd3736f/786d38c4-5240-491b-b9c5-5715c827aecf.jpg, 0000108175/Apartamento 700m2_02.jpg
https://content.gnoss.ws/carq/https://content.gnoss.ws/carq//imagenes/Documentos/imgsem/23/23a6/23a6b7a7-b62c-43ef-a138-cdc2dcd3736f/2da21cc2-1d05-47c5-9db4-4347f5934019.jpg, 0000108175/Apartamento 700m2_03.jpg
https://content.gnoss.ws/carq/https://content.gnoss.ws/carq//imagenes/Documentos/imgsem/23/23a6/23a6b7a7-b62c-43ef-a138-cdc2dcd3736f/6f6f3485-2400-4c8b-8027-819b5ca10f6e.jpg, 0000108175/Apartamento 700m2_05.jpg
https://content.gnoss.ws/carq/https://content.gnoss.ws/carq//imagenes/Documentos/imgsem/23/23a6/23a6b7a7-b62c-43ef-a138-cdc2dcd3736f/82e6b700-2a7d-47d6-9d09-b19ba7e7190e.jpg, 0000108175/Apartamento 700m2_06.jpg
https://content.gnoss.ws/carq/https://content.gnoss.ws/carq//imagenes/Documentos/imgsem/23/23a6/23a6b7a7-b62c-43ef-a138-cdc2dcd3736f/f364e0fd-299f-461b-b934-8af44f7b8e8d.jpg, 0000108175/Apartamento 700m2_07.jpg
https://content.gnoss.ws/carq//imagenes/Documentos/imgsem/23/23a6/23a6b7a7-b62c-43ef-a138-cdc2dcd3736f/83666b7d-33a1-4b45-beb0-fa02c7d6efc4.jpg, 0000108175/700M2 APARTMENT FOR A SINGLE PERSON.jpg





