Cargando...
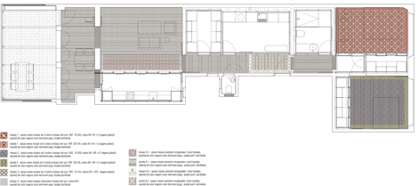
Reaprovechamiento de una estructura antigua. Transformación y añadido. El apartamento era, cuando entramos, un conjunto de espacios en los que se apreciaban diferentes tiempos sobrepuestos. Usos diversos que habían acumulado elementos y capas sobre sus paredes a lo largo de los años, y habían acabado por conformar un ambiente extraño y desdibujado. A pesar de la confusión se podía apreciar la potencia de sus características definitorias originales: una estructura de espacios encadenados separados por una potente sucesión de muros de carga, el pavimento de mosaico hidráulico con distinción de jerarquía de usos, y techos ritmados conformados por bovedillas cerámicas y vigas de madera.
Nos parece que un trabajo de reforma debe sacar el máximo partido de lo que se encuentra. Como pasa en la ciudad, que es un conglomerado de tiempos históricos diferentes que se contaminan mutuamente, que se entretejen en un todo complejo y ambiguo que a nosotros nos emociona. Aunque en este caso la preexistencia no tenía un valor patrimonial ni histórico excepcional, era perfectamente aprovechable y atractiva, y nos llevó a una estrategia de reciclaje y transformación, con límites difusos, a la que insertamos nuevos elementos funcionales concentrados y diferenciados.
Información general
Apartamento Juan
AÑO
Opción de visitas
Dirección
c/ Gran de Gràcia, 56
08012 Barcelona - Barcelona
Latitud: 41.399393935
Longitud: 2.1560874749
Clasificación
Superficie construida
Estudios de arquitectura participantes
Información aportada por
Vora Arquitectura
-
Vora Arquitectura -
Vora Arquitectura -
Vora Arquitectura -
Vora Arquitectura -
Vora Arquitectura -
Vora Arquitectura
Ubicación
https://content.gnoss.ws/carq/https://content.gnoss.ws/carq//imagenes/Documentos/imgsem/9c/9c3c/9c3cdc1c-ed66-471c-833d-b722210ae17a/898463b6-8929-484f-8ecf-3087bfeba605.jpg, 0000007094/VORA.jpg
https://content.gnoss.ws/carq/https://content.gnoss.ws/carq//imagenes/Documentos/imgsem/9c/9c3c/9c3cdc1c-ed66-471c-833d-b722210ae17a/79b185a7-c3e9-4594-a66e-9d685d3e068e.jpg, 0000007094/_MG_4038_2500px.jpg
https://content.gnoss.ws/carq/https://content.gnoss.ws/carq//imagenes/Documentos/imgsem/9c/9c3c/9c3cdc1c-ed66-471c-833d-b722210ae17a/0a1229c9-53a5-4b3a-8298-3166d1a6fe95.jpg, 0000007094/_MG_4007_1_2500px.jpg
https://content.gnoss.ws/carq/https://content.gnoss.ws/carq//imagenes/Documentos/imgsem/9c/9c3c/9c3cdc1c-ed66-471c-833d-b722210ae17a/d6a7ccbe-70a4-4d2a-ad01-defbad24dd55.jpg, 0000007094/_MG_4166_2500px.JPG
https://content.gnoss.ws/carq/https://content.gnoss.ws/carq//imagenes/Documentos/imgsem/9c/9c3c/9c3cdc1c-ed66-471c-833d-b722210ae17a/a04c2233-05b0-4706-8beb-7f281ae03431.jpg, 0000007094/_MG_4007_5_2500px.jpg
https://content.gnoss.ws/carq/https://content.gnoss.ws/carq//imagenes/Documentos/imgsem/9c/9c3c/9c3cdc1c-ed66-471c-833d-b722210ae17a/af71b526-49b8-42e3-95ab-59cd6e5441fd.jpg, 0000007094/_MG_4033_1_2500px.jpg
https://content.gnoss.ws/carq/https://content.gnoss.ws/carq//imagenes/Documentos/imgsem/9c/9c3c/9c3cdc1c-ed66-471c-833d-b722210ae17a/539a5c1a-9fc7-424b-9491-1e668aba0b72.jpg, 0000007094/_MG_4033_2_2500px.jpg
https://content.gnoss.ws/carq/https://content.gnoss.ws/carq//imagenes/Documentos/imgsem/9c/9c3c/9c3cdc1c-ed66-471c-833d-b722210ae17a/68363c5f-d805-409d-94f6-42e46e5453f7.jpg, 0000007094/_MG_4095_2500px.JPG
https://content.gnoss.ws/carq/https://content.gnoss.ws/carq//imagenes/Documentos/imgsem/9c/9c3c/9c3cdc1c-ed66-471c-833d-b722210ae17a/c81baa55-d982-40e5-a987-c2f2a2893135.jpg, 0000007094/_MG_4020_2500px.JPG
https://content.gnoss.ws/carq//imagenes/Documentos/imgsem/9c/9c3c/9c3cdc1c-ed66-471c-833d-b722210ae17a/39250549-e96c-47ed-9e74-db0bc46cce50.jpg, 0000007094/axonometria.jpg
https://content.gnoss.ws/carq//imagenes/Documentos/imgsem/9c/9c3c/9c3cdc1c-ed66-471c-833d-b722210ae17a/785ef5bd-411d-43f4-9814-b2f2362d8f0d.jpg, 0000007094/3-planta general-pav_q.jpg







