Cargando...
En las proximidades del Club de Tenis de A Coruña se proyectó la construcción de un conjunto de diez viviendas unifamiliares en hilera, sobre unos terrenos a media ladera, orientados al mediodía y con vistas sobre las agras de San Pedro de Nos.
En los primeros estudios realizados se planteó la necesidad de conseguir que todas las viviendas disfrutasen de las mismas condiciones de orientación, vistas, acceso, etc. Al mismo tiempo, resultaba conveniente no realizar una edificación en altura que pudiese tapar las vistas de que gozaba el Club desde su local social; además era necesario lograr la mayor independencia o privacidad posible para cada vivienda.
Bajo estas consideraciones, parecía muy adecuado conseguir una disposición en hilera a lo largo de la parcela, de tal forma que las mejores vistas se disfrutasen desde el estar y el dormitorio principal. Se tantearon varias soluciones con diversos retranqueos hasta llegar a la definida en el proyecto.
El programa planteado para la vivienda se componía de una amplia estancia, cocina con oficio, zona de dormitorios compuesta por dormitorio principal con cuarto de baño incorporado, dos dormitorios más, otro cuarto de baño, un posible dormitorio de servicio incorporado al oficio y un espacio para garaje, almacenes, etc.
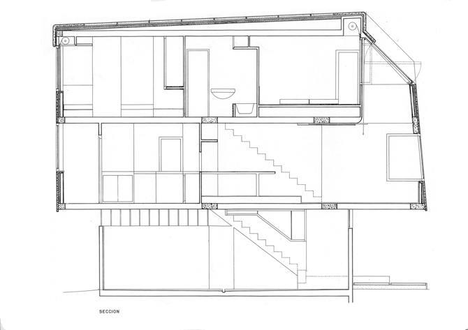
Partiendo de la tipología tradicional de las viviendas rurales en esta zona, se adoptó la solución en dúplex: un nivel para la estancia, cocina, oficio, etc., que se prolonga en un porche hacia la zona común. El doble espacio, característico de la arquitectura tradicional, aparece en el estar al retranquearse el dormitorio principal, consiguiéndose además una iluminación cenital.
La utilización de una estructura de muros de carga reforzados con elementos de hormigón armado, placas prefabricadas de hormigón con acabado pétreo en los cerramientos, huecos de proporción cuadrada en madera pintada, remates de chimeneas, etc., recuerdan temas de la arquitectura tradicional elaborados con un lenguaje actual.
Obra publicada en:
Jano Arquitectura nº 53, diciembre 1977.
Process Architecture: Contemporary Spanish Architecture nº 57, abril 1985.
Obradoiro nº 19, 1991.
Solicitada por la editorial Karl Kramer Verlag Stuttgart para Grouped Housing, 1978.
Incluida en O Habitat cap. 6 y 7, serie sobre el territorio y el hábitat gallego, producida por TVE. Dirección: C. Portela. Realización: Carlos Osorio, 1985.
Información general
Apartamentos tenis
AÑO
Dirección
Rúa Estorniño & Rúa Perdiz,
15176 Oleiros - A Coruña -Oleiros
Latitud: 43.323476439
Longitud: -8.350222185
Arquitectos participantes
Colaboradores
Información aportada por
Jorge Meijide Tomás
Ubicación
https://content.gnoss.ws/carq/https://content.gnoss.ws/carq//imagenes/Documentos/imgsem/14/14c5/14c54782-3cd5-4ec9-9358-12a6c5ed41a7/7e10a6ec-d922-4c29-8d6c-65b952beb336.jpg, 0000106859/exterior 006 (1973).JPG
https://content.gnoss.ws/carq/https://content.gnoss.ws/carq//imagenes/Documentos/imgsem/14/14c5/14c54782-3cd5-4ec9-9358-12a6c5ed41a7/5d1705a9-3fbf-40cb-a72a-8127711f3f3f.jpg, 0000106859/exterior 001 (1973).JPG
https://content.gnoss.ws/carq/https://content.gnoss.ws/carq//imagenes/Documentos/imgsem/14/14c5/14c54782-3cd5-4ec9-9358-12a6c5ed41a7/2be95f53-0e7a-4711-bdcc-fcb8ee1edceb.jpg, 0000106859/interior 003 (1973).JPG
https://content.gnoss.ws/carq/https://content.gnoss.ws/carq//imagenes/Documentos/imgsem/14/14c5/14c54782-3cd5-4ec9-9358-12a6c5ed41a7/d36d9cd6-13f6-4333-8738-677ec55cf7d7.jpg, 0000106859/interior 005 (1973).JPG
https://content.gnoss.ws/carq/https://content.gnoss.ws/carq//imagenes/Documentos/imgsem/14/14c5/14c54782-3cd5-4ec9-9358-12a6c5ed41a7/3e498ff6-b624-4b43-a582-3c771bda60e3.jpeg, 0000106859/Tenis. Foto obra 1 (1974).jpeg
https://content.gnoss.ws/carq/https://content.gnoss.ws/carq//imagenes/Documentos/imgsem/14/14c5/14c54782-3cd5-4ec9-9358-12a6c5ed41a7/ff36f797-4571-4412-82a8-e1a4b358298a.jpeg, 0000106859/Tenis. Foto obra 3 (1974).jpeg
https://content.gnoss.ws/carq/https://content.gnoss.ws/carq//imagenes/Documentos/imgsem/14/14c5/14c54782-3cd5-4ec9-9358-12a6c5ed41a7/27aed7a5-5875-48b9-b61e-fb4823a2793e.jpeg, 0000106859/Tenis. Foto obra 5 (1974).jpeg
https://content.gnoss.ws/carq/https://content.gnoss.ws/carq//imagenes/Documentos/imgsem/14/14c5/14c54782-3cd5-4ec9-9358-12a6c5ed41a7/646158d4-6364-4467-9fe1-2fa52f7413f2.jpeg, 0000106859/Tenis. Foto obra 9 (1974).jpeg
https://content.gnoss.ws/carq/https://content.gnoss.ws/carq//imagenes/Documentos/imgsem/14/14c5/14c54782-3cd5-4ec9-9358-12a6c5ed41a7/413fda66-4d35-44f7-998e-0fb16f5302ad.jpeg, 0000106859/Tenis. Foto obra 10 (1974).jpeg
https://content.gnoss.ws/carq/https://content.gnoss.ws/carq//imagenes/Documentos/imgsem/14/14c5/14c54782-3cd5-4ec9-9358-12a6c5ed41a7/5491591c-ab42-42ae-aa66-6edbb00fd547.jpeg, 0000106859/Tenis. Foto obra 14 (1974).jpeg
https://content.gnoss.ws/carq/https://content.gnoss.ws/carq//imagenes/Documentos/imgsem/14/14c5/14c54782-3cd5-4ec9-9358-12a6c5ed41a7/3e888d5d-d1f4-4a61-a6cb-b15e3823c537.jpeg, 0000106859/Tenis. Foto obra 16 (1974).jpeg
https://content.gnoss.ws/carq/https://content.gnoss.ws/carq//imagenes/Documentos/imgsem/14/14c5/14c54782-3cd5-4ec9-9358-12a6c5ed41a7/35d1683a-846b-4d54-8fb8-030d0d5f6d7b.jpeg, 0000106859/Tenis. Foto 1 (80s).jpeg
https://content.gnoss.ws/carq/https://content.gnoss.ws/carq//imagenes/Documentos/imgsem/14/14c5/14c54782-3cd5-4ec9-9358-12a6c5ed41a7/32f8c43a-48fe-42d2-9a63-a844c73cc36b.jpeg, 0000106859/Tenis. Foto 2 (80s).jpeg
https://content.gnoss.ws/carq/https://content.gnoss.ws/carq//imagenes/Documentos/imgsem/14/14c5/14c54782-3cd5-4ec9-9358-12a6c5ed41a7/630d3545-d18f-4ed0-8219-91151e116c77.jpeg, 0000106859/Tenis. Foto 3 (80s).jpeg
https://content.gnoss.ws/carq/https://content.gnoss.ws/carq//imagenes/Documentos/imgsem/14/14c5/14c54782-3cd5-4ec9-9358-12a6c5ed41a7/736d7091-6b8c-4dff-9c53-17677309fcda.jpeg, 0000106859/Tenis. Foto 25 (sept 1977).jpeg
https://content.gnoss.ws/carq/https://content.gnoss.ws/carq//imagenes/Documentos/imgsem/14/14c5/14c54782-3cd5-4ec9-9358-12a6c5ed41a7/51c44817-7c0b-4700-8d83-88b3dced6c0e.jpeg, 0000106859/Tenis. Sala estar-chimenea (1975).jpeg
https://content.gnoss.ws/carq/https://content.gnoss.ws/carq//imagenes/Documentos/imgsem/14/14c5/14c54782-3cd5-4ec9-9358-12a6c5ed41a7/6ab30a09-5185-49a1-a56b-dfaea28e6b47.jpeg, 0000106859/Tenis. habi. nin771;os (mar 1975).jpeg
https://content.gnoss.ws/carq/https://content.gnoss.ws/carq//imagenes/Documentos/imgsem/14/14c5/14c54782-3cd5-4ec9-9358-12a6c5ed41a7/a57ca79e-62dd-494e-b998-f8daf932514b.jpeg, 0000106859/T.Exterior delantero jardi769;n (1990-91).jpeg
https://content.gnoss.ws/carq//imagenes/Documentos/imgsem/14/14c5/14c54782-3cd5-4ec9-9358-12a6c5ed41a7/e7722cb7-54ee-4316-9c71-904bcb63a28e.jpeg, 0000106859/Tenis 6. alzados 1.jpeg
https://content.gnoss.ws/carq//imagenes/Documentos/imgsem/14/14c5/14c54782-3cd5-4ec9-9358-12a6c5ed41a7/8c8e7bdc-bf54-4f21-8873-f9adfb7f7403.jpeg, 0000106859/Tenis 5. seccio769;n.jpeg
https://content.gnoss.ws/carq//imagenes/Documentos/imgsem/14/14c5/14c54782-3cd5-4ec9-9358-12a6c5ed41a7/0f0c023b-215d-4e5f-bae9-0e3e15e6a95e.jpeg, 0000106859/Tenis 1. axo.jpeg
https://content.gnoss.ws/carq//imagenes/Documentos/imgsem/14/14c5/14c54782-3cd5-4ec9-9358-12a6c5ed41a7/1c2fceea-3ad9-4f80-ac6c-a309925b40f8.jpeg, 0000106859/Tenis 3. planta primera.jpeg
https://content.gnoss.ws/carq//imagenes/Documentos/imgsem/14/14c5/14c54782-3cd5-4ec9-9358-12a6c5ed41a7/16485c14-0598-41ab-b6f2-ed58f3519808.jpeg, 0000106859/Tenis 7. alzados 2.jpeg
https://content.gnoss.ws/carq//imagenes/Documentos/imgsem/14/14c5/14c54782-3cd5-4ec9-9358-12a6c5ed41a7/0d06e76e-aab1-4e14-a727-7058745ae475.jpeg, 0000106859/Tenis 2. planta baja.jpeg
https://content.gnoss.ws/carq//imagenes/Documentos/imgsem/14/14c5/14c54782-3cd5-4ec9-9358-12a6c5ed41a7/5d19a7b5-1f12-4c83-b4cf-237708f7d7c8.jpeg, 0000106859/Tenis 2. situacio769;n 2.jpeg
https://content.gnoss.ws/carq//imagenes/Documentos/imgsem/14/14c5/14c54782-3cd5-4ec9-9358-12a6c5ed41a7/f8bc46a4-8d67-4937-99f6-0dffe32a4b36.jpeg, 0000106859/Tenis 4. planta segunda.jpeg



