Cargando...
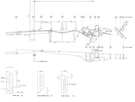
El área de descanso de Malniu está situada en los Pirineos catalanes, en el término municipal de Meranges, en la comarca de la Cerdanya. Se encuentra a 2.000 m de altitud, al final de un camino de montaña, sobre un antiguo glaciar, en el límite entre los bosques subalpinos y las zonas de vegetación alpina, y al lado de un refugio existente y de un lago-presa artificial.
El proyecto intentaba consolidar el final del camino para evitar su posible prolongación hacia las cimas cercanas, limitar el aparcamiento, evitar la invasión de vehículos por los prados vecinos, resolver las disfunciones que aparecen entre los usos ganaderos y la afluencia de visitantes que llegan en busca del contacto con la naturaleza, y ubicar adecuadamente unos servicios públicos que originalmente se dispersaban por el entorno sin criterio ni limitación.
Desde el inicio tuvimos la voluntad de enraizarnos con las cualidades del lugar empleando para el proyecto aquellos materiales que tradicionalmente se usaban para la delimitación de fincas (como los perpiaños de granito) o para la consolidación de prados (como los muros de piedra seca).
Información general
Área de descanso en Malniu
AÑO
Opción de visitas
Dirección
ctra. del Refugio, 10
17539 Meranges - Girona
Latitud: 42.46429444
Longitud: 1.7859531343
Clasificación
Superficie construida
Colaboradores
Estudios de arquitectura participantes
Información aportada por
batlleiroig
-
batlleiroig -
batlleiroig -
batlleiroig
Ubicación
https://content.gnoss.ws/carq/https://content.gnoss.ws/carq//imagenes/Documentos/imgsem/bc/bc9d/bc9d2f06-00bf-4c44-a470-39caee6fa1e6/19fd9d0f-e83d-4462-bc10-11b6bb61c1dd.jpg, 0000026522/169-Malniu-Fotos (2).jpg
https://content.gnoss.ws/carq/https://content.gnoss.ws/carq//imagenes/Documentos/imgsem/bc/bc9d/bc9d2f06-00bf-4c44-a470-39caee6fa1e6/6749b038-eb99-459a-885e-094b67a3b721.jpg, 0000026522/169-Malniu-Fotos (1).jpg
https://content.gnoss.ws/carq/https://content.gnoss.ws/carq//imagenes/Documentos/imgsem/bc/bc9d/bc9d2f06-00bf-4c44-a470-39caee6fa1e6/f962421a-6b3e-462e-94cf-26f9655253d3.jpg, 0000026522/169-Malniu-Fotos (3).jpg
https://content.gnoss.ws/carq/https://content.gnoss.ws/carq//imagenes/Documentos/imgsem/bc/bc9d/bc9d2f06-00bf-4c44-a470-39caee6fa1e6/3a06a536-06e7-45db-a37c-ee833fcbd084.jpg, 0000026522/169-Malniu-Fotos-(6).jpg
https://content.gnoss.ws/carq//imagenes/Documentos/imgsem/bc/bc9d/bc9d2f06-00bf-4c44-a470-39caee6fa1e6/6189ff5d-1115-4299-970c-03930e0570fc.jpeg, 0000026522/172-Planois-Malniu(3).jpeg
https://content.gnoss.ws/carq//imagenes/Documentos/imgsem/bc/bc9d/bc9d2f06-00bf-4c44-a470-39caee6fa1e6/bcb1b4cc-722d-4d65-b191-35a378e1f752.jpeg, 0000026522/172-Planois-Malniu(2).jpeg
https://content.gnoss.ws/carq//imagenes/Documentos/imgsem/bc/bc9d/bc9d2f06-00bf-4c44-a470-39caee6fa1e6/603fc41e-e02c-4788-a10f-ed0268a159b3.jpg, 0000026522/172-Planols-Malniu (1).jpg




