Cargando...
El Aulario III se instala en un solar marginal situado en el extremo sureste del Campus Universitario de Alicante. El resto de los edificios docentes se sitúan en el interior de la ronda de circunvalación en solares exentos y rodeados de zonas verdes.
Aislado pues del resto del campus, y rodeado por una vía de intenso tráfico y grandes playas de aparcamiento, el Aulario deberá garantizarse por sí mismo lo que al resto de edificios les viene dado por su situación en la ordenación general del campus: zona verde, espacio exterior, aire, luz y un ambiente propicio para su uso.
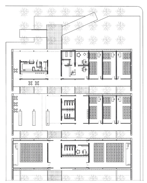
El proyecto se piensa como una gran arboleda en la que se intercalan siete pabellones que flotan sobre el terreno dando forma a una arquitectura que envuelve y acompaña sin cobrar protagonismo.
Información general
Aulario III Campus Universitario de Alicante
AÑO
Opción de visitas
Dirección
ctra. San Vicente del Raspeig,
03690 Sant Vicent del RaspeigSan Vicente del Raspeig - Alacant
Latitud: 38.382052657
Longitud: -0.508689677
Clasificación
Superficie construida
Premios
III BIAU (finalista - Obras de Arquitectura)
VI BEAU (finalista - Arquitectura)
Arquitectos participantes
Estudios de arquitectura participantes
Información aportada por
III BIAU
VI BEAU
EUmies Award
-
Javier García-Solera Vera -
Javier García-Solera Vera -
Hisao Suzuki; Roland Halbe -
Hisao Suzuki
Ubicación
Itinerarios
https://content.gnoss.ws/carq/https://content.gnoss.ws/carq//imagenes/Documentos/imgsem/2c/2cf8/2cf8df6b-d354-4a11-bb81-d1345f7abe60/f84e5087-805a-4838-b910-38e737f5bbf9.jpg, 0000002969/aulario 1.jpg
https://content.gnoss.ws/carq/https://content.gnoss.ws/carq//imagenes/Documentos/imgsem/2c/2cf8/2cf8df6b-d354-4a11-bb81-d1345f7abe60/38ab7415-d5ad-4616-bee0-7aaed661204c.jpeg, 0000002969/aulario 2.jpeg
https://content.gnoss.ws/carq/https://content.gnoss.ws/carq//imagenes/Documentos/imgsem/2c/2cf8/2cf8df6b-d354-4a11-bb81-d1345f7abe60/4c292a8a-a082-4fde-bf0a-c90160ea6ed0.jpeg, 0000002969/aulario 3.jpeg
https://content.gnoss.ws/carq/https://content.gnoss.ws/carq//imagenes/Documentos/imgsem/2c/2cf8/2cf8df6b-d354-4a11-bb81-d1345f7abe60/dbe8bcb9-337b-4d72-8364-79d3eda06f07.jpg, 0000002969/alicante 1.jpg
https://content.gnoss.ws/carq/https://content.gnoss.ws/carq//imagenes/Documentos/imgsem/2c/2cf8/2cf8df6b-d354-4a11-bb81-d1345f7abe60/b618f9f5-a47f-4824-87ee-ce5e5a015d9a.jpg, 0000002969/alicante 2.jpg
https://content.gnoss.ws/carq/https://content.gnoss.ws/carq//imagenes/Documentos/imgsem/2c/2cf8/2cf8df6b-d354-4a11-bb81-d1345f7abe60/ee251435-8d2a-42d0-aad9-f204a12588e5.jpg, 0000002969/alicante 3.jpg
https://content.gnoss.ws/carq/https://content.gnoss.ws/carq//imagenes/Documentos/imgsem/2c/2cf8/2cf8df6b-d354-4a11-bb81-d1345f7abe60/45ff9369-2683-4feb-8f9b-b5470e5d13c2.jpg, 0000002969/alicante 4.jpg
https://content.gnoss.ws/carq/https://content.gnoss.ws/carq//imagenes/Documentos/imgsem/2c/2cf8/2cf8df6b-d354-4a11-bb81-d1345f7abe60/90f9c79f-d446-4d6b-b05e-a3c34eab8686.jpg, 0000002969/aulario alicante 1.jpg
https://content.gnoss.ws/carq//imagenes/Documentos/imgsem/2c/2cf8/2cf8df6b-d354-4a11-bb81-d1345f7abe60/b359d073-1c88-4669-848a-2a34a13bf1ca.png, 0000002969/planta .png
https://content.gnoss.ws/carq//imagenes/Documentos/imgsem/2c/2cf8/2cf8df6b-d354-4a11-bb81-d1345f7abe60/57b7952e-6693-4ff3-b8ca-a6be529cd6f7.png, 0000002969/planta y secciones.png
https://content.gnoss.ws/carq//imagenes/Documentos/imgsem/2c/2cf8/2cf8df6b-d354-4a11-bb81-d1345f7abe60/8e00fcf9-0900-479d-81d2-f0c4a75c849a.png, 0000002969/seccion.png
https://content.gnoss.ws/carq//imagenes/Documentos/imgsem/2c/2cf8/2cf8df6b-d354-4a11-bb81-d1345f7abe60/5a68b95b-3cbe-45cb-b09b-a70c48aeda3f.png, 0000002969/situacion.png





