Cargando...
Se trata de conseguir que la planta unificada de ambos edificios conforme un nuevo organismo, evitando en lo posible lo que de arbitrario tiene ya la antigua línea medianera. Así se introduce una nueva galería que sirve al edificio antiguo, mejorando el acceso a algunas dependencias y conformando un nuevo patio más acorde con las trazas del actual edificio. El edificio de la ampliación se organiza alrededor de un gran hall rectangular, yuxtapuesto al patio y en relación con el exterior a través de una gran portada.
Exteriormente, la propuesta se entiende como la contigüidad entre dos volúmenes figurativamente muy diferentes y que comparte tan solo el modo de insertarse en lo urbano.
Evitando la reproducción de ritmos o alturas, se busca simplemente dotar a la nueva arquitectura de pregnancia, de realidad, convencidos de que ello le permite al nuevo edificio instalarse confortablemente junto al ya existente y que ampliar pueda ser un poco más que simplemente yuxtaponer.
Información general
Ayuntamiento de Ceuta. Adaptación y ampliación
AÑO
Opción de visitas
Dirección
plza. de África, 1
51001 Ceuta - Ceuta
Latitud: 35.888469614
Longitud: -5.31601455
Clasificación
Sistema constructivo
Sistema tradicional con aplacado de piedra en fachada
Superficie construida
Colaboradores
Anaya (Protección contra incendios)
Jose María Pellicer (Control de obra)
CMZ (Ingeniería de estructuras)
Miguel Velasco (Arquitecto Colaborador)
Ignacio Bonet (Arquitecto Colaborador)
Luis Gutiérrez (Arquitecto Colaborador)
Estudios de arquitectura participantes
Información aportada por
Colegio Oficial de Arquitectos de Ceuta (COACE)
Cruz y Ortiz Arquitectos
Enlaces web
-
Alzado sur - Cruz y Ortiz Arquitectos -
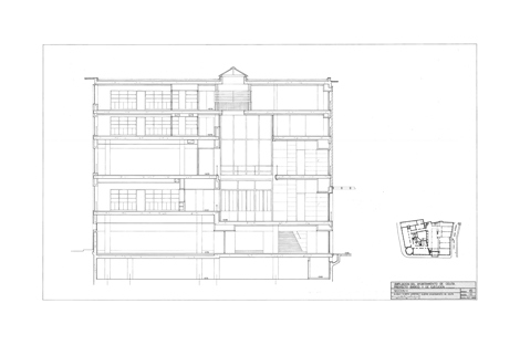
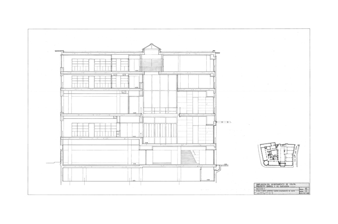
Sección transversal - Cruz y Ortiz Arquitectos -
Vista de la Escalera - Duccio Malagamba -
Vista del vestívulo desde planta principal - Duccio Malagamba
Ubicación
Itinerarios
https://content.gnoss.ws/carq/https://content.gnoss.ws/carq//imagenes/Documentos/imgsem/71/718e/718ee47b-7e02-43b8-986f-1d7f8e2a7df9/150ba2ac-b24b-4c14-8bfa-7a609d9fee56.jpg, 0000042736/Cruz-y-Ortiz-Arquitectos_DMA_17-X.jpg
https://content.gnoss.ws/carq/https://content.gnoss.ws/carq//imagenes/Documentos/imgsem/71/718e/718ee47b-7e02-43b8-986f-1d7f8e2a7df9/4581990b-e177-4975-9afb-233b0826fd7e.jpg, 0000042736/Cruz-y-Ortiz-Arquitectos_DMA_34-X.jpg
https://content.gnoss.ws/carq/https://content.gnoss.ws/carq//imagenes/Documentos/imgsem/71/718e/718ee47b-7e02-43b8-986f-1d7f8e2a7df9/5dd309d3-365e-42b2-9df5-5e54f29a3b42.jpg, 0000042736/Cruz-y-Ortiz-Arquitectos_DMA_31-X.jpg
https://content.gnoss.ws/carq/https://content.gnoss.ws/carq//imagenes/Documentos/imgsem/71/718e/718ee47b-7e02-43b8-986f-1d7f8e2a7df9/efa22fcb-1071-4282-838d-c8079e6245f7.jpg, 0000042736/Cruz-y-Ortiz-Arquitectos_DMA_16-X.jpg
https://content.gnoss.ws/carq/https://content.gnoss.ws/carq//imagenes/Documentos/imgsem/71/718e/718ee47b-7e02-43b8-986f-1d7f8e2a7df9/e2b9cd82-bbea-426b-9c74-5a651556c56c.jpg, 0000042736/Cruz-y-Ortiz-Arquitectos_DMA_09-X.jpg
https://content.gnoss.ws/carq/https://content.gnoss.ws/carq//imagenes/Documentos/imgsem/71/718e/718ee47b-7e02-43b8-986f-1d7f8e2a7df9/538673f2-3c95-4b46-9da8-774290b24fbd.jpg, 0000042736/Cruz-y-Ortiz-Arquitectos_DMA_28-X.jpg
https://content.gnoss.ws/carq/https://content.gnoss.ws/carq//imagenes/Documentos/imgsem/71/718e/718ee47b-7e02-43b8-986f-1d7f8e2a7df9/a346d931-42e3-48ef-85f2-a63076109fb5.jpg, 0000042736/Cruz-y-Ortiz-Arquitectos_DMA_02-X.jpg
https://content.gnoss.ws/carq/https://content.gnoss.ws/carq//imagenes/Documentos/imgsem/71/718e/718ee47b-7e02-43b8-986f-1d7f8e2a7df9/5809f855-0249-4ba1-9957-1c7a97fb7125.jpg, 0000042736/Cruz-y-Ortiz-Arquitectos_DMA_21-X.jpg
https://content.gnoss.ws/carq/https://content.gnoss.ws/carq//imagenes/Documentos/imgsem/71/718e/718ee47b-7e02-43b8-986f-1d7f8e2a7df9/e4be9765-7628-45d6-bd05-9bfb810fea9d.jpg, 0000042736/Cruz-y-Ortiz-Arquitectos_DMA_25-X.jpg
https://content.gnoss.ws/carq/https://content.gnoss.ws/carq//imagenes/Documentos/imgsem/71/718e/718ee47b-7e02-43b8-986f-1d7f8e2a7df9/3f71a89b-0caf-4b5a-b6dd-3a1eb5f2722f.jpg, 0000042736/Cruz-y-Ortiz-Arquitectos_DMA_15-X.jpg
https://content.gnoss.ws/carq/https://content.gnoss.ws/carq//imagenes/Documentos/imgsem/71/718e/718ee47b-7e02-43b8-986f-1d7f8e2a7df9/5edd6306-1960-4f6a-94c6-11c31120d8f3.jpg, 0000042736/Cruz-y-Ortiz-Arquitectos_DMA_07-X.jpg
https://content.gnoss.ws/carq/https://content.gnoss.ws/carq//imagenes/Documentos/imgsem/71/718e/718ee47b-7e02-43b8-986f-1d7f8e2a7df9/af2880e6-be8c-4a8a-92aa-f56255dc2c2b.jpg, 0000042736/016-84_DMA_04-X.jpg
https://content.gnoss.ws/carq/https://content.gnoss.ws/carq//imagenes/Documentos/imgsem/71/718e/718ee47b-7e02-43b8-986f-1d7f8e2a7df9/8094e59e-3fde-4ce6-8772-1e2b036f8664.jpg, 0000042736/Cruz-y-Ortiz-Arquitectos_DMA_04-X.jpg
https://content.gnoss.ws/carq/https://content.gnoss.ws/carq//imagenes/Documentos/imgsem/71/718e/718ee47b-7e02-43b8-986f-1d7f8e2a7df9/e9c3673c-fe92-41b3-aebd-9504df60d826.jpg, 0000042736/Cruz-y-Ortiz-Arquitectos_DMA_37-X.jpg
https://content.gnoss.ws/carq/https://content.gnoss.ws/carq//imagenes/Documentos/imgsem/71/718e/718ee47b-7e02-43b8-986f-1d7f8e2a7df9/46057aba-f43e-45df-9800-a6d347a45994.jpg, 0000042736/Cruz-y-Ortiz-Arquitectos_DMA_05-X.jpg
https://content.gnoss.ws/carq//imagenes/Documentos/imgsem/71/718e/718ee47b-7e02-43b8-986f-1d7f8e2a7df9/06d91231-590e-436f-bfd4-df02bfe39d2a.jpg, 0000042736/CYO_31-seccion-transversal-1_1.jpg
https://content.gnoss.ws/carq//imagenes/Documentos/imgsem/71/718e/718ee47b-7e02-43b8-986f-1d7f8e2a7df9/a4a7e4fa-2aae-47da-bcff-8bb0106c946c.jpg, 0000042736/CYO_21-alzado-sur.jpg
https://content.gnoss.ws/carq//imagenes/Documentos/imgsem/71/718e/718ee47b-7e02-43b8-986f-1d7f8e2a7df9/f486f390-ff14-41a7-9b96-07cb2794320d.jpg, 0000042736/016-84_CYO-C_04-X.jpg
https://content.gnoss.ws/carq//imagenes/Documentos/imgsem/71/718e/718ee47b-7e02-43b8-986f-1d7f8e2a7df9/4fcced71-ab63-4b91-8a0c-35fb3b2aca6e.jpg, 0000042736/CYO_22-alzado-este.jpg
https://content.gnoss.ws/carq//imagenes/Documentos/imgsem/71/718e/718ee47b-7e02-43b8-986f-1d7f8e2a7df9/350e2e74-ad71-4751-b5ec-ac8b83836a15.jpg, 0000042736/CYO_08-planta-estado-previo.jpg
https://content.gnoss.ws/carq//imagenes/Documentos/imgsem/71/718e/718ee47b-7e02-43b8-986f-1d7f8e2a7df9/93594b63-3291-4a10-94ec-06444ef0e14f.jpg, 0000042736/CYO_13-planta-atico.jpg
https://content.gnoss.ws/carq//imagenes/Documentos/imgsem/71/718e/718ee47b-7e02-43b8-986f-1d7f8e2a7df9/60acbfcb-64e6-4ad8-994f-ab525b82ec49.jpg, 0000042736/CYO_30-seccion-longitudinal-4_4.jpg
https://content.gnoss.ws/carq//imagenes/Documentos/imgsem/71/718e/718ee47b-7e02-43b8-986f-1d7f8e2a7df9/f8631569-1597-420b-9fb3-7be1c0f8af31.jpg, 0000042736/CYO_09-planta-semisotano.jpg
https://content.gnoss.ws/carq//imagenes/Documentos/imgsem/71/718e/718ee47b-7e02-43b8-986f-1d7f8e2a7df9/8ecba792-0d67-43cf-94d3-8c89bb12bfad.jpg, 0000042736/CYO_11-planta-principal.jpg
https://content.gnoss.ws/carq//imagenes/Documentos/imgsem/71/718e/718ee47b-7e02-43b8-986f-1d7f8e2a7df9/4a243c30-8a57-4447-a6ca-d9661de4ccc6.jpg, 0000042736/CYO_12-planta-entresuelo.jpg
https://content.gnoss.ws/carq//imagenes/Documentos/imgsem/71/718e/718ee47b-7e02-43b8-986f-1d7f8e2a7df9/b87ff4fd-22c7-439c-b9bd-0aae2f811633.jpg, 0000042736/CYO_10-planta-baja.jpg
https://content.gnoss.ws/carq//imagenes/Documentos/imgsem/71/718e/718ee47b-7e02-43b8-986f-1d7f8e2a7df9/84c7bfdf-820d-464a-8eb2-e7b49f22fe0d.jpg, 0000042736/CYO_00-situacion.jpg





