Cargando...
Una biblioteca de las características de la que se pretende levantar en Usera ya no es reconocible como una gran sala, ni como un gigantesco almacén o contenedor de libros: es una suma de servicios diferenciados que tienden a ser cada vez más externos. ¿Cómo hacer significativo, institucional un edificio así? ¿Cómo hacer que cumpla con su verdadero objetivo de constituirse en un edificio “público”?
Gozando como es el caso, de una posición singular, con magníficas vistas sobre el poniente madrileño, en el centro de una parcela dotacional y con la vecindad de la Junta Municipal, es difícil que se pueda caer en la tentación inmediata de reducir la escala de la actuación aprovechando el desnivel de la parcela para ensayar soluciones aterrazadas o semienterradas. Con esta organización no puede atenderse ni a las vistas ni al carácter público propio de las bibliotecas ni, sobre todo, al equilibrio de toda la parcela, que tendería a seguir polarizada en torno al edificio de la Junta Municipal, encogiendo la inversión, tanto política como económica, que supone la construcción de la biblioteca.
¿Cuál puede ser entonces la imagen y organización de una biblioteca actual? ¿Cómo aprovechar el solar para extraer el máximo partido de sus condiciones topográficas? Estas son las dos cuestiones a las que nuestro proyecto pretende dar una respuesta clara y eficiente, y quiere hacerlo con la máxima parquedad, con un especial gusto por la emoción que produce la simplificación. Estando el programa de la biblioteca constituido por un conjunto de piezas de tamaño mediano, autónomas y de similar importancia, y teniendo además una situación en la que los aspectos paisajísticos e institucionales tienen un peso importante, es razonable pensar en las posibilidades que abre una organización vertical del programa no solo en términos funcionales.
Información general
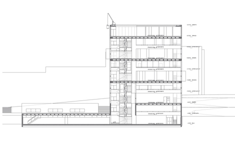
Biblioteca Pública de Usera
AÑO
Opción de visitas
Dirección
Avda. Rafaela Ybarra 28026, 43
28026 Madrid - Madrid
Latitud: 40.381943862
Longitud: -3.710609583
Clasificación
Superficie construida
Colaboradores
Peter Halley (Artista colaborador)
Rocío Rein (Equipo de Proyecto)
Pablo Puertas (Equipo de Proyecto)
Estudios de arquitectura participantes
Información aportada por
estudio Herreros
-
Sección - estudio Herreros -
VII BEAU -
Alzado Este - estudio Herreros
Ubicación
https://content.gnoss.ws/carq/https://content.gnoss.ws/carq//imagenes/Documentos/imgsem/6b/6bad/6bad9619-644a-43cf-8b8e-001f2ddda2b8/327409be-cccc-4d04-9564-194852cc8d8a.jpg, 0000002862/biblioteca usera 1.jpg
https://content.gnoss.ws/carq/https://content.gnoss.ws/carq//imagenes/Documentos/imgsem/6b/6bad/6bad9619-644a-43cf-8b8e-001f2ddda2b8/5e4e1bf9-6855-40eb-b8f5-8ee11d340e13.jpg, 0000002862/biblioteca usera 2.jpg
https://content.gnoss.ws/carq/https://content.gnoss.ws/carq//imagenes/Documentos/imgsem/6b/6bad/6bad9619-644a-43cf-8b8e-001f2ddda2b8/f0bac211-81e0-452e-9403-d187de50cdde.jpg, 0000002862/AH_USERA_03_Bleda y Rosa.jpg
https://content.gnoss.ws/carq/https://content.gnoss.ws/carq//imagenes/Documentos/imgsem/6b/6bad/6bad9619-644a-43cf-8b8e-001f2ddda2b8/cb5e288e-c6d8-4f20-abbc-c8b910567918.jpg, 0000002862/BIBLIOTECA PUBLICA DE USERA f1.jpg
https://content.gnoss.ws/carq//imagenes/Documentos/imgsem/6b/6bad/6bad9619-644a-43cf-8b8e-001f2ddda2b8/7e8dfd3b-b70f-4a72-a976-961faa13b450.jpg, 0000002862/AH_USERA_02_seccion.jpg
https://content.gnoss.ws/carq//imagenes/Documentos/imgsem/6b/6bad/6bad9619-644a-43cf-8b8e-001f2ddda2b8/38a37d88-0181-479b-9f10-f784642df382.jpg, 0000002862/AH_USERA_04_seccion-alzado este.jpg
https://content.gnoss.ws/carq//imagenes/Documentos/imgsem/6b/6bad/6bad9619-644a-43cf-8b8e-001f2ddda2b8/e25bb598-84e6-4bcc-8369-5a1d8dd67934.jpg, 0000002862/AH_USERA_05_planta primera.jpg




