Cargando...
En atención a las disposiciones de las ordenanzas municipales y normativa urbanística, la edificación se desarrolla en dos bloques aislados de tres plantas, con altura libre de planta de 2,65 m y altura de cornisa de los bloques de 10 m. El nivel de piso de planta baja se eleva 1 m sobre el nivel de acceso a los bloques, realizándose una excavación de 0,90 m para crear una cámara da aire, a fin de elevar el suelo de planta baja y permitir el registro de las infraestructuras de saneamiento.
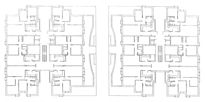
Las viviendas se agrupan en 2 edificios, bloques 1 y 2, de 18 unidades cada uno de ellos, que se sitúan en alineación con bloques existentes en las calles Argentina y Brasil. Esta disposición permite la comunicación interior peatonal en sentido longitudinal entre los usuarios de las edificaciones existentes a ambos lados. Las viviendas de cada bloque se desarrollan alrededor de un núcleo central de comunicaciones y distribución, situándose 6 unidades por planta. El acceso a los bloques se realiza a través de sendas rampas que salvan la diferencia de cotas existentes entre el exterior y el pavimento de la planta baja.
Respuesta arquitectónica:
Ante la rigidez compositiva impuesta por las especificaciones de las ordenanzas municipales , y dadas las reducidas dimensiones de un solar del que se pretende extraer el máximo aprovechamiento, la respuesta arquitectónica al programa de necesidades se ve reducida a la implantación de 2 bloques abiertos dispuestos en torno a un espacio central que permite la conexión peatonal norte-sur. El referente tipológico de estas edificaciones habría que buscarlo en el clásico bloque en “H”, que permite la disposición del mayor número de “unidades de habitación” vertidas hacia el espacio exterior. En nuestro caso la forma en “H” se manifiesta claramente desde la transparencia norte-sur del espacio central, en el que se producen las comunicaciones verticales y el acceso a las viviendas. Una vez resuelto el problema de necesidades, constriñéndolo a la rigidez impuesta, el reto consistía en adecuar el sistema constructivo y la imagen formal al lugar donde se implanta la edificación, teniendo muy en cuenta el carácter social de la misma. Para ello habríamos de renunciar a los imperativos que, fruto de la “inercia constructiva” existente en nuestra región, inducían a soluciones erróneas, tanto desde el punto de vista formal como constructivo.
La imagen urbana de nuestros edificios debería estar condicionada por el compromiso integral con un proceso constructivo adecuado al lugar y al clima donde se implantar. Esta afirmación, que parece obvia, casi nunca se cumple en nuestras ciudades, y hacerla cumplir resulta más difícil de lo que a simple vista parece. Pero ¿qué supone en nuestro caso esto hecho?. En principio, la orientación de los bloques debería ser un factor determinante en cuanto a la apertura de los huecos de fachada, su dimensión y tipología. Debido a la imposibilidad de orientar los bloques de la forma más óptima, habremos de dar respuesta en cada caso: 4 fachadas diferentes con sus 4 orientaciones. Ya que supondría un “agravio” difícilmente entendible por el usuario, la existencia de huecos diferentes en piezas iguales (dormitorios o salón de estar) en función de la orientación, optamos por la unificación de la tipología del hueco, incorporándole un parasol convenientemente dimensionado a un lado u otro del mismo, sobre la base de la citada orientación. Así pues, recuperamos el hueco vertical, “balcón” (con módulo 0,90 x 2,60) para los dormitorios y lo duplicamos en el caso de las salas de estar (2 x 0, 90 x 2,60).
Lógicamente, en un clima tan extremo como el manchego, el predominio de la masa natural sobre el vano debería ser siempre un condicionante a tener en cuenta, a pesar de los avances tecnológicos, y de los “vidrios de última generación”. La necesidad de abrir huecos verticales, hasta en planta baja, obedece al carácter dinámico, extrovertido y comunicativo de los futuros usuarios de estas viviendas, cuyas formas de vida anteriores han venido marcadas por la importancia determinante del uso de la calle, como espacio para el reafirmamiento de la colectividad.
Para las protecciones de todos los huecos apostamos por fraileros exteriores metálicos, con cierre de seguridad, que a su vez permiten el oscurecimiento casi total de las estancias, posibilitando la ventilación al encontrarse despegados de la carpintería. La recuperación de estos fraileros, tan frecuentes en la arquitectura popular, nos permite prescindir de la habitual persiana, evitar los puentes térmicos resultantes de una precaria ejecución de los capialzados y solventar varios problemas: seguridad, oscurecimiento y protección solar, con la interposición de un solo elemento.
Por otro lado, la necesidad de alcanzar un grado óptimo de confort térmico en el interior de las viviendas, con el mínimo uso de los sistemas activos de calefacción incorporados, ha influido notablemente en la configuración de los muros exteriores. El sistema constructivo utilizado pretende la eliminación total de puentes térmicos, así como el aprovechamiento máximo de la inercia térmica de las “fábricas interiores”. Se trata de una interpretación particular del cavitywall, en la que la hoja exterior, compuesta por medio pie de ladrillo hueco doble, reforzado con la interposición de hiladas de ladrillo perforado armadas longitudinalmente, discurre exenta por las tres plantas que configuran la fachada. Se trata pues de una “lámina” delgada cuyo único fin es la protección de los agentes climáticos de los paneles de aislamiento térmico dispuestos en la cara fría de la hoja interior.
El apoyo inferior de esta pared se resuelve en ménsula sobre el forjado de suelo de planta baja. El vuelco de la misma es impedido mediante la interposición de “llaves metálicas”, ensambladas en los pilares (metálicos) permiten el movimiento horizontal de la pared (en previsión do cualquier pequeño asiento diferencial), pero no así el vuelco. La hoja interior se conforma con bloque de termoarcilla 30 x 19 x 14, a fin de aprovechar la inercia térmica del material. Así pues, la pared gruesa queda dispuesta en el interior mientras que la delgada se sitúa al exterior.
Este sistema constructivo, tan lógico a primera vista, rara vez se utiliza en nuestra región. La cavidad existente entre el aislamiento trasdosado a la pared exterior se encuentra perfectamente ventilada a través de la interposición a nivel del último forjado de “llaves de ladrillo perforado”, ocultas tras la celosía metálica que cierra la cámara existente en cubierta; esta se resuelve mediante la disposición del aislamiento en la cara superior del forjado, como si de una cubierta invertida se tratase, y la protección superior con una “lámina blanca”, con importantes voladizos en función de la orientación. Dicha lámina blanca, conformada con un panel sandwich in situ de aluminio, actúa como amortiguante térmico y sonoro de la “cara superior” del bloque, al ser un elemento que refleja en su totalidad la radiación solar, tan incómoda en verano, y al estar provisto de una capa de poliuretano en su interior, ante posibles reverberancias derivadas del golpeteo de la lluvia. Esta lámina protege igualmente al aislamiento situado en la cara superior del forjado de las posibles heladas en los meses de invierno.
Otra incorporación al sistema constructivo, derivada del análisis de la problemática de la vivienda social, la supone el haber despegado en su totalidad la edificación del suelo, marcando y enfatizando ese corte, dejando la cámara registrable y ventilada en su práctica totalidad. Ello permitirá el registro de todo el saneamiento dispuesto bajo la misma, sin necesidad de causar molestias a las viviendas de planta baja. En resumen, puede decirse que los edificios proyectados se ajustan a las características constructivas, tipológicas y climáticas de la localidad donde se insertan. Por ello, la imagen urbana resultante, a pesar de ser fiel al momento histórico vigente recupera los invariantes de “nuestra” arquitectura popular. El predominio de la masa mural sobre el vacío, el aprovechamiento de la inercia térmica de la pared gruesa (al interior), la verticalidad de los huecos, el balcón floral (portamacetas metálicos), la pintura reflectante de los muros, el vivo contraste de la carpintería y cerrajería, son arquetipos que han perdurado a lo largo de la historia gracias a las tradicionales formas de construcción que buscaban, ante todo, el mayor confort interior en un clima tan extremo como el casteIlano-manchego.
Las cuatro fachadas de cada uno de los bloques se protegen de la radiación solar en verano con pequeños parasoles, calculados al efecto, sobre los que se insertan los balcones portamacetas metálicos. Los potentes voladizos al sur de una cubierta ventilada con tramex metálico idéntico al de los balcones completan una imagen que, pese a su sencillez de líneas, puede resultar singular sin pretenderlo.
Por último, en lo que refiere a la urbanización del espacio interior (entre bloques) se proyectan dos pequeñas láminas de agua que delimitan los bordes de las edificaciones. La reflexión de la arquitectura y los árboles en el agua, así como la sensación de frescor y sosiego que producen, contribuye a hacer más agradable este espacio interbloques, que de otra forma sería demasiado “árido”.
El agua supone igualmente una barrera natural que imposibilita la accesibilidad a los huecos de las viviendas en planta baja.
Francisco Bernalte Bernardo
Francisco Javier Bernalte Patón
Información general
Bloque de viviendas en Ciudad Real
AÑO
Opción de visitas
Dirección
plza. America, 1
13005 Ciudad Real - Ciudad Real
Latitud: 38.979092192
Longitud: -3.943545169
Clasificación
Sistema constructivo
Tradición viva, renovada.
Estudios de arquitectura participantes
Información aportada por
Colegio Oficial de Arquitectos de Castilla la Mancha (COACM)
Bernalte León y Asociados
Ubicación
Itinerarios
https://content.gnoss.ws/carq/https://content.gnoss.ws/carq//imagenes/Documentos/imgsem/8e/8eb0/8eb028fb-6e47-4c48-95cf-47a10527380e/dda57491-1376-46c1-9c82-d5d3d1c398ce.jpg, 0000042205/1.jpg
https://content.gnoss.ws/carq/https://content.gnoss.ws/carq//imagenes/Documentos/imgsem/8e/8eb0/8eb028fb-6e47-4c48-95cf-47a10527380e/19229ab6-f2f0-46a1-9b08-54db2fbccaf6.jpg, 0000042205/2.jpg
https://content.gnoss.ws/carq/https://content.gnoss.ws/carq//imagenes/Documentos/imgsem/8e/8eb0/8eb028fb-6e47-4c48-95cf-47a10527380e/4c32dbd1-35f1-4d4a-a35a-80d7027888ea.jpg, 0000042205/3b.jpg
https://content.gnoss.ws/carq/https://content.gnoss.ws/carq//imagenes/Documentos/imgsem/8e/8eb0/8eb028fb-6e47-4c48-95cf-47a10527380e/9d47ce8c-ee88-4672-b65e-5c767738221f.jpg, 0000042205/4.jpg
https://content.gnoss.ws/carq/https://content.gnoss.ws/carq//imagenes/Documentos/imgsem/8e/8eb0/8eb028fb-6e47-4c48-95cf-47a10527380e/b7dc8db4-42fa-4c5a-aa75-7a04d3cf22b7.jpg, 0000042205/5.jpg
https://content.gnoss.ws/carq/https://content.gnoss.ws/carq//imagenes/Documentos/imgsem/8e/8eb0/8eb028fb-6e47-4c48-95cf-47a10527380e/71863399-85ef-4bfc-8789-eaaee8efcad3.jpg, 0000042205/6a.jpg
https://content.gnoss.ws/carq/https://content.gnoss.ws/carq//imagenes/Documentos/imgsem/8e/8eb0/8eb028fb-6e47-4c48-95cf-47a10527380e/a583c93f-4d4f-4b2c-b824-a75f653eeced.jpg, 0000042205/6b.jpg
https://content.gnoss.ws/carq/https://content.gnoss.ws/carq//imagenes/Documentos/imgsem/8e/8eb0/8eb028fb-6e47-4c48-95cf-47a10527380e/1448175c-7abb-4b14-9e81-d3421334e6de.jpg, 0000042205/7.jpg
https://content.gnoss.ws/carq/https://content.gnoss.ws/carq//imagenes/Documentos/imgsem/8e/8eb0/8eb028fb-6e47-4c48-95cf-47a10527380e/405b99bb-dcd5-49db-8cfc-de6c78ef9421.jpg, 0000042205/8.jpg
https://content.gnoss.ws/carq/https://content.gnoss.ws/carq//imagenes/Documentos/imgsem/8e/8eb0/8eb028fb-6e47-4c48-95cf-47a10527380e/013f1be6-eed3-485d-9dc7-80a1e78f2a92.jpg, 0000042205/9.jpg
https://content.gnoss.ws/carq/https://content.gnoss.ws/carq//imagenes/Documentos/imgsem/8e/8eb0/8eb028fb-6e47-4c48-95cf-47a10527380e/6db36948-8ce7-4142-b100-8d68933e51b4.jpg, 0000042205/10.jpg
https://content.gnoss.ws/carq/https://content.gnoss.ws/carq//imagenes/Documentos/imgsem/8e/8eb0/8eb028fb-6e47-4c48-95cf-47a10527380e/67e3886f-4425-4a2b-9944-7c62ab3d4445.jpg, 0000042205/11.jpg
https://content.gnoss.ws/carq/https://content.gnoss.ws/carq//imagenes/Documentos/imgsem/8e/8eb0/8eb028fb-6e47-4c48-95cf-47a10527380e/50d771b0-8a59-404a-9bc2-0f95963be103.jpg, 0000042205/12.jpg
https://content.gnoss.ws/carq/https://content.gnoss.ws/carq//imagenes/Documentos/imgsem/8e/8eb0/8eb028fb-6e47-4c48-95cf-47a10527380e/8ad6356e-83eb-4b92-97f4-668b074ffa53.jpg, 0000042205/13.jpg
https://content.gnoss.ws/carq/https://content.gnoss.ws/carq//imagenes/Documentos/imgsem/8e/8eb0/8eb028fb-6e47-4c48-95cf-47a10527380e/53209bc9-c539-4430-bbb1-efc4deba05ac.jpg, 0000042205/14.jpg
https://content.gnoss.ws/carq//imagenes/Documentos/imgsem/8e/8eb0/8eb028fb-6e47-4c48-95cf-47a10527380e/98a91ef3-b064-45f2-81c0-91d7023232a5.jpg, 0000042205/0b.jpg
https://content.gnoss.ws/carq//imagenes/Documentos/imgsem/8e/8eb0/8eb028fb-6e47-4c48-95cf-47a10527380e/ab245585-4365-42cd-9abc-33a3efdb3a8c.jpg, 0000042205/0a.jpg
https://content.gnoss.ws/carq//imagenes/Documentos/imgsem/8e/8eb0/8eb028fb-6e47-4c48-95cf-47a10527380e/00c68621-5e2a-4cff-95a8-888c5f90dca0.jpg, 0000042205/04.jpg
https://content.gnoss.ws/carq//imagenes/Documentos/imgsem/8e/8eb0/8eb028fb-6e47-4c48-95cf-47a10527380e/fdd7125f-03a2-4fd7-a2db-3c328b18374b.jpg, 0000042205/01.jpg
https://content.gnoss.ws/carq//imagenes/Documentos/imgsem/8e/8eb0/8eb028fb-6e47-4c48-95cf-47a10527380e/2e149ece-2bf5-460c-8708-62d11904a3c4.jpg, 0000042205/03.jpg



